Россия, Подмосковье, Раменский район, Раменское, Раменское г. Чугунова ул., 34
7 870 000 Р 105 200 $ или 88 780

Информация о квартире

63 м2
Площадь
37 м2
Жилая
7 м2
Кухня
3
Комнаты
3
Этаж
10
Этажность
Развернуть
Агент
+7 (499) 213-37-67
Начать чат с агентом

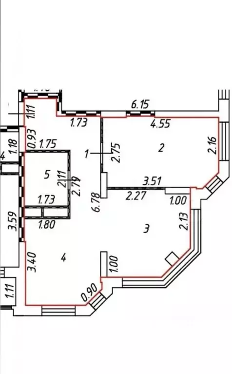
Продается 3-комнатная квартира

Арт.Продается 3-к. квартира по адресу г. Раменское, ул. Чугунова д. 34 на 3 этаже 10-ти этажного дома с возможностью сделать ремонт на свой вкус Инфраструктура района включает все необходимое для комфортной жизни Общая площадь квартиры 63.1м2. Площадь кухни 7.7 м2 с дополнительной кладовой 1 м2. Площадь комнат: просторная гостиная 17.4 м2, спальня 9.7м2, детская 10.7 м2 с застекленной лоджией. Высота потолков 2.6 м. Функциональная планировка с двухсторонней ориентацией окон. Все комнаты изолированные, сан узел раздельный. Дальнюю комнату освободят от лишней мебели. Подъезд оборудован пассажирским лифтом. Во дворе современные детские площадки с безопасным покрытием, лавочки для отдыха. Территория вокруг жилого комплекса полностью благоустроена. Здесь много уютных мест для прогулок или активных занятий спортом. В районе действуют различные объекты социальной и коммерческой инфраструктуры. В пешей доступности продуктовый рынок, МФЦ Мои Документы , СК Борисоглебский , отделение СберБанка , центральная районная больница. В непосредственной близости точки питания и продуктовые магазины Пятерочка , ДИКСИ , ресторан Милана , магазин Магнит Косметик . Пункты выдачи OZON , WB , Яндекс Маркет . Всего в 17 минутах пешком или 5 минут на автобусе до МЦД -3 Фабричная и МЦД -3 Есенинская - на электричке 40 мин. до МЦД-3 Выхино . - Общеобразовательная средняя Школа 19 , Школа 5. - Детские сады в пешей доступности: 14, 53, 42. - Детская школа искусств 1 и ДК им. Воровского. - Вблизи живописный городской парк и озеро Борисоглебское. Два взрослых собственника более 5 лет, квартира без обременений Свободная продажа Оперативный показ, звоните сейчас

Читать полностью

    Для того, чтобы купить трехкомнатную квартиру по адресу: Раменское, Раменское г. Чугунова ул., 34, позвоните по телефону +7 (499) 213-37-67. Торопитесь! Объявление №30093099148 о продаже трехкомнатной квартиры опубликовано 28 апреля 2026.

    Позвонить Написать
    7 870 000 Р105 200 $ или 88 780
    Агент
    +7 (499) 213-37-67
    Начать чат с агентом
    Похожие предложения
    1-к кв. Московская область, Раменское ул. Приборостроителей, 16 (42.0 ... - Фото 1
    1-к кв. Московская область, Раменское ул. Приборостроителей, 16 (42.0 ... - Фото 2
    1-комнатная квартира, общая площадь 42м², жилая 21м², кухня 10м²

    Продаётся уютная, светлая и просторная однокомнатная квартира с косметическим ремонтом. Дом построен финской компанией ЮИТ в 2009 году, славящаяся тёплыми домами высокого качества, отличной шумоизоляцией. Окна выходят на солнечную сторону, что обеспечивает...
    • 42 м²
    • 1-ком
    • 10/17 эт.
    • панельный
    7 800 000 Р
    Агент
    +7 (985) Показать номер
    Посмотреть контакты
    1-комнатная квартира: Раменское, улица Приборостроителей, 16 (42 м) - Фото 1
    1-комнатная квартира: Раменское, улица Приборостроителей, 16 (42 м) - Фото 2
    1-комнатная квартира, общая площадь 42м², жилая 21м², кухня 10м²

    Продаётся уютная, светлая и просторная однокомнатная квартира с косметическим ремонтом. Дом построен финской компанией ЮИТ в 2009 году, славящаяся тёплыми домами высокого качества, отличной шумоизоляцией. Окна выходят на солнечную сторону, что обеспечивает...
    • 42 м²
    • 1-ком
    • 10/17 эт.
    7 800 000 Р
    Агент
    +7 (905) Показать номер
    Посмотреть контакты
    2-к кв. Московская область, Раменское Коммунистическая ул., 23 (43.5 ... - Фото 1
    2-к кв. Московская область, Раменское Коммунистическая ул., 23 (43.5 ... - Фото 2
    2-комнатная квартира, общая площадь 43м², кухня 7м²

    Продаётся светлая и уютная 2-комнатная квартира 43,5 м. ТИХИЙ РАЙОН. Всё рядом: гимназия, детские сады, лес, озеро. Идеально для семьиЛокация и инфраструктураКвартира расположена в тихом, спокойном районе без шума крупных трасс, но с абсолютно развитой...
    • 43 м²
    • 2-ком
    • 9/9 эт.
    7 850 000 Р
    Агент
    +7 (989) Показать номер
    Посмотреть контакты
    3-к кв. Московская область, Раменское ул. Михалевича, 31 (53.2 м) - Фото 1
    3-к кв. Московская область, Раменское ул. Михалевича, 31 (53.2 м) - Фото 2
    3-комнатная квартира, общая площадь 53м², жилая 37м², кухня 6м²

    Арт.Агентство недвижимости ДОМУС предлагает приобрести трехкомнатную квартиру в центре г. Раменское Московской области.Квартира расположена в доме по адресу: улица Михалевича, д. 31.Квартира расположена на 4-м этаже 5-ти этажного кирпичного дома. Общая...
    • 53 м²
    • 3-ком
    • 4/5 эт.
    • кирпичный
    7 800 000 Р
    Агент
    +7 (989) Показать номер
    Посмотреть контакты
    1-к кв. Московская область, Раменское ул. Молодежная, 8 (41.2 м) - Фото 1
    1-к кв. Московская область, Раменское ул. Молодежная, 8 (41.2 м) - Фото 2
    1-комнатная квартира, общая площадь 41м², жилая 16м², кухня 15м²

    Арт.Агентство недвижимости ДОМУС предлагает приобрести однокомнатную квартиру по адресу: город Раменское, улица Молодежная, дом 8.Квартира расположена на 1-м этаже 17-ти этажного монолитного дома. Общая площадь квартиры: 41,2 кв.м.; жилая площадь:...
    • 41 м²
    • 1-ком
    • 1/17 эт.
    • монолит
    7 800 000 Р
    Агент
    +7 (923) Показать номер
    Посмотреть контакты

    Не нашли подходящего объявления?

    Оставьте заявку, и наши риэлторы подберут квартиру в районе Раменского

    (0)