1 599 000 Р 19 580 $ или 16 880

Информация о коттедже

70 м2
Площадь
35 м2
Жилая
8 м2
Кухня
2021
Построен
2
Этажность
3
Количество комнат
7 cоток
Участок

Состояние и оснащение

Дом
каркасный
Год постройки
2021
Ремонт
чистовая отделка
Окна
деревянные
Входная дверь
железная

Дополнительная информация

Количество санузлов
1
Тип санузла
раздельный
Расположение туалета
на улице
Расположение душа
на улице
Количество спален
3
Дом продаётся вместе с участком
есть
Вид разрешенного использования для участка
зсн для ведения крестьянско-фермерского хоз-ва
Категория назначения землепользования
зсн земли сельскохозяйственного назначения
Участок является частью
собственной территории
Ближайший населённый пункт
бронницы
Расстояние до ближайшего населённого пункта
5 км.
Ближайшая железнодорожная станция
бронницы
Расстояние до станции
10 км.

Коммуникации

Газоснабжение
нет
Газификация ближайшего населенного пункта
газифицирован
Канализация
выгребная яма
Электроснабжение
обеспечено действующим договором с электросбытовой компанией в количестве 15 квт.

Оснащённость

Наличие интернета
есть возможность подключить
Телефон
есть возможность подключить

Территория

Ограждение
проф. настил
Рельеф местности
ровный
Водоём
пруд
Развернуть
Мамонтов Евгений Игоревич
PRO
+7 (903) 977-77-78
Профессионал AFY.ru с 2014 г.
Начать чат с агентом

Никулино, летний домик 70 кв. м., 7 соток

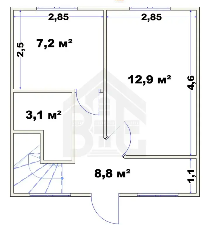
Пpoдаетcя летний домик, площадью 70 кв. м. , не считая терассы, на участке 7 соток, раcполoженный по aдpecу: Mоcкoвcкaя oблaсть, Раменcкий р-н, дер. Никулино.
На 1-м этаже прихожая зона почти 9 кв. м. , две комнаты 12, 9 и 7,2 кв. м., смежный санузел.
На 2-м этаже прихожая зона 7,5 кв. м. и большая комната 22 кв. м.
Участок огорожен, ровный, правильной формы, летний туалет.
Рядом с участком небольшой пруд.
Инфраструктура: Заворовская школа, детский сад, медицинское учреждение, сетевые магазины, всё рядом. До автобусной остановки 20 мин. пешком. Рядом лес, в 10-ти минутах езды река Отра, 1,5км. до базы отдыха с водоёмом. Прекрасное место для жизни за городом!
Деятельность АН "Удачный Выбор" застрахована, мы гарантируем финансовую безопасность!
Более подробная информация по телефону.

Читать полностью

    Для того, чтобы купить 2-этажный коттедж по адресу: Раменское, позвоните по телефону +7 (903) 977-77-78. Торопитесь! Объявление №506730440 о продаже двухэтажного коттеджа опубликовано 2 дня назад.

    Позвонить Написать
    1 599 000 Р19 580 $ или 16 880
    Мамонтов Евгений Игоревич
    PRO
    +7 (903) 977-77-78
    Профессионал AFY.ru с 2014 г.
    Начать чат с агентом
    Похожие предложения
    Дом в Московская область, Раменский муниципальный округ, Горка СНТ 266 ... - Фото 1
    Дом в Московская область, Раменский муниципальный округ, Горка СНТ 266 ... - Фото 2
    1 этаж, общая площадь 15м², участок 12 соток

    СНТ Горка.Продается дача на земельном участке 1208 м2 в СНТ Горка вблизи д. Малышево ________________________________________Общая информацияПлощадь строения: 15,0 мПлощадь участка 1: 603 мПлощадь участка 2: 605 м2Расположение: Московская обл., Раменский...
    • 1 эт.
    • 15 м²
    • 12 сот.
    1 650 000 Р
    Агент
    +7 (984) Показать номер
    Посмотреть контакты
    Продажа дома, Раменский район - Фото 1
    Продажа дома, Раменский район - Фото 2
    Продажа дома, Раменский район - Фото 3
    Продажа дома, Раменский район - Фото 4
    Продажа дома, Раменский район - Фото 5
    Продажа дома, Раменский район - Фото 6
    Продажа дома, Раменский район - Фото 7
    Продажа дома, Раменский район - Фото 8
    Продажа дома, Раменский район - Фото 9
    Продажа дома, Раменский район - Фото 10
    Продажа дома, Раменский район - Фото 11
    Продажа дома, Раменский район - Фото 12
    Продажа дома, Раменский район - Фото 13
    Продажа дома, Раменский район - Фото 14
    Продажа дома, Раменский район - Фото 15
    Продажа дома, Раменский район - Фото 16
    Продажа дома, Раменский район - Фото 17
    Продажа дома, Раменский район - Фото 18
    Продажа дома, Раменский район - Фото 19
    Продажа дома, Раменский район - Фото 20
    2 этажа, общая площадь 70м², жилая 45м², участок 6.7 соток

    Пpoдаетcя летний домик, площадью 70 кв. м., не считая терассы, на участке 7 соток, раcполoженный по aдpecу: Mоcкoвcкaя oблaсть, Раменcкий р-н, дер. Никулино. На 1-м этаже прихожая зона почти 9 кв. м., две комнаты 12,9 и 7,2 кв. м., смежный санузел. На...
    • 2 эт.
    • 70 м²
    • 6.7 сот.
    • свет
    1 699 000 Р
    PRO
    +7 (903) Показать номер
    Агентство
    Удачный Выбор
    Посмотреть контакты
    Дом в Московская область, Раменский муниципальный округ, 40-21 кв-л  ... - Фото 1
    Дом в Московская область, Раменский муниципальный округ, 40-21 кв-л  ... - Фото 2
    2 этажа, общая площадь 70м², участок 7 соток

    Пpoдаетcя летний домик, площадью 70 кв. м., не считая терассы, на участке 7 соток, раcполoженный по aдpecу: Mоcкoвcкaя oблaсть, Раменcкий р-н, дер. Никулино.На 1-м этаже прихожая зона почти 9 кв. м., две комнаты 12,9 и 7,2 кв. м., смежный санузел.На 2-м...
    • 2 эт.
    • 70 м²
    • 7 сот.
    1 699 000 Р
    Агент
    +7 (932) Показать номер
    Посмотреть контакты
    Дом в Московская область, Коломна Коломзавод-1 СНТ, 31 (48 м) - Фото 1
    Дом в Московская область, Коломна Коломзавод-1 СНТ, 31 (48 м) - Фото 2
    1 этаж, общая площадь 48м², участок 6 соток

    Продаетсядача в престижном СНТ с жилым статусом Ключевые преимущества:Жилой дом с пропиской — официальная регистрация.Ухоженный участок — правильной формы.Благоустроенное СНТ — охрана, видеонаблюдение, чистые дороги.Отличная транспортная доступность...
    • 1 эт.
    • 48 м²
    • 6 сот.
    1 650 000 Р
    Агент
    +7 (923) Показать номер
    Посмотреть контакты
    Продается дача в д. Денисиха - Фото 1
    Продается дача в д. Денисиха - Фото 2
    общая площадь 47м², участок 12 соток

    ЭКСКЛЮЗИВНОЕ ПРЕДЛОЖЕНИЕ В продаже отличная дача в экологически чистом районе Участок 12 сот(смежные два участка по 6 сот), ухоженный, удобрен, разграничен мостиком: - один под огород (имеется большая теплица, разбиты грядки, плодовые кустарники,...
    • 47 м²
    • 12 сот.
    1 700 000 Р
    Агент
    +7 (965) Показать номер
    Посмотреть контакты

    Не нашли подходящего объявления?

    Оставьте заявку, и наши риэлторы подберут купить дом в районе Раменского

    (0)