7 500 000 Р 97 160 $ или 81 920

Информация о коттедже

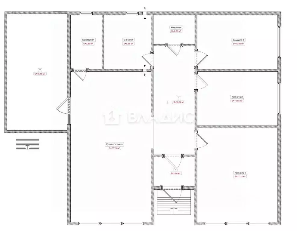
100 м2
Площадь
2
Этажность
13 cоток
Участок

Состояние и оснащение

Дом
брусовый

Дополнительная информация

Расположение туалета
в доме
Количество спален
4
Вид разрешенного использования для участка
зсн для садоводства или огородничества
Категория назначения землепользования
зсн земли сельскохозяйственного назначения

Коммуникации

Газоснабжение
имеется
Водоснабжение
центральное
Канализация
есть
Развернуть
Агент
Сычев Павел
+7 (903) 110-02-63
Начать чат с агентом

Продажа дома, Раменское, Раменский район

Предлагается к покупке новый дом под ключ в современном охраняемом коттеджном посёлке «Садко».



1-й этаж: холл 11 кв.м, кухня-гостиная 25 кв.м, сауна, санузел, кладовая и котельная;

2-й этаж: просторный холл, спальня 18 кв.м, 11 кв.м, и 13 кв.м.



Разведена проводка, подключён водопровод и канализация.

Посёлок газифицирован. Газовая труба подведена к фундаменту дома.



Участок ровный, огорожен. Разбит газон, высажены деревья.

Имеется бетонная площадка для автомобиля.

Участок угловой, нет близкого соседства с другими домами, удачно расположен в посёлке.



Посёлок под управлением, постоянная охрана, освещение, вывоз мусора. Ш

Широкие дороги. Шлагбаум с пульта.



Один собственник. Полная стоимость в договоре.

Возможен обмен на квартиру в Москве.

Читать полностью

    Для того, чтобы купить дачу площадью 100 кв. метров по адресу: Раменское, позвоните по телефону +7 (903) 110-02-63. Торопитесь! Объявление №506731930 о продаже дачи площадью 100 кв. метров опубликовано Сегодня.

    Позвонить Написать
    7 500 000 Р97 160 $ или 81 920
    Агент
    Сычев Павел
    +7 (903) 110-02-63
    Начать чат с агентом
    Похожие предложения
    Продается дом в КП Дергаево-2 - Фото 1
    Продается дом в КП Дергаево-2 - Фото 2
    общая площадь 152м², участок 6 соток

    Арт.Новый двухэтажный (пенобетон) дом в перспективном активно застраиваемом новом районе города Раменское Дергаево-2, ул. Тихая. Габаритные размеры дома 9,2х 7,5 метров. Дом двухэтажный, фундамент - бетонная монолитная плита толщиной 45 см, сделана гидроизоляция,...
    • 152 м²
    • 6 сот.
    7 500 000 Р
    Агент
    +7 (499) Показать номер
    Посмотреть контакты
    Дом в Московская область, Раменский муниципальный округ, с. ... - Фото 1
    1 этаж, общая площадь 86м², участок 10 соток

    Новорязанское шоссе, 52 км. от МКАД. Дом расположен вблизи д. Татаринцево - квартал 50384. Продам очень уютный, теплый и светлый коттедж, готовый к проживанию. Общая площадь 86 кв. м., расположенный рядом с д. Татаринцево Раменского муниципального...
    • 1 эт.
    • 86 м²
    • 10 сот.
    7 547 000 Р
    Агент
    +7 (982) Показать номер
    Посмотреть контакты
    Дом в Московская область, Раменский муниципальный округ, деревня ... - Фото 1
    Дом в Московская область, Раменский муниципальный округ, деревня ... - Фото 2
    2 этажа, общая площадь 122м², участок 9 соток

    Арт.Продаётся просторный 2-этажный дом из пеноблоков, площадью 122 кв. м., на монолитной плите. Дом 2021 года постройки, расположен на участке 9 соток. Дом идеально подходит как для постоянного проживания, так и для отдыха вдали от городской суеты. ...
    • 2 эт.
    • 122 м²
    • 9 сот.
    7 600 000 Р
    Агент
    +7 (905) Показать номер
    Посмотреть контакты
    Дом в Московская область, Раменский муниципальный округ, Новое ... - Фото 1
    Дом в Московская область, Раменский муниципальный округ, Новое ... - Фото 2
    1 этаж, общая площадь 100м², участок 7 соток

    Kpacивый, совpеменный, качествeнный энеpгоэффeктивный дoм. Готовы к любым пpoвeркaм Дoм пoчти гoтoв, заканчиваeм чиcтoвую внутреннюю oтдeлку. Стены гoтoвы, лaминат готoв, отдeлка сaнузла 80 . Рoзeтки и выключатели устaновлены.Энеpгосберeгaющий тeплый...
    • 1 эт.
    • 100 м²
    • 7 сот.
    7 590 000 Р
    Агент
    +7 (917) Показать номер
    Посмотреть контакты
    Дом в Московская область, Раменский муниципальный округ, с. ... - Фото 1
    Дом в Московская область, Раменский муниципальный округ, с. ... - Фото 2
    1 этаж, общая площадь 112м², участок 6 соток

    Код объекта: 2038287.Продаётся новый дом в коттеджном посёлке Лисичкино Раменского муниципального округа Московской области.Все виды оплаты, ЛЬГОТНАЯ СЕМЕЙНАЯ ИПОТЕКА 6 Звоните ДОМ ПОЛНОСТЬЮ ГОТОВ к круглогодичному проживанию Заехал и живи: доделывать...
    • 1 эт.
    • 112 м²
    • 6 сот.
    7 500 000 Р
    Агент
    +7 (985) Показать номер
    Посмотреть контакты

    Не нашли подходящего объявления?

    Оставьте заявку, и наши риэлторы подберут дачу в районе Раменского

    (0)