52 000 000 Р 673 600 $ или 567 900

Информация об помещении

1
Этаж

Состояние и оснащение

Количество этажей
1
Развернуть
Агент
+7 (985) 012-18-68
Начать чат с агентом

Помещение свободного назначения в Московская область, Раменский ...

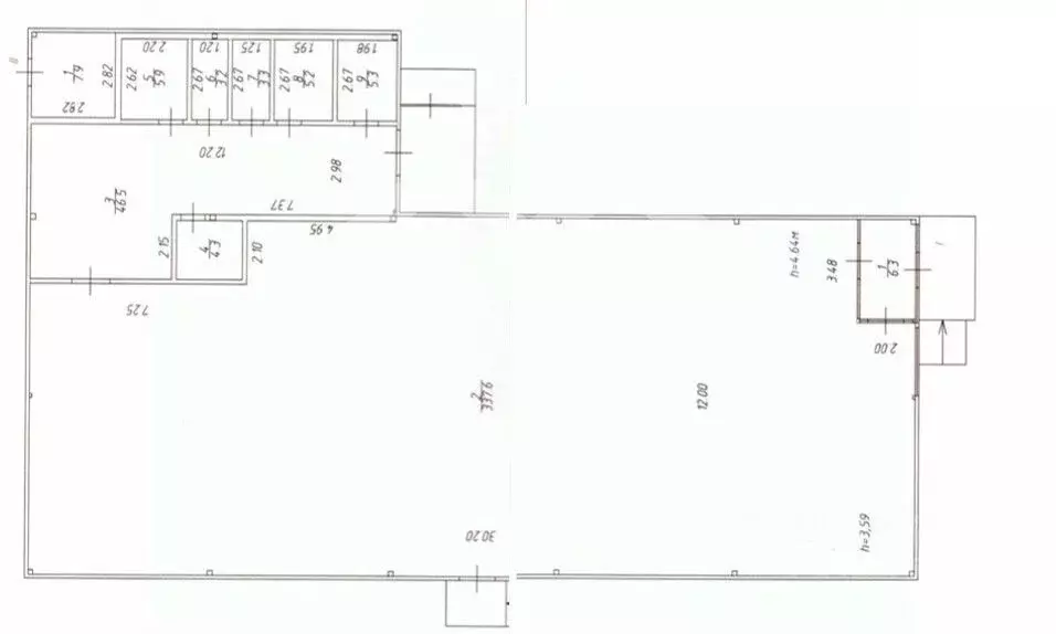
Арт.Продается готовый ангар под ключ 1008 м для склада или производстваИщете готовое, универсальное и надежное помещение для бизнеса? Мы предлагаем современный ангар общей площадью 1008 м, полностью подготовленный для складской или производственной деятельности. Это решение для быстрого запуска или расширения вашего дела без долгого строительства и лишних затрат.Ключевые характеристики объекта:Площадь: 1008 м.Назначение: складское или производственное.Конструкция: высокие потолки, широкие ворота, ровный пол для удобства погрузки и хранения.Надежность: построен из современных материалов с соблюдением технологий.Преимущества для вашего бизнеса:Экономия времени и средств: объект полностью готов к эксплуатации.Универсальность: подходит для логистики, производства, торговли, хранения сельхозпродукции.Адаптивность: внутреннее пространство можно легко модернизировать под конкретные задачи.Оптимальная площадь: 1008 м — достаточно для хранения крупных объемов, но при этом управляемо.Ангар арочный 18х56 общая = 1008m2Дополнительная возможность:Мы предлагаем размещение не только в этом ангаре, но и в 16 технопарках по 8 направлениям Московской области. Вы можете выбрать наиболее удобную локацию для вашего бизнеса.Почему это выгодно?Приобретение готового ангара — это инвестиция в стабильность и рост вашей компании. Вы избегаете рисков, связанных со строительством, и начинаете работать сразу после сделки.Готовы предоставить полную информацию, провести осмотр и обсудить детали сотрудничества. Звоните, чтобы назначить встречу и увидеть объект вживую

Читать полностью
    Позвонить Написать
    52 000 000 Р673 600 $ или 567 900
    Агент
    +7 (985) 012-18-68
    Начать чат с агентом
    Похожие предложения
    Помещение свободного назначения в Московская область, Ленинский ... - Фото 1
    Помещение свободного назначения в Московская область, Ленинский ... - Фото 2
    1074747-s . Предлагаем помещение под автомойку в ЖК 1-й Донской , площадью 315.5 кв. м, расположенное на цокольном этаже 24-этажного жилого дома. Корпус 11. Без комиссии для покупателя.Преимущества объекта:-ЖК состоит из 5-ти 24-этажных корпусов, рассчитанных...
    • -1/24 эт.
    52 137 500 Р
    Агент
    +7 (938) Показать номер
    Посмотреть контакты
    Помещение свободного назначения в Московская область, Химки Лобаново ... - Фото 1
    Помещение свободного назначения в Московская область, Химки Лобаново ... - Фото 2
    998322-gab . Предлагаем отдельно стоящее здание с сетевым арендатором Ярче , площадью 116.4 кв. м. Без комиссии для покупателя.Преимущества объекта:-первая линия ул. Мичурина;-20 минут пешком от станции МЦД-3 Химки ;-удобная транспортная доступность:...
    • 1/1 эт.
    51 975 000 Р
    Агент
    +7 (938) Показать номер
    Посмотреть контакты
    Помещение свободного назначения в Московская область, Коломна ... - Фото 1
    Помещение свободного назначения в Московская область, Коломна ... - Фото 2
    848444-gab . Предлагаем торговое помещение с сетевым арендатором Пятёрочка , площадью 434.2 кв. м. Без комиссии для покупателя.Преимущества объекта:-первая линия оживленной трассы проходящей через населенный пункт;-локация центр притяжения района;-плотный...
    • 1/1 эт.
    52 000 000 Р
    Агент
    +7 (938) Показать номер
    Посмотреть контакты
    Помещение свободного назначения в Московская область, Химки Молодежная ... - Фото 1
    Помещение свободного назначения в Московская область, Химки Молодежная ... - Фото 2
    Уважаемый Покупатель, предлагаем Вам приобрести помещение свободного назначения 145.6 м на 1 этаже в собственность на выгодных условиях.Интернет, телефония. В 17 минутах от м. ПланернаяБыстро реагируем на обращения, организуем встречу на объекте в удобное...
    • 1/27 эт.
    52 416 000 Р
    Агент
    +7 (985) Показать номер
    Посмотреть контакты
    Помещение свободного назначения в Московская область, Химки Молодежная ... - Фото 1
    Помещение свободного назначения в Московская область, Химки Молодежная ... - Фото 2
    Продажа торгового помещения ПСН 145,6 м2 в районе ТЦ Мега Химки. o1 этаж,oПомещение свободного назначенияoТорговое помещениеoГотовый арендный бизнесo100 метров от ТЦ Мега ХимкиoСтандартная отделкаoСвободная функциональная планировкаoОтдельный вход с...
    • 1/27 эт.
    52 416 000 Р
    Агент
    +7 (989) Показать номер
    Посмотреть контакты

    Не нашли подходящего объявления?

    Оставьте заявку, и наши риэлторы подберут псн в районе Раменского района

    (0)