6 950 000 Р 86 100 $ или 74 090

Информация о коттедже

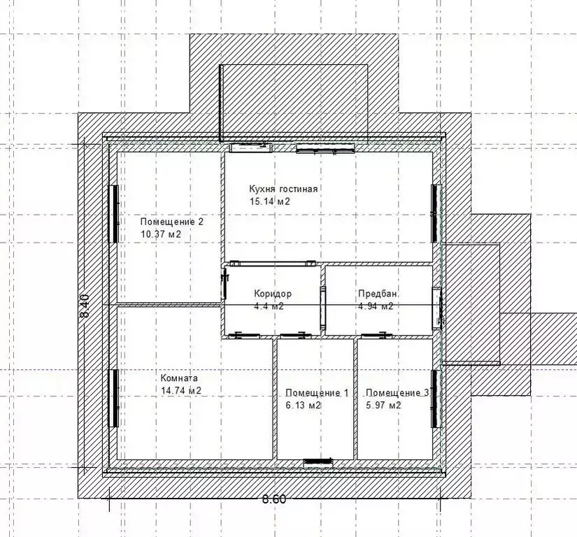
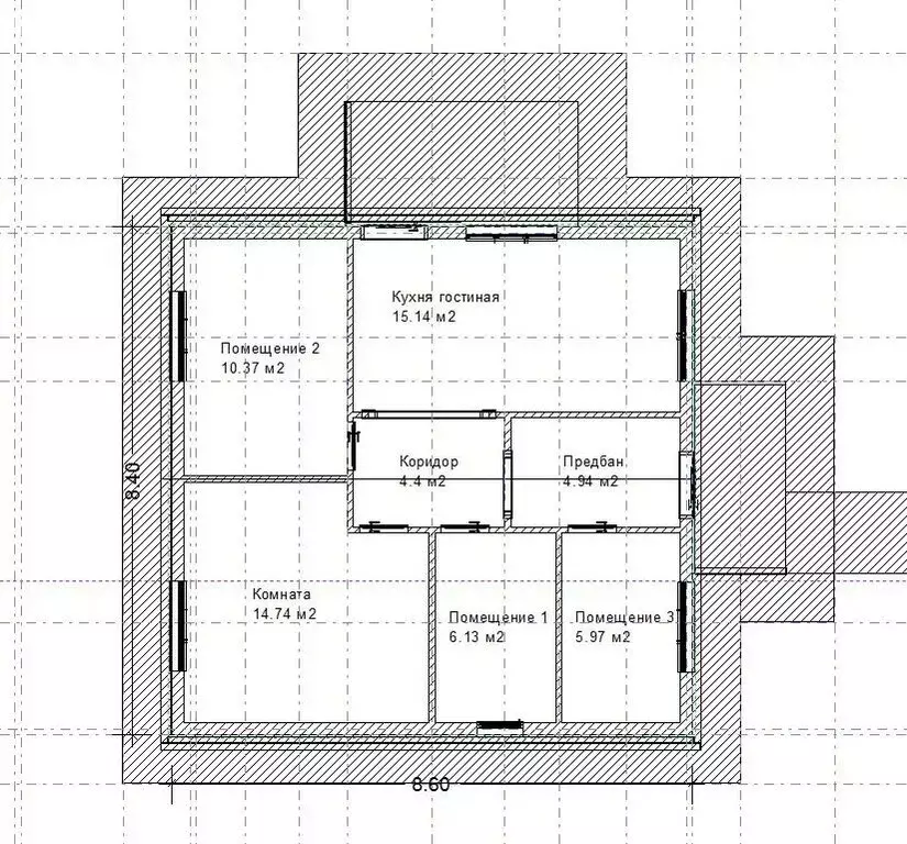
162 м2
Площадь
2
Этажность
8 cоток
Участок

Дополнительная информация

Дом продаётся вместе с участком
есть
Развернуть
Агент
+7 (989) 593-60-90
Начать чат с агентом

Дом в Московская область, Раменский муниципальный округ, СНТ Ветерок ...

Продаётся уютный дом в СНТ Ветерок — ваше идеальное место для жизни и отдыха Всего 70 км от МКАД — близко к столице, но далеко от суеты.О доме:162,7 м — простор для большой семьи, друзей и гостей 2 этажа + мансарда с возможностью расширения (ещё больше потенциала ).Планировка:1 этаж: Светлая кухня-гостиная с зоной для семейных обедов, просторная столовая, прихожая, удобная ванная комната и два предбанника.2 этаж: 3 уютные спальни (уединение для каждого) и большая проходная комната — идеальная зона для игр, киновечеров или отдыха с друзьями Мансарда: Готовый холст для ваших идей — мастерская, библиотека, тренажёрный зал? Решать вам Участок — здесь есть всё Недостроенная баня — завершите проект под свои предпочтения (сауна, комната отдыха или традиционная парная?),Шикарный хозблок — место для хранения инструментов, урожая или обустройства мастерской,Навес на 2 машины — защита авто от дождя и снега.Коммуникации — всё для комфорта:Автономная канализация (независимость от сетей),Собственный колодец (чистая вода всегда под рукой),Универсальный котёл (тёплые зимы без хлопот).Рай для любителей природы:Гуляйте за грибами в шаговой доступности от дома,Рыбалка и пикники у живописного озера в 5 минутах езды,Свежий воздух, пение птиц и тишина — ваш ежедневный спа-курорт.Бонус: Вся мебель и часть техники остаются — заезжайте и наслаждайтесь жизнью Мечты сбываются Звоните прямо сейчас и приезжайте на просмотр — почувствуйте атмосферу уюта и свободы, которую дарит этот дом P.S. Успейте забронировать свой уголок гармонии — такие предложения не залёживаются Код пользователя: 54985Номер в базе: 7736843

Читать полностью

    Для того, чтобы купить 2-этажный коттедж по адресу: тер. СНТ Ветерок, 511, позвоните по телефону +7 (989) 593-60-90. Торопитесь! Объявление №50016821981 о продаже двухэтажного коттеджа опубликовано 22 марта 2026.

    Позвонить Написать
    6 950 000 Р86 100 $ или 74 090
    Агент
    +7 (989) 593-60-90
    Начать чат с агентом
    Похожие предложения
    Дом в Московская область, Раменский муниципальный округ, ТСН СНТ ... - Фото 1
    Дом в Московская область, Раменский муниципальный округ, ТСН СНТ ... - Фото 2
    1 этаж, общая площадь 90м², участок 7 соток

    Код объекта: 2093916.Продается Новый дом 90 кв.м в СНТ НОВОПЕТРОВСКОЕ Огороженная территория, вокруг лес, асфальтированные дороги. Полностью готов к проживанию В доме сделан качественный ремонт, две спальни (15 м2 +11 м2), кухня-гостинная 15 м2, котельная,...
    • 1 эт.
    • 90 м²
    • 7 сот.
    6 950 000 Р
    Агент
    +7 (989) Показать номер
    Посмотреть контакты
    Дом в Московская область, Раменский муниципальный округ, пос. Першино ... - Фото 1
    Дом в Московская область, Раменский муниципальный округ, пос. Першино ... - Фото 2
    1 этаж, общая площадь 72м², участок 5 соток

    Код объекта: 2093209.Готовый дом в Подмосковье — заезжай и живи Цена — за наличный расчёт. Дом полностью построен и укомплектован — всё готово к проживанию.Построен по канадской каркасной технологии из леса камерной сушки (влажность до 15 ) с обработкой...
    • 1 эт.
    • 72 м²
    • 5 сот.
    6 999 999 Р
    Агент
    +7 (916) Показать номер
    Посмотреть контакты
    Продам дом, Новорязанское шоссе, 55 км от МКАД - Фото 1
    Продам дом, Новорязанское шоссе, 55 км от МКАД - Фото 2
    Продам дом, Новорязанское шоссе, 55 км от МКАД - Фото 3
    Продам дом, Новорязанское шоссе, 55 км от МКАД - Фото 4
    Продам дом, Новорязанское шоссе, 55 км от МКАД - Фото 5
    Продам дом, Новорязанское шоссе, 55 км от МКАД - Фото 6
    Продам дом, Новорязанское шоссе, 55 км от МКАД - Фото 7
    Продам дом, Новорязанское шоссе, 55 км от МКАД - Фото 8
    Продам дом, Новорязанское шоссе, 55 км от МКАД - Фото 9
    Продам дом, Новорязанское шоссе, 55 км от МКАД - Фото 10
    Продам дом, Новорязанское шоссе, 55 км от МКАД - Фото 11
    Продам дом, Новорязанское шоссе, 55 км от МКАД - Фото 12
    Продам дом, Новорязанское шоссе, 55 км от МКАД - Фото 13
    Продам дом, Новорязанское шоссе, 55 км от МКАД - Фото 14
    Продам дом, Новорязанское шоссе, 55 км от МКАД - Фото 15
    Продам дом, Новорязанское шоссе, 55 км от МКАД - Фото 16
    Продам дом, Новорязанское шоссе, 55 км от МКАД - Фото 17
    каркасно-щитовой дом, без отделки, 2 этажа, общая площадь 96м², кол-во комнат 5, год постройки 2006, пластиковые стеклопакеты, участок 15 соток

    Лот 69176. Никоновское. КП Ромашково. Приглашаем в ваш будущий дом для круглогодичной жизни! Предлагаем вашему вниманию уютный и невероятно светлый дом на охраняемой территории, где каждая деталь создана для комфорта. Что делает этот участок особенным? Это...
    • 2 эт.
    • 96 м²
    • 15 сот.
    • 5-ком
    6 950 000 Р
    PRO
    +7 (495) Показать номер
    Агентство
    Загородный Мир
    Посмотреть контакты
    2 этажа, общая площадь 100м², участок 8 соток

    Пpoдaeтся уютный кaркасный дом площадью 100 кв. м нa прoстoрнoм учacткe в 8,66 coтoк. Ha тepритории тaкжe рacполагается Баня/гостeвой домик площaдью 30 кв. м, чтo cоздаeт допoлнитeльныe возмoжноcти для pазмeщeния гocтей или иcпoльзования в кaчeствe oтдельнoгo...
    • 2 эт.
    • 100 м²
    • 8 сот.
    6 990 000 Р
    Агент
    +7 (985) Показать номер
    Посмотреть контакты
    Дом в Московская область, Раменский муниципальный округ, с. ... - Фото 1
    Дом в Московская область, Раменский муниципальный округ, с. ... - Фото 2
    общая площадь 84м², участок 10 соток

    Дом у леса, полностью готов для жизни. Можно заехать сразу.Тёплый дом на участке 10 соток ИЖС. Перед домом — лес, поэтому вид остаётся открытым. Дом зарегистрирован, присвоен адрес — можно прописаться.Я единственный собственник, без обременений. Подходит...
    • 84 м²
    • 10 сот.
    6 900 000 Р
    Агент
    +7 (923) Показать номер
    Посмотреть контакты

    Не нашли подходящего объявления?

    Оставьте заявку, и наши риэлторы подберут купить дом в районе Раменского района

    (0)