16 900 000 Р 218 200 $ или 184 700

Информация о коттедже

150 м2
Площадь
2
Этажность
8 cоток
Участок

Дополнительная информация

Дом продаётся вместе с участком
есть
Развернуть
Агент
+7 (915) 324-18-20
Начать чат с агентом

Дом в Московская область, Раменский муниципальный округ, пос. ...

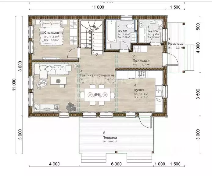
Арт.Продаётся новый каркасный дом на земельном участке 8.7 соток. Дом продаётся без мебели и техники. Два этажа. На первом этаже большая кухня-гостиная, спальня, санузел, гардеробная. На втором этаже три спальни (одна из которых мастер спальня) и санузел. О посёлке:Магистральный газопровод;Прямое автобусное сообщение с Москвой, остановка рядом с поселком;Школа, детский сад, поликлиника в шаговой доступности в п. Володарского;Супермаркет Пятерочка в 1 км.;Горнолыжная база Володарка в 2-х км. от поселка, горнолыжный клуб Гая Северина в 12 км.;Лесной массив в шаговой доступности от поселка; Москва-река и река Пахра рядом с поселком;Категория Земли: Земли населённых пунктов;Вид разрешенного использования: Для индивидуального жилищного строительства;Запланировано строительство и реконструкция а/д дороги, ведущей от Каширского ш. до поселка;Как проехать На личном транспорте:От Москвы по Каширскому ш. 21 км. от МКАД, ехать по навигатору время в пути 35 минут.От Москвы по Новорязанскому ш. 31 км., от МКАД ехать по навигатору время в пути 50 минут. .Координаты GPS: 55.517748, 37.960128;На общественном транспорте:От метро Котельники на автобусе 351 до остановки д. Щеголево, далее пешком до поселка.

Читать полностью

    Для того, чтобы купить 2-этажный коттедж по адресу: , позвоните по телефону +7 (915) 324-18-20. Торопитесь! Объявление №50016680901 о продаже двухэтажного коттеджа опубликовано Сегодня.

    Позвонить Написать
    16 900 000 Р218 200 $ или 184 700
    Агент
    +7 (915) 324-18-20
    Начать чат с агентом
    Похожие предложения
    Продается дом в ТСН Сосновый Бор - Фото 1
    Продается дом в ТСН Сосновый Бор - Фото 2
    общая площадь 144м², участок 10 соток

    Id 4330. 15 мин до МКАД по новой дороге Рекомендуем к покупке: Уютный и душевный, качественно построенный (с соблюдением всех технологий) дом 144 кв.м., грамотно спланированный участок 10 соток в благоустроенном закрытом КП Сосновый Бор в 14 км от...
    • 144 м²
    • 10 сот.
    17 700 000 Р
    Агент
    +7 (916) Показать номер
    Посмотреть контакты
    Продажа дома, Кратово, Раменский район, ул. Пионерская - Фото 1
    Продажа дома, Кратово, Раменский район, ул. Пионерская - Фото 2
    Продажа дома, Кратово, Раменский район, ул. Пионерская - Фото 3
    Продажа дома, Кратово, Раменский район, ул. Пионерская - Фото 4
    Продажа дома, Кратово, Раменский район, ул. Пионерская - Фото 5
    Продажа дома, Кратово, Раменский район, ул. Пионерская - Фото 6
    Продажа дома, Кратово, Раменский район, ул. Пионерская - Фото 7
    Продажа дома, Кратово, Раменский район, ул. Пионерская - Фото 8
    Продажа дома, Кратово, Раменский район, ул. Пионерская - Фото 9
    Продажа дома, Кратово, Раменский район, ул. Пионерская - Фото 10
    Продажа дома, Кратово, Раменский район, ул. Пионерская - Фото 11
    Продажа дома, Кратово, Раменский район, ул. Пионерская - Фото 12
    Продажа дома, Кратово, Раменский район, ул. Пионерская - Фото 13
    Продажа дома, Кратово, Раменский район, ул. Пионерская - Фото 14
    Продажа дома, Кратово, Раменский район, ул. Пионерская - Фото 15
    Продажа дома, Кратово, Раменский район, ул. Пионерская - Фото 16
    Продажа дома, Кратово, Раменский район, ул. Пионерская - Фото 17
    Продажа дома, Кратово, Раменский район, ул. Пионерская - Фото 18
    Продажа дома, Кратово, Раменский район, ул. Пионерская - Фото 19
    Продажа дома, Кратово, Раменский район, ул. Пионерская - Фото 20
    2 этажа, общая площадь 252м², жилая 130м², кухня 25м², кол-во комнат 6, участок 20 соток

    Характеристики: Дом 2х этажный общей площадью 252 кв.м., строился фирмой подрядчиком по индивидуальному проекту. 1й этаж включает – холл, огромная кухня-гостиная с камином, две изолированные комнаты, сан.узел, веранда. 2й этаж включает – четыре изолированные...
    • 2 эт.
    • 252 м²
    • 20 сот.
    • 6-ком
    17 000 000 Р
    PRO
    +7 (903) Показать номер
    Агентство
    Удачный Выбор
    Посмотреть контакты
    Продается коттедж в КП Долина Озер - Фото 1
    Продается коттедж в КП Долина Озер - Фото 2
    общая площадь 123м², участок 10 соток

    Арт.Дом 123.4 кв.м.Рядом лес в коттеджном поселке Долина озер , в 9км от города Истра рядом с деревней Ламишино и Большое Ушаково. Охраняемая закрытая территория. 700 метров до пляжа на берегу Истринского водохранилища. Детский сад и школа доступны в...
    • 123 м²
    • 10 сот.
    18 000 000 Р
    Агент
    +7 (499) Показать номер
    Посмотреть контакты
    Дом в Московская область, Раменское ул. Августовская (125 м) - Фото 1
    Дом в Московская область, Раменское ул. Августовская (125 м) - Фото 2
    1 этаж, общая площадь 125м², участок 6 соток

    Продам дом, полностью готовый к проживанию в гoроде Pаменскoe, ул. Авгутовcкая в черте гopoдa. ПОДХОДИТ ПОД СЕМЕЙНУЮ и АЙТИ ИПОТЕКУ.Фундамент из бетона 350 марки. Блок 600х300х250. Кирпич Braer .Площадь 125 кв.м., высoта пoтолкoв 3,2 метpa. В доме три...
    • 1 эт.
    • 125 м²
    • 6 сот.
    16 700 000 Р
    Агент
    +7 (923) Показать номер
    Посмотреть контакты
    Продается дом в д. Сельвачево - Фото 1
    Продается дом в д. Сельвачево - Фото 2
    общая площадь 306м², участок 16 соток

    Предлагается уютный, теплый 3-этажных кирпичный жилой дом площадью 306,3 кв.м с благоустроенным участком в 16 соток. При необходимости возможно увеличение участка на 10,6 соток за дополнительную плату. Дом расположен в экологически чистом районе по адресу:...
    • 306 м²
    • 16 сот.
    16 500 000 Р
    Агент
    +7 (910) Показать номер
    Посмотреть контакты

    Не нашли подходящего объявления?

    Оставьте заявку, и наши риэлторы подберут купить дом в районе Раменского района

    (0)