5 359 870 Р 67 880 $ или 58 920

Информация о квартире

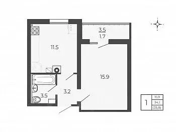
42 м2
Площадь
17 м2
Жилая
10 м2
Кухня
1
Комната
13
Этаж
17
Этажность

Дополнительная информация

Тип дома
монолит
Развернуть
Агент
+7 (923) 070-19-38
Начать чат с агентом

1-к кв. Московская область, Раменский муниципальный округ, Родники пгт ...

Продается 1-комнатная квартира площадью 42.63 . Квартира расположена на 13 этаже 17 этажного дома, в 201 корпусе. Малаховский - жилой комплекс в Раменском районе Подмосковья, идеально подходящий для семей с детьми. Проект от ГК Развитие находится в тихом и зеленом микрорайоне Родники и отличается удобной транспортной связью с Москвой и Люберцами. Три дома высотой 17 этажей с видами на озеро и парк, просторные квартиры, приватный двор-патио с ландшафтным дизайном и доступная инфраструктура обеспечат жителям новых квартир все преимущества городской жизни в живописном природном окружении.Транспортная доступность- 18 км от МКАД и удобный выезд на Егорьевское шоссе и строящуюся магистраль МЕТК (Москва - Егорьевск - Тума - Касимов);- 29 мин. до метро Лермонтовский проспект АрхитектураДома отличаются высокой тепло- и шумоизоляцией, долговечностью, высоким уровнем энергоэффективности, экологичности и современным внешним видом. Фасады выполнены в спокойной цветовой гамме. Из окон с широкоформатным остеклением открываются виды на березовую рощу, озеро и зеленые дворы. Высота потолков - 2,7 метров. Начиная с третьего этажа во всех квартирах предусмотрены лоджии с панорамным остеклением.Планировочные решенияПланировки отличаются продуманностью и правильностью формы, это облегчает зонирование, хранение и расстановку мебели. Предусмотрены отдельные гардеробные и лоджии, во всех, включая однокомнатные, по два санузла и просторные прихожие.Все квартиры сдаются с отделкой white box, которая позволит воплотить индивидуальный дизайн-проект по своему вкусу. На выбор доступны варианты чистовой отделки под ключ: комфорт и бизнес с премиальными решениями и применением лучших дизайнерских материалов.Благоустройство- просторный холл с витражным остеклением;- 3 лифта в каждом подъезде;- многоуровневое освещение;- двор с ландшафтным дизайном;- пешеходные бульвары и велодорожки;- концепция умный двор - умное зонирование пространства;- тихие лаунж-зоны в окружении деревьев;- детские площадки с оборудованием из природных материалов;- уличные тренажеры и спортивные корты;- двор, свободный от машин;- большой наземный паркинг отдельно от двора- гарантия безопасности - видеонаблюдение и охрана.- все повседневные сервисы (кафе, магазины, салоны красоты) прямо в вашем доме.Окружение- благоустроенная березовая роща с дорожками и Малаховское озеро для пикников и прогулок;- Петропавловский парк с благоустроенным детским городком и волейбольной площадкой;- фитнес-клуб, бассейн, спортивные площадки и велодорожки в многочисленных парках микрорайона Родники;- 2 школы, гимназия и детский сад в шаговой доступности;- ТЦ Родники с рестораном и супермаркетом;- ДК Родники с мероприятиями и мастер-классами для детей и взрослых.

Читать полностью
    Позвонить Написать
    5 359 870 Р67 880 $ или 58 920
    Агент
    +7 (923) 070-19-38
    Начать чат с агентом
    Похожие предложения
    1-к кв. Московская область, Раменский муниципальный округ, Родники пгт ... - Фото 1
    1-к кв. Московская область, Раменский муниципальный округ, Родники пгт ... - Фото 2
    1-комнатная квартира, общая площадь 42м², жилая 17м², кухня 10м²

    Продается 1-комнатная квартира площадью 42.63 с отделкой White box. Квартира расположена на 14 этаже 17 этажного дома, в 201 корпусе. Малаховский - жилой комплекс в Раменском районе Подмосковья, идеально подходящий для семей с детьми. Проект от федерального...
    • 42 м²
    • 1-ком
    • 14/17 эт.
    • монолит
    5 445 983 Р
    Агент
    +7 (923) Показать номер
    Посмотреть контакты
    1-к кв. Московская область, Раменский муниципальный округ, Родники пгт ... - Фото 1
    1-к кв. Московская область, Раменский муниципальный округ, Родники пгт ... - Фото 2
    1-комнатная квартира, общая площадь 42м², жилая 16м², кухня 10м²

    Продается 1-комнатная квартира площадью 42.23 . Квартира расположена на 15 этаже 17 этажного дома, в 201 корпусе. Малаховский - жилой комплекс в Раменском районе Подмосковья, идеально подходящий для семей с детьми. Проект от ГК Развитие находится...
    • 42 м²
    • 1-ком
    • 15/17 эт.
    • монолит
    5 387 281 Р
    Агент
    +7 (923) Показать номер
    Посмотреть контакты
    1-к кв. Московская область, Раменский муниципальный округ, Родники пгт ... - Фото 1
    1-к кв. Московская область, Раменский муниципальный округ, Родники пгт ... - Фото 2
    1-комнатная квартира, общая площадь 42м², жилая 17м², кухня 10м²

    Продается 1-комнатная квартира площадью 42.63 . Квартира расположена на 13 этаже 17 этажного дома, в 201 корпусе. Малаховский - жилой комплекс в Раменском районе Подмосковья, идеально подходящий для семей с детьми. Проект от ГК Развитие находится...
    • 42 м²
    • 1-ком
    • 13/17 эт.
    • монолит
    5 489 039 Р
    Агент
    +7 (923) Показать номер
    Посмотреть контакты
    1-к кв. Московская область, Раменский муниципальный округ, Родники пгт ... - Фото 1
    1-к кв. Московская область, Раменский муниципальный округ, Родники пгт ... - Фото 2
    1-комнатная квартира, общая площадь 42м², жилая 17м², кухня 10м²

    Продается 1-комнатная квартира площадью 42.63 . Квартира расположена на 14 этаже 17 этажного дома, в 201 корпусе. Малаховский - жилой комплекс в Раменском районе Подмосковья, идеально подходящий для семей с детьми. Проект от ГК Развитие находится...
    • 42 м²
    • 1-ком
    • 14/17 эт.
    • монолит
    5 360 723 Р
    Агент
    +7 (923) Показать номер
    Посмотреть контакты
    1-к кв. Московская область, Волоколамск проезд 2-й Шаховской, 20 (35.8 ... - Фото 1
    1-к кв. Московская область, Волоколамск проезд 2-й Шаховской, 20 (35.8 ... - Фото 2
    1-комнатная квартира, общая площадь 35м²

    Продаётся 1-комнатная квартира в сданном доме (Шаховской проезд, 20), срок сдачи: IV-кв. 2024, общей площадью 35.8 кв.м., на 4 этаже. Новый Благодар . Место силы и вдохновения Жить по соседству с природой, значит, наслаждаться пением птиц по утрам, неспешно...
    • 35 м²
    • 1-ком
    • 4/5 эт.
    • панельный
    5 452 340 Р
    Агент
    +7 (800) Показать номер
    Посмотреть контакты

    Не нашли подходящего объявления?

    Оставьте заявку, и наши риэлторы подберут квартиру в новостройке в районе

    (0)