Михайловская Слобода
Выбрать Отмена
6 747 817 Р 85 050 $ или 72 610

Информация об помещении

1
Этаж

Состояние и оснащение

Количество этажей
3
Развернуть
Агент
+7 (916) 086-88-35
Начать чат с агентом

Склад в Московская область, Раменский муниципальный округ, с. ...

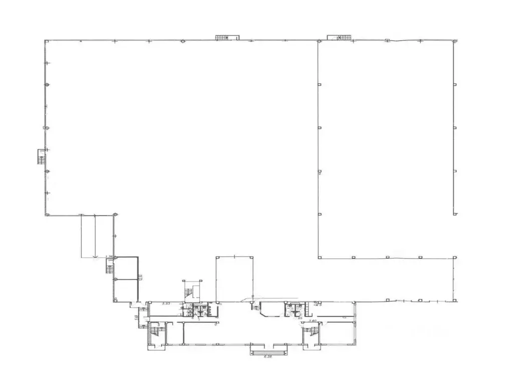
ID: w8228В аренду предлагается отапливаемый теплый склад класса A.Московская обл, Раменский р-н, село Михайловская Слобода, ул Промышленная, д 1 стр 1, 1 этаж (Юго-Восток, 20 км от МКАД).Общая площадь 5800 м (из них по полу:4430м мезонина:644.5м офиса:725.5м ).Доки: 12Полы - бетон с антипылью. Нагрузка на пол - 6 т/мВысота потолков - 12 м.Приточно-вытяжная система вентиляции.Система пожаротушения - спринклерная. Телефония и интернет. Круглосуточный режим работы. Видеонаблюдение. Отправим презентацию, организуем просмотр в удобное для вас время Готовность к въезду январь 2026г.

Читать полностью
    Позвонить Написать
    6 747 817 Р85 050 $ или 72 610
    Агент
    +7 (916) 086-88-35
    Начать чат с агентом
    Похожие предложения
    Склад в Московская область, Раменский муниципальный округ, Быково пгт ... - Фото 1
    Склад в Московская область, Раменский муниципальный округ, Быково пгт ... - Фото 2
    Складское помещение 5 260 кв. м в Логопарк Быково от собственника.Направление: Юго-Восток. Шоссе: Новорязанское. Расстояние от МКАД: 18 км. Характеристики:- Класс: A; - Ограничения по электроэнергии: 15, 120, 60, 30 мВт; - Ворота: Ворота, Ворота на...
    • 1/1 эт.
    6 732 800 Р
    Агент
    +7 (915) Показать номер
    Посмотреть контакты
    Склад в Московская область, Сергиев Посад Московское ш., 9 (4400 м) - Фото 1
    Склад в Московская область, Сергиев Посад Московское ш., 9 (4400 м) - Фото 2
    Уникальный номер помещения.Аренда помещения от собственника (без комиссии);Арендные каникулы, скидки и индивидуальные улучшения - все обсуждается;Помещение находится на огороженной и охраняемой территории;Транспортная доступность: Ярославское (М-8) ш.Удаленность...
    • 1/2 эт.
    6 600 000 Р
    Агент
    +7 (980) Показать номер
    Посмотреть контакты
    Склад в Московская область, Химки ш. Вашутинское, вл46 (6000 м) - Фото 1
    Склад в Московская область, Химки ш. Вашутинское, вл46 (6000 м) - Фото 2
    Услуги ответственного хранения.Уникальный номер помещения.Помещение находится на огороженной и охраняемой территории; Склад ответственного хранения класса А.Удобное расположение: 8 км. до МКАД.Добавьте объявление в избранное, чтобы не упустить выгодное...
    • 1/1 эт.
    6 696 000 Р
    Агент
    +7 (980) Показать номер
    Посмотреть контакты
    Склад в Московская область, Химки городской округ, д. Перепечино ул. ... - Фото 1
    Склад в Московская область, Химки городской округ, д. Перепечино ул. ... - Фото 2
    Складское помещение 4 446 кв. м в Аквион от собственника.Направление: Север. Шоссе: Шереметьевское, Ленинградское. Расстояние от МКАД: 23 км. Характеристики:- Класс: A; - Ворота: Доки; - Тип склада: Сухой склад; - Высота потолков: 12 м; - Нагрузка...
    • 1/1 эт.
    6 669 000 Р
    Агент
    +7 (915) Показать номер
    Посмотреть контакты
    Склад в Московская область, Щелково Фабричная ул., 1с7 (7813 м) - Фото 1
    Склад в Московская область, Щелково Фабричная ул., 1с7 (7813 м) - Фото 2
    Объявление владельца помещения. Электрическая мощность до 5 Мвт.В складском комплексе по адресу: г. Щелково, ул. Фабричная, д.1 предлагается в аренду производственно-складское помещение площадью 7 813,1 м.Электрическая мощность до 5 Мвт.Производственно-...
    • 1/2 эт.
    6 612 064 Р
    Агент
    +7 (923) Показать номер
    Посмотреть контакты

    Не нашли подходящего объявления?

    Оставьте заявку, и наши риэлторы подберут склад в районе Михайловской Слободы

    (0)