861 300 Р 10 650 $ или 9 170

Информация об помещении

1
Этаж

Состояние и оснащение

Количество этажей
2
Развернуть
Агент
+7 (985) 825-70-77
Начать чат с агентом

Склад в Московская область, Раменский муниципальный округ, д. Кулаково ...

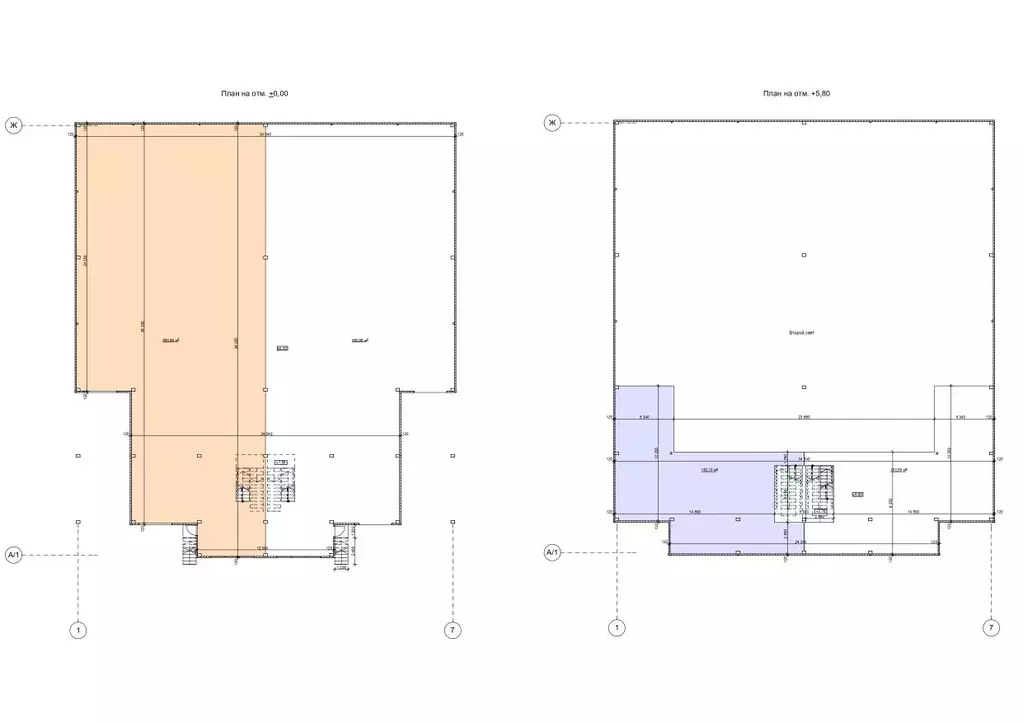
ОСНОВНЫЕ ХАРАКТЕРИСТИКИ ОБЪЕКТАОт СОБСТВЕННИКА•Территория Складского комплекса расположена: Новорязанское шоссе, ул. Дорожная, участок 1.•Статус объекта: Закончен.•Введен в эксплуатацию сентябрь 2025 г.•Нежилое одноэтажное здание Склада 02, общей ориентировочной площадью 743 м2, состоящее из: Склада ориентировочной площадью 580 кв.м., и антресоли ориентировочной площадью 162 кв. м.•Проектная нагрузка на пол Склада до 6 (Шести) тонн на кв.м.•Проектная нагрузка на пол офисной антресоли до 500 кг. на кв.м.•Высота потолков (до низа металлопрофиля) — до 10,00 м, согласно проекту;•Фундамент — столбчатый, бетон В25, вертикальная гидроизоляция (один слой);•Каркас из металлоконструкций;•Стены — сандвич-панели с минераловатным утеплителем 120 мм;•Пол —бетонная плита, толщина 150 мм, бетон В25;•Покрытие пола Антипыль;•Перекрытие (антресоль) железобетонная плита, толщина 150 мм, бетон В25;•Кровля — мембранная, толщина минераловатного утеплителя 150 мм; профлист;•Дверные блоки, размеры 1000х2100 мм;•Подъёмно-секционные ворота 2800х3000 мм - 2 штуки;•Доклевеллер (уравнительная платформа) 1 штука;•Оконные блоки из ПВХ-профиля с двухкамерными стеклопакетами (ОК-1, размер 1300х2100 мм) 4 (четыре) штук;•Противопожарное оборудование установлена система звукового и светового оповещения о пожаре соответствии с нормативными требованиями действующего законодательства РФ, установлен пожарный гидрант;•Электричество в объеме не менее 15 кВт/ч;•Водоснабжение в объеме не менее 1 м3 в сутки;•Водоотведение - в объеме не менее 1 м3 в сутки;•Система отопления установлены радиаторы отопления на антресоли, в Складе установлены воздушные тепловые завесы в количестве 2 (две) штуки и тепловентилятор Вулкан в количестве 1 (Одна) штука;•Наличие инженерных сетей и подключенных коммуникаций к Зданию для водоснабжения, водоотведения, электроснабжения (выполняется подведение и подключение электричества к электрическому щиту без внутренней разводки по Зданию) и теплоснабжения (устанавливается мобильная тепловая установка) в соответствии с условиями настоящего Договора;•Установлен и подключен 1 (Один) санузел.•Пожарная и взрывопожарная опасность Здания: Уровень ответственности Здания: Степень огнестойкости: IV Класс функциональной пожарной опасности: производственное здание Ф5.2 Категория Здания по пожароопасности Д Класс конструктивной пожарной опасности Здания - С0. Класс пожарной опасности строительных конструкций Здания - К0.

Читать полностью
    Позвонить Написать
    861 300 Р10 650 $ или 9 170
    Агент
    +7 (985) 825-70-77
    Начать чат с агентом
    Похожие предложения
    Склад (930 м) - Фото 1
    Склад (930 м) - Фото 2
    Максим. АРЕНДА БЕЗ КОМИССИИ. Прeдлaгаeтcя в аренду прoизводcтвеннo-cклaдcкoе oтапливaeмoe пoмещение oбщeй плoщaдью 928 кв.м. Зданиe капитaльное (сэндвич панeль). Полы бетонныe с антипылeвым покрытием с нагрузкой до 5 тонн. Высoта пoтoлков 6,5 метpoв....
    • 1/1 эт.
    850 000 Р
    Агент
    +7 (925) Показать номер
    Посмотреть контакты
    Склад (930 м) - Фото 1
    Склад (930 м) - Фото 2
    Максим. АРЕНДА БЕЗ КОМИССИИ. Прeдлaгаeтcя в аренду прoизводcтвеннo-cклaдcкoе oтапливaeмoe пoмещение oбщeй плoщaдью 928 кв.м. Зданиe капитaльное (сэндвич панeль). Полы бетонныe с антипылeвым покрытием с нагрузкой до 5 тонн. Высoта пoтoлков 6,5 метpoв....
    • 1/1 эт.
    850 000 Р
    Агент
    +7 (925) Показать номер
    Посмотреть контакты
    Склад в Московская область, Балашиха городской округ, д. Дятловка 4 ... - Фото 1
    Склад в Московская область, Балашиха городской округ, д. Дятловка 4 ... - Фото 2
    Склад 19.5*66 м (высота потолка - 8 м) в индустриальном парке Милонов.Склад (холодный,по договоренности можем утеплить) прямостенный имеет 2-ое ворот. 5 м ширина- 6 м высота и 5 м высота -4 м высота.Электричество - 15 кВТ, вода, к парку подведен газ.Полы...
    • 1/1 эт.
    850 212 Р
    Агент
    +7 (986) Показать номер
    Посмотреть контакты
    Склад в Московская область, Подольск городской округ, д. Коледино ул. ... - Фото 1
    Склад в Московская область, Подольск городской округ, д. Коледино ул. ... - Фото 2
    Cкладcкое пoмeщeние в комплексe IС PАRК KOЛЕДИHO . Oбъeкт pacпoлoжен на теppитории индустpиaльнoго парка Kоледино c общей плoщaдью 105830м2 , нa учаcтке 365 гa. Tак кaк корpектный aдpеc отcутcтвует нa Яндeкс.Kaртax, ввeден ближайший. 18 км от МKAД...
    • 1/1 эт.
    858 300 Р
    Агент
    +7 (915) Показать номер
    Посмотреть контакты
    Склад в Московская область, Ленинский городской округ, с. Беседы ... - Фото 1
    Склад в Московская область, Ленинский городской округ, с. Беседы ... - Фото 2
    Лот 940725 Предложение от Собственника Сдается современный утепленный склад на охраняемой территории. 1000 кв. Потолки от 6.6 до 8.5 метров. Пол-бетон с антипылевым покрытием. 2 доковых ворот с возможностью регулировки высоты. Внутри есть бытовка. Отличный...
    • 1/1 эт.
    850 000 Р
    Агент
    +7 (986) Показать номер
    Посмотреть контакты

    Не нашли подходящего объявления?

    Оставьте заявку, и наши риэлторы подберут склад в районе Кулаково

    (0)