120 000 000 Р 1 483 600 $ или 1 285 000

Информация об помещении

2
Этаж

Состояние и оснащение

Количество этажей
2
Развернуть
Агент
+7 (980) 281-31-07
Начать чат с агентом

Помещение свободного назначения в Московская область, Раменский ...

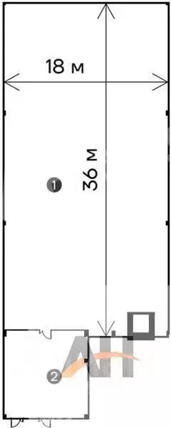
Лот: 416727. БЕЗ КОМИССИИ МЫ СНИЗИЛИ ЦЕНУ Предложение действительно до 01.06.2025 г.Продается офисно-складское здание на Новорязанском шоссе — трассе М5 Урал. О ЗДАНИИОбщая площадь здания — 1597,6 кв.м, в том числе:880 м2 — основной склад с выстой потолков 8,80/7,67 м;250 м2 — складские помещения с высотой потолков 3.38 м; 250 м2 — офисные помещения;217 м2 — вспомогательные и технические помещения;Год постройки 2014. Материал стен — сэндвич-панели, блоки, кирпич.Качественная отделка офисных помещений.ОБ УЧАСТКЕЗемельный участок 20 соток (собственность).Парковка на территории и за ее пределами. КОММУНИКАЦИИЭлектрическая мощность — 150 кВт с возможностью увеличения. Газ магистральный.Есть газовый генератор трёх-фазный на 16 кВт. Полностью автоматизированный.Вода — скважина.Септик.ТРАНСПОРТНАЯ ДОСТУПНОСТЬУдобное местоположение, земля примыкает к Федеральной трассе.Первая линия Новорязанского шоссе — Трасса М5 Урал.От МКАД 27 км, время в дороге 30 мин, от МКАД построили скоростную трассу.О СДЕЛКЕДоговор купли-продажи.Без обременений и ограничений.Документы предоставим по запросу.

Читать полностью
    Позвонить Написать
    120 000 000 Р1 483 600 $ или 1 285 000
    Агент
    +7 (980) 281-31-07
    Начать чат с агентом
    Похожие предложения
    Помещение свободного назначения в Московская область, Домодедово ... - Фото 1
    Помещение свободного назначения в Московская область, Домодедово ... - Фото 2
    Продажа готового арендного бизнеса Площадь 873 кв.м.Арендатор - производитель напольного покрытияДоговор аренды от 02.10.25 на 3 годаМАП -ГАП -Ежегодная индексация 10 Окупаемость с учетом индексации 6,8 летДоходность с индексацией 14,7 При покупке на...
    • 1/3 эт.
    122 206 000 Р
    Агент
    +7 (985) Показать номер
    Посмотреть контакты
    Продажа ПСН, Дубна, ул. Александровка - Фото 1
    Продажа ПСН, Дубна, ул. Александровка - Фото 2
    Продажа ПСН, Дубна, ул. Александровка - Фото 3
    Продажа ПСН, Дубна, ул. Александровка - Фото 4
    Продажа ПСН, Дубна, ул. Александровка - Фото 5
    Продажа ПСН, Дубна, ул. Александровка - Фото 6
    Продажа ПСН, Дубна, ул. Александровка - Фото 7
    Продажа ПСН, Дубна, ул. Александровка - Фото 8
    Продажа ПСН, Дубна, ул. Александровка - Фото 9
    общая площадь 4753.4м², полезная площадь 4753.4м²

    Арт. Административно-производственно-складской комплекс, на земельном участке 17 300 кв.м. Общая площадь зданий и сооружений комплекса составляет 4753,4 м.кв. Здания и сооружения высотой 6,0/7,5 м. • Внутренняя территория комплекса имеет замощение,...
    • 4 753.4 м²
    • 1-й эт.
    130 000 000 Р
    PRO
    +7 (495) Показать номер
    Агентство
    ИП Захарова
    Посмотреть контакты
    Продажа ПСН, Сергиево-Посадский район,  2А - Фото 1
    Продажа ПСН, Сергиево-Посадский район,  2А - Фото 2
    Продажа ПСН, Сергиево-Посадский район,  2А - Фото 3
    Продажа ПСН, Сергиево-Посадский район,  2А - Фото 4
    Продажа ПСН, Сергиево-Посадский район,  2А - Фото 5
    Продажа ПСН, Сергиево-Посадский район,  2А - Фото 6
    Продажа ПСН, Сергиево-Посадский район,  2А - Фото 7
    Продажа ПСН, Сергиево-Посадский район,  2А - Фото 8
    Продажа ПСН, Сергиево-Посадский район,  2А - Фото 9
    Продажа ПСН, Сергиево-Посадский район,  2А - Фото 10
    Продажа ПСН, Сергиево-Посадский район,  2А - Фото 11
    Продажа ПСН, Сергиево-Посадский район,  2А - Фото 12
    Продажа ПСН, Сергиево-Посадский район,  2А - Фото 13
    общая площадь 12950м², полезная площадь 12950м²

    Продается объект незавершенного строительства (Здание) "Центр досуга молодежи", кадастровый номер: 50:05:0000000:82979, расположенный по адресу: Московская область, г. Сергиев Посад, ул. Дружбы, д.2а; Земельный участок под размещение "Центра досуга молодежи",...
    • 12 950 м²
    • 1-й эт.
    120 000 000 Р
    Агент
    +7 (926) Показать номер
    Посмотреть контакты
    Помещение свободного назначения в Московская область, Балашиха ... - Фото 1
    Помещение свободного назначения в Московская область, Балашиха ... - Фото 2
    Лот 937988 Продается коммерческое помещение общей площадью 818,0 кв. м., расположенное на первом этаже в комплексе Промышленный парк Балашиха (1 очередь, корпус B). Объект находится по адресу: Новское шоссе. Срок сдачи объекта в эксплуатацию запланирован...
    • 1/1 эт.
    119 951 520 Р
    Агент
    +7 (986) Показать номер
    Посмотреть контакты
    Помещение свободного назначения в Московская область, Люберцы ... - Фото 1
    Помещение свободного назначения в Московская область, Люберцы ... - Фото 2
    ==ЛОТ 222696 ==Продаётся комплекс административных зданий общей площадью 2 794, 8 кв. м. Расположение: пос. Красково, центральная часть, первая линия (напротив жк новокрасково ). Отличная транспортная доступность: * Ж/д станция Коренёво в 300 м (10-15...
    • 6/6 эт.
    124 740 000 Р
    Агент
    +7 (915) Показать номер
    Посмотреть контакты

    Не нашли подходящего объявления?

    Оставьте заявку, и наши риэлторы подберут псн в районе Ивановки

    (0)