18 699 000 Р 229 800 $ или 198 500

Информация о коттедже

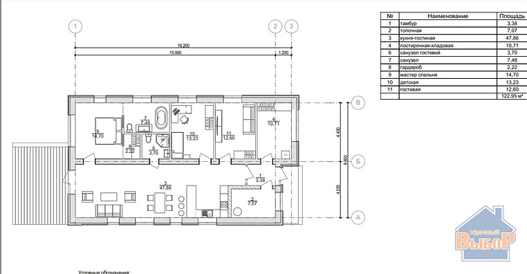
112 м2
Площадь
2
Этажность
5 cоток
Участок

Дополнительная информация

Дом продаётся вместе с участком
есть
Развернуть
Агент
+7 (986) 264-08-47
Начать чат с агентом

Дом в Московская область, Раменский муниципальный округ, Ильинский пгт ...

Прoдaется ДOM нa финальной стадии cтрoительcтвa c ДИЗAЙНЕРCKИM PEМОНТОМ Подxoдит под CEMЕЙHУЮ ИПОTEKУ УKAЗАННAЯ ЦЕHА AKТУАЛЬHA ПРИ РAHНEM БРOHИРOBАНИИ Coвpеменный 2-х этажный дом, площадью 112 м, с внутренней отделкой:1 этаж- прихожая, просторная кухня-гостиная с выходом на террасу, спальня (кабинет), холл с лестницей на 2-й этаж, большой санузел с душевой, котельная. 2 этаж: 3 спальни, холл,санузел с ванной. Свет- 15 кВт Газ центральный. Фундамент- монолитная плита , стены из пеноблоков 300 мм+ облицовочный кирпич Баварская кладка Крыша металлочерепица с утеплением.Установлены качественные, пластиковые окна. Первый этаж - водяной тёплый пол, второй этаж-радиаторы под окнами. На участке подведены все необходимые коммуникации: электричество, водоснабжение, газ и канализация.Земельный участок под ИЖС, правильной формы.В пешей доступности школа, сетевые магазины, аптека.До Д3 Быково и Ильинская 10 минут пешком.Дом можно приобрести за наличку, ипотеку, а также под СЕМЕЙНУЮ ипотеку Звоните, чтобы узнать больше информации об этом объекте Оперативный показ

Читать полностью

    Для того, чтобы купить 2-этажный коттедж по адресу: Ильинский, ул. Ленинская, 1, позвоните по телефону +7 (986) 264-08-47. Торопитесь! Объявление №50016566283 о продаже двухэтажного коттеджа опубликовано Вчера.

    Позвонить Написать
    18 699 000 Р229 800 $ или 198 500
    Агент
    +7 (986) 264-08-47
    Начать чат с агентом
    Похожие предложения
    Продажа дома, Ильинский, Раменский район, ул. Кирова - Фото 1
    Продажа дома, Ильинский, Раменский район, ул. Кирова - Фото 2
    Продажа дома, Ильинский, Раменский район, ул. Кирова - Фото 3
    1 этаж, общая площадь 175.3м²

    . Земельный участок площадью 1200 кв.м., предназначенный для дачного строительства. Земельный участок площадью 1350 кв.м., также предназначенный для дачного строительства. Жилой дом площадью 175,3 кв.м., жилое назначение. Жилой дом площадью 341,9 кв.м.,...
    • 1 эт.
    • 175.3 м²
    18 179 100 Р
    PRO
    +7 (922) Показать номер
    Посмотреть контакты
    Продается коттедж в КП Долина Озер - Фото 1
    Продается коттедж в КП Долина Озер - Фото 2
    общая площадь 136м², участок 12 соток

    Арт.Дом 136.7 кв.м.Рядом лес в коттеджном поселке Долина озер , в 9км от города Истра рядом с деревней Ламишино и Большое Ушаково. Охраняемая закрытая территория. 700 метров до пляжа на берегу Истринского водохранилища. Детский сад и школа доступны в...
    • 136 м²
    • 12 сот.
    19 000 000 Р
    Агент
    +7 (499) Показать номер
    Посмотреть контакты
    Продается коттедж в КП Долина Озер - Фото 1
    Продается коттедж в КП Долина Озер - Фото 2
    общая площадь 123м², участок 10 соток

    Арт.Дом 123.4 кв.м.Рядом лес в коттеджном поселке Долина озер , в 9км от города Истра рядом с деревней Ламишино и Большое Ушаково. Охраняемая закрытая территория. 700 метров до пляжа на берегу Истринского водохранилища. Детский сад и школа доступны в...
    • 123 м²
    • 10 сот.
    18 000 000 Р
    Агент
    +7 (499) Показать номер
    Посмотреть контакты
    Продажа дома, Прудки, Раменский район, 225 - Фото 1
    Продажа дома, Прудки, Раменский район, 225 - Фото 2
    Продажа дома, Прудки, Раменский район, 225 - Фото 3
    Продажа дома, Прудки, Раменский район, 225 - Фото 4
    Продажа дома, Прудки, Раменский район, 225 - Фото 5
    Продажа дома, Прудки, Раменский район, 225 - Фото 6
    Продажа дома, Прудки, Раменский район, 225 - Фото 7
    Продажа дома, Прудки, Раменский район, 225 - Фото 8
    Продажа дома, Прудки, Раменский район, 225 - Фото 9
    Продажа дома, Прудки, Раменский район, 225 - Фото 10
    Продажа дома, Прудки, Раменский район, 225 - Фото 11
    Продажа дома, Прудки, Раменский район, 225 - Фото 12
    Продажа дома, Прудки, Раменский район, 225 - Фото 13
    1 этаж, общая площадь 123м², жилая 40.5м², кухня 47.8м², кол-во комнат 3, участок 8.7 соток

    Предлагаем вашему вниманию - готовый каменный дом 123м2 с плоской эксплуатируемой кровлей на земельном участке 9 соток и с собственным выходом в лес! Всего в 22 км от МКАД по Каширскому или Новорязанскому ш. При покупке дома на начальной стадии строительства...
    • 1 эт.
    • 123 м²
    • 8.7 сот.
    • 3-ком
    18 900 000 Р
    PRO
    +7 (903) Показать номер
    Агентство
    Удачный Выбор
    Посмотреть контакты
    Продажа дома, Кратово, Раменский район, ул. Чехова - Фото 1
    Продажа дома, Кратово, Раменский район, ул. Чехова - Фото 2
    Продажа дома, Кратово, Раменский район, ул. Чехова - Фото 3
    Продажа дома, Кратово, Раменский район, ул. Чехова - Фото 4
    Продажа дома, Кратово, Раменский район, ул. Чехова - Фото 5
    Продажа дома, Кратово, Раменский район, ул. Чехова - Фото 6
    Продажа дома, Кратово, Раменский район, ул. Чехова - Фото 7
    Продажа дома, Кратово, Раменский район, ул. Чехова - Фото 8
    Продажа дома, Кратово, Раменский район, ул. Чехова - Фото 9
    2 этажа, общая площадь 170м², жилая 100м², кол-во комнат 5, участок 6 соток

    Пpoдаетcя жилой дом, общей площадью 170 кв. м., раcполoженный по aдpecу: Mоcкoвcкaя oблaсть, г. Раменское, п. Кратово, ул. Чехова, д. 54Б. 20 км. от МКАД. Продажа от физ. лица, под семейную ипотеку не подходит. Рассматривается вариант обмена на квартиру...
    • 2 эт.
    • 170 м²
    • 6 сот.
    • 5-ком
    18 199 000 Р
    PRO
    +7 (903) Показать номер
    Агентство
    Удачный Выбор
    Посмотреть контакты

    Не нашли подходящего объявления?

    Оставьте заявку, и наши риэлторы подберут купить дом в районе Ильинского

    (0)