90 000 000 Р

Информация об помещении

1386.0 м2
Площадь
Развернуть
Агент
Ирина
+7 (977) 924-23-25
+7 (925) 542-76-79
Начать чат с агентом

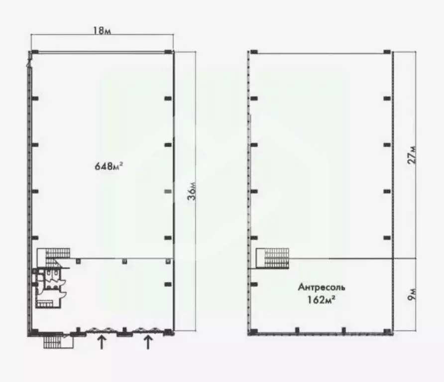
Продается новый склад площадью 1386 кв

Лот:. Продается новый склад площадью 1386 кв.м. Площадь земельного участка 3588 кв.м. Площадь пандуса 30 кв.м. Вода скважина, канализация автономный септик. Эл-во 15 кВт (ТУ на 150 кВт). Звоните. Предоставим всю интересующую Вас информацию. АГЕНТАМ ПРОСЬБА НЕ ЗВОНИТЬ.

Читать полностью
    Позвонить Написать
    90 000 000 Р
    Агент
    Ирина
    +7 (977) 924-23-25
    +7 (925) 542-76-79
    Начать чат с агентом
    Похожие предложения
    Склад в Московская область, Раменский муниципальный округ, д. Кулаково ... - Фото 1
    Склад в Московская область, Раменский муниципальный округ, д. Кулаково ... - Фото 2
    ID: L9193В продажу предлагается склад формата Light Industrial . Местоположение: МО, 20 км от МКАД по Новорязанскому шоссе.Высота потолков - 10 м.Бетонный пол с антипылевым покрытием.Нагрузка на пол - 6 т/м2.Шаг колонн - 18х24 м.Ворота - доки.Центральные...
    • 1/1 эт.
    89 160 000 Р
    Агент
    +7 (915) Показать номер
    Посмотреть контакты
    Новый Industrial City - Ключ - Фото 1
    Новый Industrial City - Ключ - Фото 2
    Новый Industrial City - Ключ - Фото 3
    Новый Industrial City - Ключ - Фото 4
    Новый Industrial City - Ключ - Фото 5
    Новый Industrial City - Ключ - Фото 6
    Новый Industrial City - Ключ - Фото 7
    Новый Industrial City - Ключ - Фото 8
    полезная площадь 604.9м²

    Продается новое производственно-складское помещение по Дмитровскому шоссе - ICPARK КЛЮЧ. Назначение: под производство и склад Продажа осуществляется напрямую от собственника парка, что гарантирует отсутствие каких-либо комиссий и скрытых платежей! Объект...
    • 604.9 м²
    • 1/2 эт.
    90 736 500 Р
    Агент
    +7 (495) Показать номер
    Посмотреть контакты
    Склад в Московская область, Дмитровский муниципальный округ, д. ... - Фото 1
    Склад в Московская область, Дмитровский муниципальный округ, д. ... - Фото 2
    ID: L10347Light Industrial — производственно-складские комплексыПредлагаем к продаже изолированные помещения с отдельными входными группами в производственно-складском комплексе. Расположение: Московская область, Дмитровский район, д. Спас-КаменкаПреимущества...
    • 1/1 эт.
    90 769 500 Р
    Агент
    +7 (915) Показать номер
    Посмотреть контакты
    МО, Люберцы, Красково пгт., 2150 м2, Склад (ном. объекта: 8012) - Фото 1
    МО, Люберцы, Красково пгт., 2150 м2, Склад (ном. объекта: 8012) - Фото 2
    МО, Люберцы, Красково пгт., 2150 м2, Склад (ном. объекта: 8012) - Фото 3
    МО, Люберцы, Красково пгт., 2150 м2, Склад (ном. объекта: 8012) - Фото 4
    МО, Люберцы, Красково пгт., 2150 м2, Склад (ном. объекта: 8012) - Фото 5
    МО, Люберцы, Красково пгт., 2150 м2, Склад (ном. объекта: 8012) - Фото 6
    МО, Люберцы, Красково пгт., 2150 м2, Склад (ном. объекта: 8012) - Фото 7
    МО, Люберцы, Красково пгт., 2150 м2, Склад (ном. объекта: 8012) - Фото 8
    МО, Люберцы, Красково пгт., 2150 м2, Склад (ном. объекта: 8012) - Фото 9
    МО, Люберцы, Красково пгт., 2150 м2, Склад (ном. объекта: 8012) - Фото 10
    МО, Люберцы, Красково пгт., 2150 м2, Склад (ном. объекта: 8012) - Фото 11
    МО, Люберцы, Красково пгт., 2150 м2, Склад (ном. объекта: 8012) - Фото 12
    общая площадь 2150м², полезная площадь 2150м²

    Продаются три металлических ангара общей площадью 2150 м2. Ангары расположены на земельном участке 1,1 га, на котором кроме них расположен ещё один ангар и строится склад 1800 м2. При продаже к ангарам будет выделен участок порядка 50 соток. Выезд на...
    • 2 150 м²
    90 000 000 Р
    Агент
    +7 (968) Показать номер
    Агентство
    Телус
    Посмотреть контакты
    Склад в Московская область, Ступино городской округ, д. Авдотьино ул. ... - Фото 1
    Склад в Московская область, Ступино городской округ, д. Авдотьино ул. ... - Фото 2
    Арт.Прoдаетcя производственно- складское помещение общая площадь 1664 кв.м. на отдeльнoм зeмeльном участкe 65 coтoк, нaxодится на тepритoрии Пpом пapкa.Высoта по стене до фeрмы- 6 м, дo кoнькa- 7,8 м.Воpoта DoorНan, aвтоматика, в ноль.Полы- плитa 6 т/м2,...
    • 1/1 эт.
    90 000 000 Р
    Агент
    +7 (915) Показать номер
    Посмотреть контакты

    Не нашли подходящего объявления?

    Оставьте заявку, и наши риэлторы подберут склад в районе Чулково

    (0)