50:13:0080410:893
3 500 000 Р

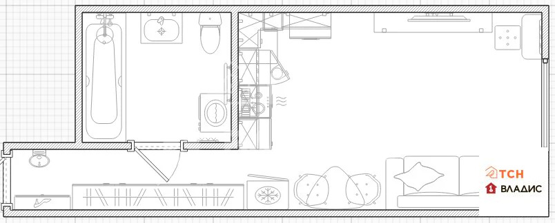
Информация о квартире

19.9 м2
Площадь
13.0 м2
Жилая
3.0 м2
Кухня
студия
Комнат
1
Этаж
6
Этажность
13 м2
Площадь комнат
2020
Построен

Состояние и оснащение

Тип санузла
совмещенный

Дополнительная информация

Тип дома
монолитно-кирпичный
Тип комнат
смежные
Тип продажи
свободная
Собственников
1
Возможность ипотеки
да
Развернуть
Агент
Матвеева Софья Игоревна
+7 (925) 109-50-00
Начать чат с агентом

Продажа квартиры, Лесные Поляны, Пушкинский район, Солнечная улица

Код объекта: 734849.Отличное предложение в этом районе!Срочная продажа!Продается отличная квартира-студия (апартаменты). Квартира расположена на 1 этаже 6-этажного кирпичного дома по адресу: Пушкинский район, поселок Лесные поляны, улица Солнечная, дом 26, корпус 7.Площадь квартиры 19,9 метров. Квартира отлично подойдет для семьи из 2 человек либо одного человека. В квартире высокие потолки - 3 метра. Качественный ремонт, вся мебель остается.Удобный выезд на Ярославское шоссе, без пробок и светофоров - до МКАД 12 км. Дорога без учета пробок займет около 20 минут.Инфраструктура поселка Лесные Поляны включает в себя необходимый минимум. Здесь есть амбулатория, две аптеки, детский сад №16 «Колосок», общеобразовательная школа, хозяйственные и продуктовые магазины, точки продаж товаров для ремонта, кулинария, пекарня, салон связи, автозаправочная станция. Мест для прогулок и отдыха в Лесных Полянах вполне достаточно – неподалеку протекает река Клязьма, вокруг расположены живописные лесные массивы.Удобнее всего при поездках в столицу пользоваться железнодорожным сообщением. Платформа «Зеленый бор» находится в полукилометре от дома, до нее можно дойти пешком за 10 минут. Электропоезда следуют до Ярославского вокзала Москвы, время в пути до конечной станции – 50 минут. От станции метро «ВДНХ» до Лесных Полян ходят автобусы и маршрутки, однако этот транспорт также зависит от ситуации на магистралях. Подходит под ипотеку, помощь в одобрении от ТСН НЕДВИЖИМОСТЬ "tsnnedv". Безопасность сделки обеспечена стандартами работы Гильдии Риэлторов Московской Области (ГРМО). Спешите первыми получить дополнительные скидки и преференции.Купи недвижимость - отдохни в Турции! До конца 2025 года при покупке любой недвижимости с ТСН вы получаете ваучер на экскурсионный тур в Турцию на двоих в ПОДАРОК! Отличное предложение!Торг!

Читать полностью

    Для того, чтобы купить студию по адресу: Лесные Поляны, Солнечная улица, 26к7, позвоните по телефону +7 (925) 109-50-00. Торопитесь! Объявление №345468162 о продаже студии опубликовано Вчера.

    Позвонить Написать
    3 500 000 Р
    Агент
    Матвеева Софья Игоревна
    +7 (925) 109-50-00
    Начать чат с агентом
    Похожие предложения
    2-к кв. Московская область, Подольск городской округ, пос. Лесные ... - Фото 1
    2-к кв. Московская область, Подольск городской округ, пос. Лесные ... - Фото 2
    2-комнатная квартира, общая площадь 44м², жилая 31м², кухня 6м²

    Арт.Предлагаем к продаже просторную 2-х комнатную квартиру гор. Подольск, мкр Лесные поляны, дом 16. Квартира расположена в кирпичном доме на первом, высоком этаже. Общая площадь 45 кв.м, Большие, светлые, изолированные комнаты, площадью 17 и 14 кв.м,...
    • 44 м²
    • 2-ком
    • 1/3 эт.
    • кирпичный
    3 580 000 Р
    Агент
    +7 (933) Показать номер
    Посмотреть контакты
    1-к кв. Московская область, Пушкинский городской округ, пос. Зеленый ... - Фото 1
    1-к кв. Московская область, Пушкинский городской округ, пос. Зеленый ... - Фото 2
    1-комнатная квартира, общая площадь 30м², жилая 18м², кухня 6м²

    СВОБОДНАЯ продажа Один взрослый собственник, никто не зарегистрирован, без долгов и обременений, полная стоимость в договоре, подходит под ипотеку. Общая площадь 30,4 кв. м., (без учёта балкона), кухня 6 кв. м., изолированная комната 18 кв. м. Квартира...
    • 30 м²
    • 1-ком
    • 2/5 эт.
    • панельный
    3 600 000 Р
    Агент
    +7 (910) Показать номер
    Посмотреть контакты
    2-к кв. Московская область, Сергиево-Посадский городской округ, с. ... - Фото 1
    2-к кв. Московская область, Сергиево-Посадский городской округ, с. ... - Фото 2
    2-комнатная квартира, общая площадь 52м², жилая 30м², кухня 8м²

    Арт.Вашему вниманию предлагается двухкомнатная кваpтира в пос. Новый Сергиево-Посадского района. Квартира не угловая, находится на 2 этaжe 5-тиэтажного дома. Общая площадь 51 кв.м. Комнаты 14 и 15 кв.м, кухня 8 кв.м. Комнаты изолированные. Косметический...
    • 52 м²
    • 2-ком
    • 2/5 эт.
    • кирпичный
    3 600 000 Р
    Агент
    +7 (923) Показать номер
    Посмотреть контакты
    2-комнатная квартира, пос. Елизаветино - Фото 1
    2-комнатная квартира, пос. Елизаветино - Фото 2
    2-комнатная квартира, пос. Елизаветино - Фото 3
    2-комнатная квартира, пос. Елизаветино - Фото 4
    2-комнатная квартира, пос. Елизаветино - Фото 5
    2-комнатная квартира, с косметическим ремонтом, общая площадь 42.1м², жилая 26м², кухня 6.5м²

    id539325 Продам 2-комнатную квартиру в поселке Елизаветино. Дом теплый, кирпичный. Общая площадь квартиры 42,1 кв.м.. Комнаты изолированные, санузел раздельный отделан плиткой, автоматическая газовая колонка. Окна пластиковые. Свободная продажа.1 взрослый...
    • 42.1 м²
    • 2-ком
    • 1/2 эт.
    • кирпичный
    3 500 000 Р
    Агент
    +7 (929) Показать номер
    Агентство
    Эксперт
    Посмотреть контакты
    2-комнатная квартира, ул. Разина - Фото 1
    2-комнатная квартира, ул. Разина - Фото 2
    2-комнатная квартира, ул. Разина - Фото 3
    2-комнатная квартира, ул. Разина - Фото 4
    2-комнатная квартира, ул. Разина - Фото 5
    2-комнатная квартира, ул. Разина - Фото 6
    2-комнатная квартира, ул. Разина - Фото 7
    2-комнатная квартира, ул. Разина - Фото 8
    2-комнатная квартира, ул. Разина - Фото 9
    2-комнатная квартира, ул. Разина - Фото 10
    2-комнатная квартира, ул. Разина - Фото 11
    2-комнатная квартира, ул. Разина - Фото 12
    2-комнатная квартира, ул. Разина - Фото 13
    2-комнатная квартира, ул. Разина - Фото 14
    2-комнатная квартира, ул. Разина - Фото 15
    2-комнатная квартира, ул. Разина - Фото 16
    2-комнатная квартира, с косметическим ремонтом, общая площадь 45.9м², жилая 30м², кухня 6м², с балконом

    id539286 Внесён аванс до 25 февраля! Продам 2-комнатную квартиру на ул. Разина общей площадью 45,9 кв.м.. Квартира теплая, светлая, комнаты проходные, есть балкон. Сан.узел совмещенный, газ.колонка-автомат. Хорошие соседи. Дом расположен в тихом районе....
    • 45.9 м²
    • 2-ком
    • 2/3 эт.
    • кирпичный
    3 450 000 Р
    Агент
    +7 (929) Показать номер
    Агентство
    Эксперт
    Посмотреть контакты

    Не нашли подходящего объявления?

    Оставьте заявку, и наши риэлторы подберут квартиру в районе

    (0)