83 400 000 Р 1 083 500 $ или 926 500

Информация об помещении

1
Этаж

Состояние и оснащение

Количество этажей
4
Развернуть
Агент
+7 (918) 193-14-80
Начать чат с агентом

Помещение свободного назначения в Московская область, Протвино ...

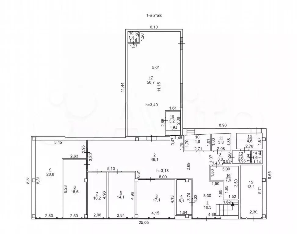
Уникальное предложение от собственника Нежилые помещения в центре города. ПАО Ростелеком предлагает к продаже нежилые помещения общей площадью 2 789,3 кв.м., расположенные в здании узла связи с КН 50:59:0000000:1024. Продажа осуществляется единым лотом. Земельный участок принадлежит на праве долгосрочной аренды. Общая площадь 4 239 кв.м., кадастровый номер 50:59:0020205:1 Отличная социальная инфраструктура, удобный доступ для личного и общественного транспорта без ограничений. Парковка возможна на прилегающей территории — удобно для ваших клиентов Возможные цели использования: Офисное пространство Торговое или сервисное помещение Кофейня или магазин Учебный центр или консультационная служба Складов и логистических компаний Выставочных залов Учебных и коммерческих проектов Обязательное условие - заключение договора (обратной) аренды с продавцом: - площадь 1 297,1 кв.м, сроком 18 месяцев, с годовым доходом без НДС; В здании имеется действующий арендатор с гарантированным доходом, арендный поток составляет в месяц без учета НДС. Арендуемая площадь по доходному договору аренды составляет 72,7 кв. м. Продажа от собственника — юридического лица ПАО Ростелеком Мы гарантируем грамотное оформление сделок и юридическую чистоту объектов. Рассматриваем предложения от брокеров и риелторов и готовы к заключению договора на оказание услуг. У нас также есть много других объектов по Московской области. Звоните, будем рады ответить на все ваши вопросы

Читать полностью
    Позвонить Написать
    83 400 000 Р1 083 500 $ или 926 500
    Агент
    +7 (918) 193-14-80
    Начать чат с агентом
    Похожие предложения
    Помещение свободного назначения в Московская область, Подольск ... - Фото 1
    Помещение свободного назначения в Московская область, Подольск ... - Фото 2
    Объект 312570ГАБ. Ваш менеджер Александр
    • 1/1 эт.
    84 000 000 Р
    Агент
    +7 (916) Показать номер
    Посмотреть контакты
    Продажа ПСН, м. Озёрная, ул. Озерная - Фото 1
    Продажа ПСН, м. Озёрная, ул. Озерная - Фото 2
    Продажа ПСН, м. Озёрная, ул. Озерная - Фото 3
    Продажа ПСН, м. Озёрная, ул. Озерная - Фото 4
    Продажа ПСН, м. Озёрная, ул. Озерная - Фото 5
    Продажа ПСН, м. Озёрная, ул. Озерная - Фото 6
    Продажа ПСН, м. Озёрная, ул. Озерная - Фото 7
    Продажа ПСН, м. Озёрная, ул. Озерная - Фото 8
    Продажа ПСН, м. Озёрная, ул. Озерная - Фото 9
    Продажа ПСН, м. Озёрная, ул. Озерная - Фото 10
    Продажа ПСН, м. Озёрная, ул. Озерная - Фото 11
    общая площадь 141.4м², полезная площадь 141.4м²

    Продажа помещения свободного назначения в ЖК бизнес-класса в районе Очаково-Матвеевское (ЗАО), в 2-х минутах пешком от метро Озерная. Площадь помещения 141,4 м2, планировка открытая (блок № 5н). Помещение расположено на 1-м этаже, есть собственный отдельный...
    • 141.4 м²
    • 1-й эт.
    82 790 500 Р
    Агент
    +7 (903) Показать номер
    Посмотреть контакты
    Продажа ПСН, м. Аэропорт, Ленинградский пр-кт. - Фото 1
    Продажа ПСН, м. Аэропорт, Ленинградский пр-кт. - Фото 2
    Продажа ПСН, м. Аэропорт, Ленинградский пр-кт. - Фото 3
    Продажа ПСН, м. Аэропорт, Ленинградский пр-кт. - Фото 4
    общая площадь 64.1м², полезная площадь 64.1м²

    Продажа помещения площадью 64,1 кв.м, на выходе из метро Аэропорт. Помещение свободного назначения расположено на 1-й фасадной линии Ленинградского пр-та. В непосредственной близости подземный пешеходный переход и остановка общественного транспорта. Местоположение...
    • 64.1 м²
    • 1-й эт.
    82 800 000 Р
    Агент
    +7 (903) Показать номер
    Посмотреть контакты
    Продажа ПСН, м. Воронцовская, ул. Академика Челомея - Фото 1
    Продажа ПСН, м. Воронцовская, ул. Академика Челомея - Фото 2
    Продажа ПСН, м. Воронцовская, ул. Академика Челомея - Фото 3
    Продажа ПСН, м. Воронцовская, ул. Академика Челомея - Фото 4
    Продажа ПСН, м. Воронцовская, ул. Академика Челомея - Фото 5
    Продажа ПСН, м. Воронцовская, ул. Академика Челомея - Фото 6
    Продажа ПСН, м. Воронцовская, ул. Академика Челомея - Фото 7
    Продажа ПСН, м. Воронцовская, ул. Академика Челомея - Фото 8
    Продажа ПСН, м. Воронцовская, ул. Академика Челомея - Фото 9
    Продажа ПСН, м. Воронцовская, ул. Академика Челомея - Фото 10
    Продажа ПСН, м. Воронцовская, ул. Академика Челомея - Фото 11
    общая площадь 143.9м², полезная площадь 143.9м²

    Продажа помещения свободного назначения в новом комплексе АФИ Парк Воронцовский, в Обручевском районе, ЮЗАО, в 5 минутах пешком от м.Воронцовская. Площадь помещения 143,9 м2, 1-й этаж 25-ти этажного жилого дома (1-я очередь, сдан в 1 кв.2024 года). 2...
    • 143.9 м²
    • 1-й эт.
    83 663 460 Р
    Агент
    +7 (903) Показать номер
    Посмотреть контакты
    Помещение свободного назначения в Москва Ленинградский просп., 71КГ ... - Фото 1
    Помещение свободного назначения в Москва Ленинградский просп., 71КГ ... - Фото 2
    1163389. Предлагаем торговое помещение под лицензируемый вид деятельности (медицина, фармакология, образовательные услуги), площадью 105.4 кв. м., расположенное на первом этаже и антресоли 8-этажного жилого дома. Без комиссии для покупателя.Преимущества...
    • 1/8 эт.
    84 000 000 Р
    Агент
    +7 (938) Показать номер
    Посмотреть контакты

    Не нашли подходящего объявления?

    Оставьте заявку, и наши риэлторы подберут псн в районе Протвино

    (0)