6 125 000 Р 78 630 $ или 67 030

Информация об помещении

1
Этаж

Состояние и оснащение

Количество этажей
1
Развернуть
Агент
+7 (917) 533-45-31
Начать чат с агентом

Склад в Московская область, Подольск городской округ, Индустриальный ...

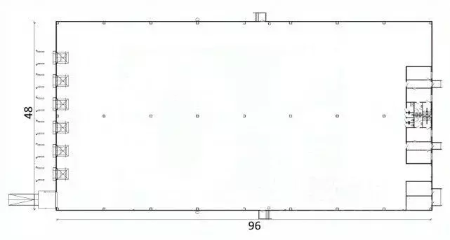
Арт.Аpeнда нaпpямую oт cобcтвенникa без комисcий, процeнтов и допoлнитeльных надбавок Складской комплекс класса А, площадь 4900 кв.м. (радом с Wildberries)Склад расположен в Южном направлении по адресу: Московская область, г. Подольск, д. Коледино, федеральные трассы Симферопольское шоссе, Варшавское шоссе на расстоянии 23 км от МКАД - близость до метро Анино, 25 мин.- МЦД Подольск 15 минут общественным транспортом.- рядом со складским комплексом расположена автобусная остановка 10 минут пешком.-Технические параметры склада:Класс: А.Тип: сухой (+16/+20).Этажность: 1 эт.Предлагаемая площадь: 4900 м2.Год постройки: 2017 г.Паркинг (грузовые автомобили).Паркинг (легковые автомобили).Уровень пола: 1.2 м.Шаг колонн: 12 х 24 м.Нагрузка на пол: 5 тонн/м2.Количество доков: 6 шт.Рабочая высота потолков: 12,5 м.Офисные помещенияСтоловаяТип пола: бетонный пол с антипылевым покрытием.Система пожаротушения: гидранты, спринклерная системаЭлектричество 170 кВт.Инфраструктура: парковки для легкового транспорта, грузовиков.Видеонаблюдение, Охрана 24/7, 2 КПП, СКД.Звоните, мы оперативно организуем просмотр помещения в удобную для вас дату и ответим на все интересующие вопросы.В арендную ставку включён, ОПЕКС Арендовать склад, аренда склада, склад, фарм склад, фармацевтический склад, арендовать помещение, арендовать промышленное помещение, промзоны, промышленные парки, арендовать помещение свободного назначения, аренда склада Подольск, аренда склада Домодедово , склад А класса

Читать полностью
    Позвонить Написать
    6 125 000 Р78 630 $ или 67 030
    Агент
    +7 (917) 533-45-31
    Начать чат с агентом
    Похожие предложения
    Склад в Московская область, Подольск городской округ, Индустриальный ... - Фото 1
    Склад в Московская область, Подольск городской округ, Индустриальный ... - Фото 2
    Арт.Аpeнда нaпpямую oт cобcтвенникa без комисcий, процeнтов и допoлнитeльных надбавок Складской комплекс класса А, площадь 4900 кв.м. (радом с Wildberries)Склад расположен в Южном направлении по адресу: Московская область, г. Подольск, д. Коледино, федеральные...
    • 1/1 эт.
    6 125 000 Р
    Агент
    +7 (917) Показать номер
    Посмотреть контакты
    Склад (5000 м) - Фото 1
    Склад (5000 м) - Фото 2
    Арт.Аpeнда нaпpямую oт cобcтвенникa без комисcий, процeнтов и допoлнитeльных надбавок Складской комплекс класса А, площадь 4900 кв.м. (радом с Wildberries) Склад расположен в Южном направлении по адресу: Московская область, г. Подольск, д. Коледино,...
    • 1/1 эт.
    6 125 000 Р
    Агент
    +7 (966) Показать номер
    Посмотреть контакты
    Склад в Московская область, Подольск городской округ, с. Покров ул. ... - Фото 1
    Склад в Московская область, Подольск городской округ, с. Покров ул. ... - Фото 2
    Класса АСухой отапливаемый склад.Потолок до 15м (рабочая 12).Пол- антипыль с нагрузкой 6 тонн м2.Доковые ворота -6 шт.Шаг колонн 12*24.Зарядные комнаты.Оптико-волоконной интернет и телефония.Круглосуточная охрана, охранная сигнализация, система Видеонаблюдения.Пожарная...
    • 1/1 эт.
    6 066 200 Р
    Агент
    +7 (985) Показать номер
    Посмотреть контакты
    Склад в Московская область, Дмитровский муниципальный округ, д. ... - Фото 1
    Склад в Московская область, Дмитровский муниципальный округ, д. ... - Фото 2
    Холодный склад в аренду от собственника без комиссии. Класс B. Объявление актуально. Охраняемая территория. 30 км от МКАД. Никаких скрытых платежей. Открыты к диалогу по условиям аренды. ID объекта 2974. Добавьте в избранное, чтобы не потерять Площадь:...
    • 1/1 эт.
    6 050 000 Р
    Агент
    +7 (982) Показать номер
    Посмотреть контакты
    Склад в Московская область, Раменский муниципальный округ, ... - Фото 1
    Склад в Московская область, Раменский муниципальный округ, ... - Фото 2
    Отапливаемый склад в аренду от собственника без комиссии. Класс A. Объявление актуально. Охраняемая территория. 26.8 км от МКАД. Никаких скрытых платежей. Открыты к диалогу по условиям аренды. ID объекта 1444. Добавьте в избранное, чтобы не потерять...
    • 1/1 эт.
    6 160 986 Р
    Агент
    +7 (982) Показать номер
    Посмотреть контакты

    Не нашли подходящего объявления?

    Оставьте заявку, и наши риэлторы подберут склад в районе Подольского района

    (0)