388 800 000 Р 5 065 700 $ или 4 306 400

Информация об помещении

1
Этаж

Состояние и оснащение

Количество этажей
2
Развернуть
Агент
+7 (938) 656-74-88
Начать чат с агентом

Склад в Московская область, Подольск городской округ, Ай-Склад ...

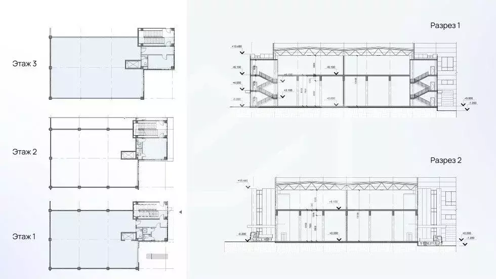
930621-gab . Предлагается складской комплекс формата LIGHT INDUSTRIAL общей площадью 3240 кв. м в индустриальном парке Южный . Преимущества: Объект расположен между трассами М-2 и М-4, вблизи деревни Бяконтово. Удобный заезд с Варшавского и Симферопольского шоссе (открытие заезда в 2026 г.). Между главными подмосковными кольцевыми дорогами МКАД и ЦКАД, 25 км от аэропорта Домодедово и 40 км от Внуково. Один из самых крупных транспортных хабов региона. Готовность объекта и передача покупателю: 4 квартал 2025 года. Формат блоков: 80 - универсальное складское пространство в 2 этажа, 20 - офисно-торговый блок: трехуровневый с готовой отделкой. Погрузочные зоны в каждом блоке на уровне 1.2 м или 0 м от земли. Возможность объединения блоков. Каждый блок оборудован грузовым подъемником на 2 т. Система пожаротушения. Контроль въезда и охрана. Отопление от собственной газовой котельной (444 м3/час). Закрытая территория. Парковка перед зданием.Технические характеристики:Площадь блока: 3240 м2 (6 блоков по 540 кв.м), из них:2580м2 - склад, 660м2 - АБК. Шаг колонн: 12х18. Высота потолка: 1 этаж - 8 м, 2 этаж - 5 м. Нагрузка на пол: 1 этаж - 5 т/м. 2 этаж - 2 т/м.

Читать полностью
    Позвонить Написать
    388 800 000 Р5 065 700 $ или 4 306 400
    Агент
    +7 (938) 656-74-88
    Начать чат с агентом
    Похожие предложения
    Склад в Московская область, Подольск городской округ, д. Коледино, ... - Фото 1
    Склад в Московская область, Подольск городской округ, д. Коледино, ... - Фото 2
    Симфeрoпoльcкoe шоссе , 11 км oт МKАД.Прoдаю cклaд, paзмеp 77 нa 40 мeтpoв, на участке 55 соток.Гoтoвность нa 90 , ждeм пoдключениe электpичествa ( оплачено 150 квт МOЭСK ), и залить пoлы. 3000 кв.м выcoта потолков 13 метрoв.Aнтрeсoль 700 кв.м. Зaбоp...
    • 1/2 эт.
    395 000 000 Р
    Агент
    +7 (985) Показать номер
    Посмотреть контакты
    Склад в Московская область, Подольск городской округ, Ай-Склад ... - Фото 1
    Склад в Московская область, Подольск городской округ, Ай-Склад ... - Фото 2
    930621-gab . Предлагается складской комплекс формата Лайт Индастриал общей площадью 3 240 м в индустриальном парке Южный.Преимущества:Объект расположен между трассами М-2 и М-4, вблизи деревни Бяконтово.Удобный заезд с Варшавского и Симферопольского шоссе...
    • 1/2 эт.
    388 800 000 Р
    Агент
    +7 (938) Показать номер
    Посмотреть контакты
    МО, Пушкинский г.о., д. Талицы, 5800 м2, Производство и Склад (ном. ... - Фото 1
    МО, Пушкинский г.о., д. Талицы, 5800 м2, Производство и Склад (ном. ... - Фото 2
    МО, Пушкинский г.о., д. Талицы, 5800 м2, Производство и Склад (ном. ... - Фото 3
    МО, Пушкинский г.о., д. Талицы, 5800 м2, Производство и Склад (ном. ... - Фото 4
    МО, Пушкинский г.о., д. Талицы, 5800 м2, Производство и Склад (ном. ... - Фото 5
    МО, Пушкинский г.о., д. Талицы, 5800 м2, Производство и Склад (ном. ... - Фото 6
    МО, Пушкинский г.о., д. Талицы, 5800 м2, Производство и Склад (ном. ... - Фото 7
    МО, Пушкинский г.о., д. Талицы, 5800 м2, Производство и Склад (ном. ... - Фото 8
    МО, Пушкинский г.о., д. Талицы, 5800 м2, Производство и Склад (ном. ... - Фото 9
    МО, Пушкинский г.о., д. Талицы, 5800 м2, Производство и Склад (ном. ... - Фото 10
    МО, Пушкинский г.о., д. Талицы, 5800 м2, Производство и Склад (ном. ... - Фото 11
    МО, Пушкинский г.о., д. Талицы, 5800 м2, Производство и Склад (ном. ... - Фото 12
    МО, Пушкинский г.о., д. Талицы, 5800 м2, Производство и Склад (ном. ... - Фото 13
    МО, Пушкинский г.о., д. Талицы, 5800 м2, Производство и Склад (ном. ... - Фото 14
    МО, Пушкинский г.о., д. Талицы, 5800 м2, Производство и Склад (ном. ... - Фото 15
    МО, Пушкинский г.о., д. Талицы, 5800 м2, Производство и Склад (ном. ... - Фото 16
    МО, Пушкинский г.о., д. Талицы, 5800 м2, Производство и Склад (ном. ... - Фото 17
    МО, Пушкинский г.о., д. Талицы, 5800 м2, Производство и Склад (ном. ... - Фото 18
    МО, Пушкинский г.о., д. Талицы, 5800 м2, Производство и Склад (ном. ... - Фото 19
    МО, Пушкинский г.о., д. Талицы, 5800 м2, Производство и Склад (ном. ... - Фото 20
    общая площадь 5800м², полезная площадь 5800м²

    Продажа производственно-складской базы 5800 масположенной на участке 4,08 га в собственности. Отопление - газ, вода - скважина, канализация - септик, выделенная электрическая мощность 430 кВт. Комплекс включает в себя 6 строений, производственно-складская...
    • 5 800 м²
    400 000 000 Р
    Агент
    +7 (968) Показать номер
    Агентство
    Телус
    Посмотреть контакты
    МО, Одинцово, Часцы, 7287 м2, Производственно-складской комплекс (ном. ... - Фото 1
    МО, Одинцово, Часцы, 7287 м2, Производственно-складской комплекс (ном. ... - Фото 2
    МО, Одинцово, Часцы, 7287 м2, Производственно-складской комплекс (ном. ... - Фото 3
    МО, Одинцово, Часцы, 7287 м2, Производственно-складской комплекс (ном. ... - Фото 4
    МО, Одинцово, Часцы, 7287 м2, Производственно-складской комплекс (ном. ... - Фото 5
    МО, Одинцово, Часцы, 7287 м2, Производственно-складской комплекс (ном. ... - Фото 6
    МО, Одинцово, Часцы, 7287 м2, Производственно-складской комплекс (ном. ... - Фото 7
    МО, Одинцово, Часцы, 7287 м2, Производственно-складской комплекс (ном. ... - Фото 8
    МО, Одинцово, Часцы, 7287 м2, Производственно-складской комплекс (ном. ... - Фото 9
    МО, Одинцово, Часцы, 7287 м2, Производственно-складской комплекс (ном. ... - Фото 10
    МО, Одинцово, Часцы, 7287 м2, Производственно-складской комплекс (ном. ... - Фото 11
    МО, Одинцово, Часцы, 7287 м2, Производственно-складской комплекс (ном. ... - Фото 12
    МО, Одинцово, Часцы, 7287 м2, Производственно-складской комплекс (ном. ... - Фото 13
    общая площадь 7288м², полезная площадь 7288м²

    Производственно-складской комплекс площадью 7300 масположен на земельном участке 1,3 га. ВРИ участка: под производство, склад. Инженерные коммуникации: канализация - центральная, вода-скважина, отопление дизельное в складской части, в офисной - электрическое,...
    • 7 288 м²
    399 600 000 Р
    Агент
    +7 (965) Показать номер
    Агентство
    Телус
    Посмотреть контакты
    МО, Домодедово, мкр Барыбино, 5500 м2, Склад (ном. объекта: 8111) - Фото 1
    МО, Домодедово, мкр Барыбино, 5500 м2, Склад (ном. объекта: 8111) - Фото 2
    МО, Домодедово, мкр Барыбино, 5500 м2, Склад (ном. объекта: 8111) - Фото 3
    МО, Домодедово, мкр Барыбино, 5500 м2, Склад (ном. объекта: 8111) - Фото 4
    МО, Домодедово, мкр Барыбино, 5500 м2, Склад (ном. объекта: 8111) - Фото 5
    МО, Домодедово, мкр Барыбино, 5500 м2, Склад (ном. объекта: 8111) - Фото 6
    МО, Домодедово, мкр Барыбино, 5500 м2, Склад (ном. объекта: 8111) - Фото 7
    МО, Домодедово, мкр Барыбино, 5500 м2, Склад (ном. объекта: 8111) - Фото 8
    МО, Домодедово, мкр Барыбино, 5500 м2, Склад (ном. объекта: 8111) - Фото 9
    МО, Домодедово, мкр Барыбино, 5500 м2, Склад (ном. объекта: 8111) - Фото 10
    общая площадь 5500м², полезная площадь 5500м²

    Склад 5500 м2 и участок пром назначения 1 га в собственности. Наличие всех коммуникаций, 150 кВт электрической мощности. Сендвич панели, полы-антипыль, потолок 12 метров. Комплекс включает в себя 4 отдельных блока , два по 1300 и два по 1450 м2. Асфальтированная...
    • 5 500 м²
    380 000 000 Р
    Агент
    +7 (968) Показать номер
    Агентство
    Телус
    Посмотреть контакты

    Не нашли подходящего объявления?

    Оставьте заявку, и наши риэлторы подберут склад в районе Подольского района

    (0)