162 222 400 Р 2 065 800 $ или 1 766 900

Информация об помещении

1
Этаж

Состояние и оснащение

Количество этажей
1
Развернуть
Агент
+7 (938) 656-74-88
Начать чат с агентом

Помещение свободного назначения в Московская область, Подольск ...

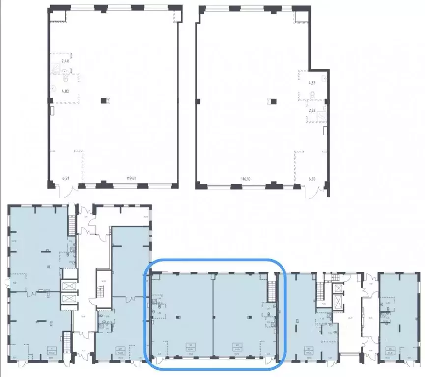
863746 . Предлагается складское помещение площадью 1013,89 м2.Корпус D, блок 38.Преимущества:IC PARK КОЛЕДИНО общей 105830м2, расположено на территории индустриального парка Коледино , на участке 365 га. 18 км от МКАД и в 8 км от ЦКАД (центральной кольцевой автодороги).Рядом Симферопольское шоссе, собственный съезд с трассы М-2 Крым . Цифровой промышленный коворкинг Industrial City в формате Light Industrial прошел сертификацию ассоциации по уровню готовности зданий к облачным подключениям и соответствию стандартам цифровой экономики. Парки Industrial City подключены к мощным центрам обработки данных, имеют высокий уровень надежности и безопасности. Готовая инженерная инфраструктура, оборудованные парковочные места, доступ к производственно-складским помещениям 24/7, комплексная эксплуатация объектов, охраняемая территория. Въезд на территорию бесплатный (цена входит в охрану).В 10 минутах есть остановка автобуса Коледино до Климовска.Технические характеристики: Склад - 903,96 м2, офис - 109,93 м2.Шаг колонн: 36х24 м.Высота потолка: 8 м - до низа металлоконструкций.Ворота - доковые 1 шт.Нагрузка на пол: 4т/м.Количество грузовых парковочных мест - 1, легковых - 3.Увеличение/уменьшение площади.Возможно приобретение в ипотеку.

Читать полностью
    Позвонить Написать
    162 222 400 Р2 065 800 $ или 1 766 900
    Агент
    +7 (938) 656-74-88
    Начать чат с агентом
    Похожие предложения
    Помещение свободного назначения в Московская область, Химки ... - Фото 1
    Помещение свободного назначения в Московская область, Химки ... - Фото 2
    СобственникБрокерам предусмотрена комиссияПродам помещение в ЖК Ивакино 413 м2 с арендатором Магнит нового формата.Помещение расположено в стилобатной части дома, на первой линии Олимпийской ул., напротив основной паркинг жилого комплекса и въезд.Первая...
    • 1/18 эт.
    163 000 000 Р
    Агент
    +7 (985) Показать номер
    Посмотреть контакты
    Продажа ПСН, Одинцовский, Одинцовский район, Красногорское шоссе - Фото 1
    Продажа ПСН, Одинцовский, Одинцовский район, Красногорское шоссе - Фото 2
    Продажа ПСН, Одинцовский, Одинцовский район, Красногорское шоссе - Фото 3
    Продажа ПСН, Одинцовский, Одинцовский район, Красногорское шоссе - Фото 4
    Продажа ПСН, Одинцовский, Одинцовский район, Красногорское шоссе - Фото 5
    Продажа ПСН, Одинцовский, Одинцовский район, Красногорское шоссе - Фото 6
    Продажа ПСН, Одинцовский, Одинцовский район, Красногорское шоссе - Фото 7
    Продажа ПСН, Одинцовский, Одинцовский район, Красногорское шоссе - Фото 8
    Продажа ПСН, Одинцовский, Одинцовский район, Красногорское шоссе - Фото 9
    Продажа ПСН, Одинцовский, Одинцовский район, Красногорское шоссе - Фото 10
    Продажа ПСН, Одинцовский, Одинцовский район, Красногорское шоссе - Фото 11
    Продажа ПСН, Одинцовский, Одинцовский район, Красногорское шоссе - Фото 12
    Продажа ПСН, Одинцовский, Одинцовский район, Красногорское шоссе - Фото 13
    Продажа ПСН, Одинцовский, Одинцовский район, Красногорское шоссе - Фото 14
    Продажа ПСН, Одинцовский, Одинцовский район, Красногорское шоссе - Фото 15
    общая площадь 930.6м², полезная площадь 930.6м²

    ПРОДАЖА АВТОМОЕЧНОГО КОМПЛЕКСА С ЗЕМЕЛЬНЫМ УЧАСТКОМ В СОБСТВЕННОСТИ. Одинцово. Продажа отдельно стоящего здания общей площадью 930,6 кв.м. Состоит из двух уровней: 1 этаж - 460 кв.м, 2 этаж - 470.6кв.м. Высота потолков 5 м, открытая планировка, окна...
    • 930.6 м²
    • 1-й эт.
    165 000 000 Р
    PRO
    +7 (903) Показать номер
    Посмотреть контакты
    Продается ПСН 633.1 м2 - Фото 1
    Продается ПСН 633.1 м2 - Фото 2
    Продается ПСН 633.1 м2 - Фото 3
    Продается ПСН 633.1 м2 - Фото 4
    Продается ПСН 633.1 м2 - Фото 5
    Продается ПСН 633.1 м2 - Фото 6
    Продается ПСН 633.1 м2 - Фото 7
    Продается ПСН 633.1 м2 - Фото 8
    Продается ПСН 633.1 м2 - Фото 9
    Продается ПСН 633.1 м2 - Фото 10
    Продается ПСН 633.1 м2 - Фото 11
    Продается ПСН 633.1 м2 - Фото 12
    Продается ПСН 633.1 м2 - Фото 13
    Продается ПСН 633.1 м2 - Фото 14
    Продается ПСН 633.1 м2 - Фото 15
    Продается ПСН 633.1 м2 - Фото 16
    Продается ПСН 633.1 м2 - Фото 17
    Продается ПСН 633.1 м2 - Фото 18
    Продается ПСН 633.1 м2 - Фото 19
    Продается ПСН 633.1 м2 - Фото 20
    полезная площадь 633.1м²

    Продаётся отдельно стоящее здание с отделкой в ЖК «Римский» Площадь: 633,1 кв. м Предлагается уникальный объект в современном и динамично развивающемся жилом квартале «Римский» - отдельно стоящее здание с качественной отделкой. ЖК «Римский» - это стильный...
    • 633.1 м²
    • 2/2 эт.
    158 250 000 Р
    Агент
    +7 (495) Показать номер
    Посмотреть контакты
    Помещение свободного назначения в Московская область, Домодедово ... - Фото 1
    Помещение свободного назначения в Московская область, Домодедово ... - Фото 2
    997198 . Производственно-складской комплекс класса А в индустриальном парке Долматово-2. Объект расположен на А-107, между М2 и М4. Комплекс состоит из семи рядом стоящих зданий, каждое общей площадью 1388 м2. 1 этаж. Открытая планировка + АБК. Подходит...
    • 1/1 эт.
    166 560 000 Р
    Агент
    +7 (938) Показать номер
    Посмотреть контакты
    Помещение свободного назначения в Московская область, Мытищи городской ... - Фото 1
    Помещение свободного назначения в Московская область, Мытищи городской ... - Фото 2
    985305 . Предлагаем складской комплекс формата LIGHT INDUSTRIAL роядом с Мытищами, в дер. Челобитьево. Блок F1.Преимущества:Первая линия.Развитая транспортная инфраструктура: заезд с Осташковского шоссе, 2 минуты от МКАД (2 км) по отличной новой дороге,...
    • 1/2 эт.
    167 508 000 Р
    Агент
    +7 (938) Показать номер
    Посмотреть контакты

    Не нашли подходящего объявления?

    Оставьте заявку, и наши риэлторы подберут псн в районе Подольского района

    (0)