24 400 000 Р 316 200 $ или 268 900

Информация о коттедже

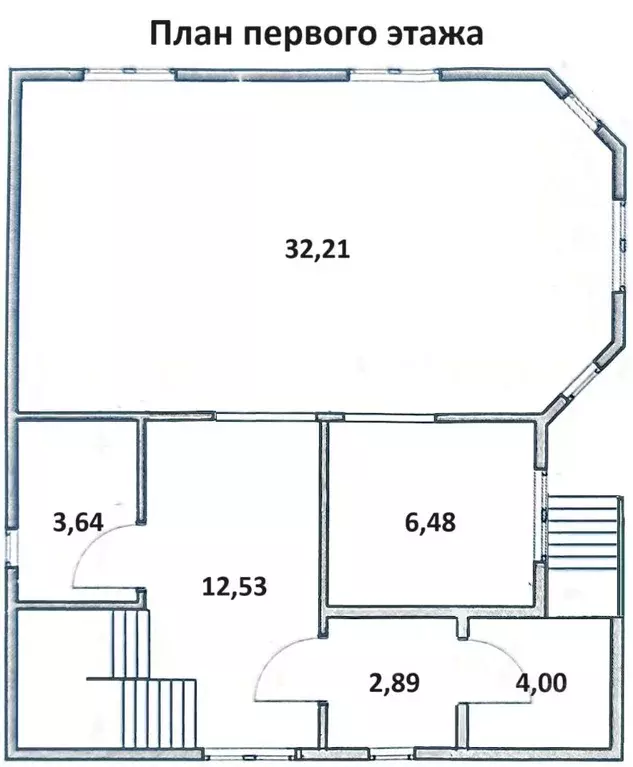
211 м2
Площадь
10 cоток
Участок

Дополнительная информация

Дом продаётся вместе с участком
есть
Развернуть
Агент
+7 (910) 474-16-88
Начать чат с агентом

Продается дом в СНТ Быково

Продам готовый для комфортного круглогодичного проживания имущественный комплекс общей площадью 211 кв.м с качественным ремонтом на земельном участке 10 соток. Всё делали для себя Комплекс включает основной деревянный каркасный жилой дом с гаражом 146 кв.м и гостевой жилой дом 65 кв.м. Дополнительно оборудован мангальный комплекс и сделаны закладные коммуникации для оборудования бани с бассейном. Выполнено ландшафтное благоустройство и озеленение территории, мощение и качественное освещение. Пять спален, четыре санузла с душевыми кабинами, три кондиционера. Устроена система умный дом, охрана и видеонаблюдение. Своя скважина с чистейшей водой, септик, электричество 30 кВт (трехфазное), все коммуникации заведены в дом. Участок сухой, весной вода не застаивается. Для ухода за территорией есть весь необходимый инвентарь. Соседи замечательные люди, приветливые и отзывчивые, все живут круглогодично. Рядом инфраструктура поселка Быково: школа, магазины, красивый дом культуры. Всего 500 метров до реки Пахра. Отличная транспортная доступность: 6 км до МЦД Остафьево, 13км до МКАД по Варшавскому шоссе. Дороги зимой чистят хорошо. Один собственник. Собственность более 5 лет. Быстрый выход на сделку. Идеальное предложение для сочетания загородной жизни и деловой суеты. Оперативный показ

Читать полностью

    Для того, чтобы купить коттедж по адресу: СНТ Быково, позвоните по телефону +7 (910) 474-16-88. Торопитесь! Объявление №50016332396 о продаже коттеджа опубликовано Сегодня.

    Позвонить Написать
    24 400 000 Р316 200 $ или 268 900
    Агент
    +7 (910) 474-16-88
    Начать чат с агентом
    Похожие предложения в Подольском районе
    Коттедж в Московская область, Подольск городской округ, Быково СНТ ... - Фото 1
    Коттедж в Московская область, Подольск городской округ, Быково СНТ ... - Фото 2
    2 этажа, общая площадь 211м², участок 10 соток

    Продам готовый для комфортного круглогодичного проживания имущественный комплекс общей площадью 211 кв.м с качественным ремонтом на земельном участке 10 соток. Всё делали для себя Комплекс включает основной деревянный каркасный жилой дом с гаражом 146...
    • 2 эт.
    • 211 м²
    • 10 сот.
    24 400 000 Р
    Агент
    +7 (924) Показать номер
    Посмотреть контакты
    Коттедж в Московская область, Подольск городской округ, д. Бородино 29 ... - Фото 1
    Коттедж в Московская область, Подольск городской округ, д. Бородино 29 ... - Фото 2
    2 этажа, общая площадь 185м², участок 8 соток

    Продаю кирпичный коттедж 185.3 м2. Земельный участок площадью 8 соток. Расположение: деревня Бородино. Удобная транспортная доступность: Симферопольское шоссе. Двухэтажный дом, без ремонта. В доме 4 комнаты.
    • 2 эт.
    • 185 м²
    • 8 сот.
    23 000 000 Р
    Агент
    +7 (985) Показать номер
    Посмотреть контакты
    Дом в Московская область, Подольск городской округ, д. Булатово, ... - Фото 1
    Дом в Московская область, Подольск городской округ, д. Булатово, ... - Фото 2
    2 этажа, общая площадь 150м², участок 6 соток

    В продаже Удобный коттедж 150 м2 на участке 6 соток для семьи с детьми. На первом этаже расположена уютная кухня-гостиная и видовыми окнами, есть кабинет (спальня). Возможно осуществить строительство большой террасы и навеса для автомобиля.Все коммуникации...
    • 2 эт.
    • 150 м²
    • 6 сот.
    24 295 000 Р
    Агент
    +7 (986) Показать номер
    Посмотреть контакты
    Дом в Московская область, Подольск городской округ, д. Докукино 35Б/2 ... - Фото 1
    Дом в Московская область, Подольск городской округ, д. Докукино 35Б/2 ... - Фото 2
    2 этажа, общая площадь 135м², участок 3 сотки

    Продаётся шикарный жилой 2-х этажный дом расположенный по адресу: Московская область, г.о. Подольск, д. Докукино. Площадь участка 303 кв.м. (ИЖС). Все коммуникации центральные. ГАЗ. Электричество 15 квт (3 фазы). Вода скважина (43 метра), за забором центральная...
    • 2 эт.
    • 135 м²
    • 3 сот.
    25 000 000 Р
    Агент
    +7 (986) Показать номер
    Посмотреть контакты
    Дом в Московская область, Подольск городской округ, д. Бородино 5 (154 ... - Фото 1
    Дом в Московская область, Подольск городской округ, д. Бородино 5 (154 ... - Фото 2
    1 этаж, общая площадь 153м², участок 5 соток

    Артикул: 540835Ваш идеальный проект для дома мечты в д. БородиноАдрес: Московская область, городской округ Подольск, деревня БородиноПрекрасный Дом 1 этажный (153,6 м) без отделки. Это ваш шанс создать интерьер своей мечты с нуля. Не нужно переделывать...
    • 1 эт.
    • 153 м²
    • 5 сот.
    23 000 000 Р
    Агент
    +7 (933) Показать номер
    Посмотреть контакты

    Не нашли подходящего объявления?

    Оставьте заявку, и наши риэлторы подберут купить дом в районе Подольского района

    (0)