126 142 500 Р 1 557 900 $ или 1 340 800

Информация об помещении

1
Этаж

Состояние и оснащение

Количество этажей
2
Развернуть
Агент
+7 (916) 957-70-06
Начать чат с агентом

Склад в Московская область, Подольск городской округ, д. Новоселки, ...

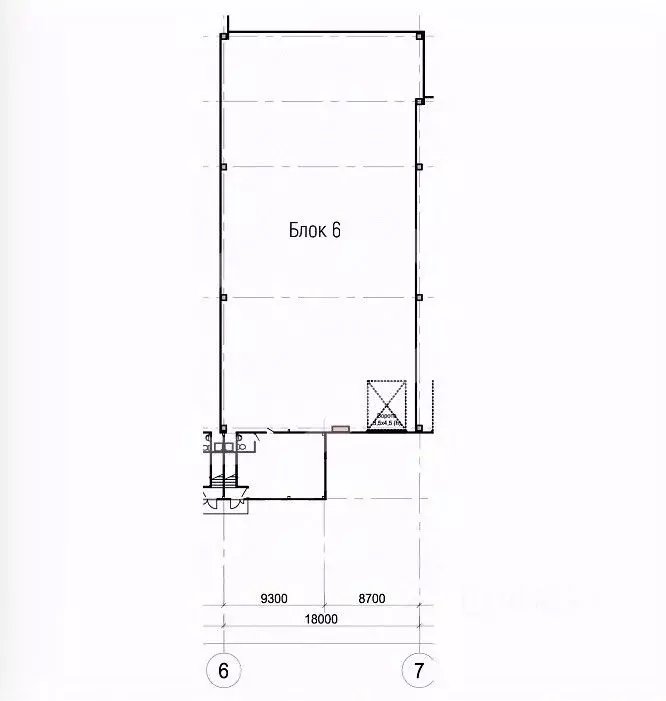
1064386 . Предлагаем склад формата Light Industrial в цифровом индустриальном парке Сынково-3 . Бокс 4, блок 6.Преимущества:На пересечении ЦКАД и Симферопольского шоссе, вблизи деревень Сынково и Новоселки. Развитая инфраструктура. Введен в эксплуатацию: 2 квартал 2024 года. Формат блоков: 70 - универсальное складское пространство, 30 - офисно - торговый блок и мезонин. Погрузочные зоны докового типа с воротами HORMANN оборудованы докшелтерами и доклевеллерами.Офисно-торговый блок: двухуровневый, с готовой отделкой в стиле ЛОФТ .Все коммуникации: вода, канализация, отопление. Электричество. Связь.Система пожаротушения - гидранты, адресная пожарная сигнализация.Возможность установки кран-балки до 5 т.Закрытая территория.Технические характеристики:Площадь блока: 764,5 кв. м., из них:производственно-складская площадь - 654 м2.офисно-административная - 110 м2.Шаг колонн: 18х12 м.Высота потолка: 8 м - до низа металлоконструкций.Ворота - доковые 1 шт.Нагрузка на пол: 5 т/м.

Читать полностью
    Позвонить Написать
    126 142 500 Р1 557 900 $ или 1 340 800
    Агент
    +7 (916) 957-70-06
    Начать чат с агентом
    Похожие предложения
    Склад в Московская область, Подольск городской округ, д. Новоселки, ... - Фото 1
    Склад в Московская область, Подольск городской округ, д. Новоселки, ... - Фото 2
    Логистико-складской комплекс ICPARK расположен в деревне Сынково Подольского района Московской области. Объект находится в 25 км от МКАД по Варшавскому шоссу, что обеспечивает удобную транспортную доступность для грузового транспорта.Налоговая: 74. Лифты:...
    • 1/1 эт.
    126 225 000 Р
    Агент
    +7 (915) Показать номер
    Посмотреть контакты
    Склад в Московская область, Подольск городской округ, д. Новоселки, ... - Фото 1
    Склад в Московская область, Подольск городской округ, д. Новоселки, ... - Фото 2
    Продажа производственно-складского помещения 764 м в ПодольскеРабочая высота 8 мНагрузка на пол: 4 т/мтип погрузки - док 1.2мГотов к эксплуатацииВАЖНО - Продажа напрямую от собственника- Без комиссииОСНОВНЫЕ ХАРАКТЕРИСТИКИ- Площадь 987 кв.м- Температура:...
    • 1/3 эт.
    126 142 500 Р
    Агент
    +7 (985) Показать номер
    Посмотреть контакты
    Склад в Московская область, Подольск городской округ, д. Новоселки, ... - Фото 1
    Склад в Московская область, Подольск городской округ, д. Новоселки, ... - Фото 2
    ID: w13621На продажу предлагается склад класса A.Московская обл, г Подольск, деревня Новоселки, тер Технопарка, д 2 к 1, 1 этаж (Юг, 28 км от МКАД).Общая площадь 764.5 м.Доки: 1Полы - бетон с антипылью. Нагрузка на пол - 4 т/мВысота потолков - 8 м.Приточно-вытяжная...
    • 1/1 эт.
    126 142 500 Р
    Агент
    +7 (915) Показать номер
    Посмотреть контакты
    Склад в Московская область, Подольск городской округ, д. Новоселки, ... - Фото 1
    Склад в Московская область, Подольск городской округ, д. Новоселки, ... - Фото 2
    ID: L11924Light IndustrialВ производственно-складском комплексе в продажу предлагаются изолированные помещения с индивидуальными входными группами. Рабочая высота - 8 м. Высококачественные бетонные полы с антипылевым покрытием.Нагрузка на пол - 4 т/м2.Ворота...
    • 1/1 эт.
    126 142 500 Р
    Агент
    +7 (915) Показать номер
    Посмотреть контакты
    Склад в Московская область, Подольск городской округ, д. Новоселки, ... - Фото 1
    Склад в Московская область, Подольск городской округ, д. Новоселки, ... - Фото 2
    Продается новое готовое к заезду производственно-складское помещение вблизи МКАД в промышленном парке INDUSTRIAL CITY Сынково. Планировочное решение включает в себя пространство для производства, склад или логистику 653,9 кв.м, а также офисную часть...
    • 1/2 эт.
    126 142 500 Р
    Агент
    +7 (986) Показать номер
    Посмотреть контакты

    Не нашли подходящего объявления?

    Оставьте заявку, и наши риэлторы подберут склад в районе

    (0)