 
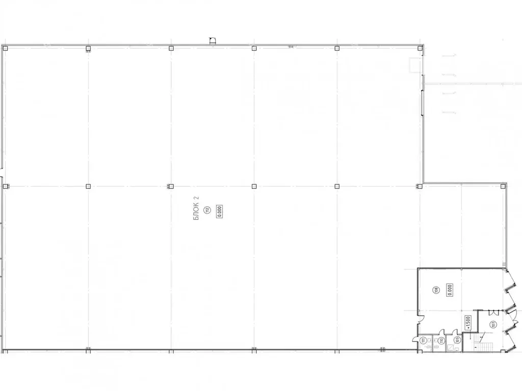
										Уникальный номер помещения. Транспортная доступность: Каширское (М-4 ДОН) ш., Симферопольское (М-2) ш.; Удаленность от МКАД: 12 км; .Строительство современных производственно-складских помещений класса В формата light industrial Удобное расположение: 8 км. до МКАД.Добавьте объявление в избранное, чтобы не упустить выгодное предложение Высота потолка 9 мРовный бетонный пол с антипылевым покрытием. Допустимая нагрузка на пол 5 т/м2ОтоплениеВсе необходимые коммуникацииПодъёмно-секционные ворота на нулевом уровнеШаг колонн 18 х 24 мОгороженная территория.Удобный заезд.Все условия для комфортной работы.Подробности по запросуПочему стоит обращаться к нам:1) Работаем с 2014 года2) Специализируемся только на индустриальной и складской недвижимости3) У нас одна из самых больших баз собственников и клиентов4) Не берём комиссию с арендаторов/покупателей. Подберем оптимальное решение под ваши задачи. Звоните прямо сейчас Технические характеристики:Площадь к продаже: 4482 м2; Коммерческие условия:Стоимость продажи: с НДС;
 
								 
											
                                                                         
											
                                                                         
											
                                                                         
											
                                                                         
											
                                                                        Оставьте заявку, и наши риэлторы подберут склад в районе Бяконтово
