6 185 550 Р 80 130 $ или 67 560

Информация об помещении

1
Этаж

Состояние и оснащение

Количество этажей
1
Развернуть
Агент
+7 (938) 656-74-88
Начать чат с агентом

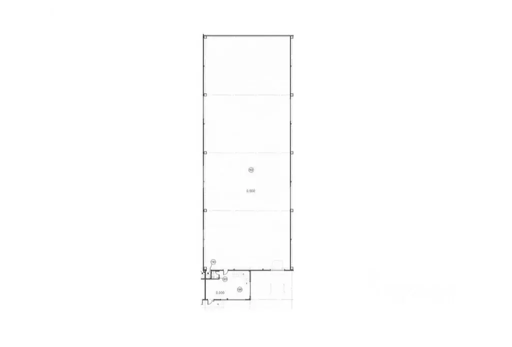
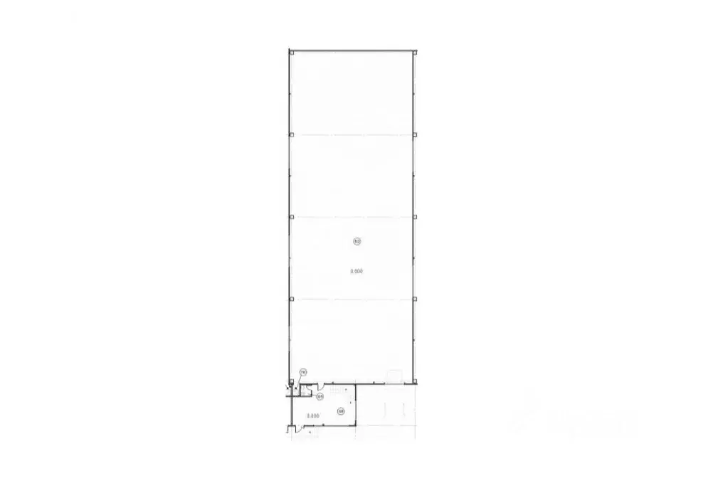
Помещение свободного назначения в Московская область, Подольск ...

992081-wf . Блок в складском комплексе класса А . Объект находится в развитом логистическом кластере. Быстрый выезд на ведущие транспортные магистрали благодаря наличию Южного обхода Подольска. 21 км до МКАД, 3,5 км до ЦКАД/А107. 2,5 км до Симферопольского шоссе (М2), 7 км до Варшавского шоссе, 2,5 км от ж/д станции Весенняя. 2009 года постройки. 1 этаж + мезонин. Открытая планировка. Покрытие пола антипыль . Коммуникации заведены: вода, тепло, канализация, современная система телекоммуникаций. Спринклерная система пожаротушения + сигнализация. Столовая для сотрудников. Профессиональная управляющая компания. Широкая разворотная площадка для фур и зона ожидания. Докшелтеры, доклевелеры. Закрытая, охраняемая территория. Парковка для легкового и грузового транспорта, пропускная система. Технические характеристики:Общая площадь: 6450 м2 (возможна адаптация помещений под запрос арендатора)Мезонин: 649 м2 (предусмотрена возможность хранения на мезонине)АБК: 332 м2Доковые ворота: 5 штВысота потолка (рабочая): 12 мШаг колонн: 12х24 мНагрузка на пол: 7 т/м2Электричество: 20 Вт/м2 (с возможностью увеличения)Целевая аудитория:Логистические операторы, 3PL, дистрибьюторы, интернет ритейл, малые и средние производственные предприятия и др.

Читать полностью
    Позвонить Написать
    6 185 550 Р80 130 $ или 67 560
    Агент
    +7 (938) 656-74-88
    Начать чат с агентом
    Похожие предложения
    Помещение свободного назначения в Московская область, Подольск ... - Фото 1
    Помещение свободного назначения в Московская область, Подольск ... - Фото 2
    992081-wfi . Блок в складском комплексе класса А . Объект находится в развитом логистическом кластере. Быстрый выезд на ведущие транспортные магистрали благодаря наличию Южного обхода Подольска. 21 км до МКАД, 3,5 км до ЦКАД/А107. 2,5 км до Симферопольского...
    • 1/1 эт.
    6 185 550 Р
    Агент
    +7 (938) Показать номер
    Посмотреть контакты
    Помещение свободного назначения в Московская область, Подольск ... - Фото 1
    Помещение свободного назначения в Московская область, Подольск ... - Фото 2
    943780-wf . Складское помещение общей площадью 3919 м2 в городском округе Подольск. Корпус D .Преимущества:Комплекс расположен на территории индустриального парка Коледино , на участке 365 га.18 км от МКАД и в 8 км от ЦКАД (центральной кольцевой автодороги).Рядом...
    • 1/2 эт.
    6 203 398 Р
    Агент
    +7 (938) Показать номер
    Посмотреть контакты
    Помещение свободного назначения в Московская область, Подольск ... - Фото 1
    Помещение свободного назначения в Московская область, Подольск ... - Фото 2
    943780-wfi . Складское помещение общей площадью 3919 м2 в городском округе Подольск. Корпус D .Преимущества:Комплекс расположен на территории индустриального парка Коледино , на участке 365 га.18 км от МКАД и в 8 км от ЦКАД (центральной кольцевой автодороги).Рядом...
    • 1/2 эт.
    6 203 398 Р
    Агент
    +7 (938) Показать номер
    Посмотреть контакты
    Помещение свободного назначения в Московская область, ... - Фото 1
    Помещение свободного назначения в Московская область, ... - Фото 2
    1119727-wf . Предлагается склад общей площадью 3 402 кв. м. в МО, городском округе Лосино-Петровский.Преимущества:25 км от МКАД, 8 км от Горьковского шоссе.Офисные помещения от 10 до 150 кв м ,оборудованные интернетом и телефонией.Подведены коммуникации...
    • 1/1 эт.
    6 123 600 Р
    Агент
    +7 (938) Показать номер
    Посмотреть контакты
    Помещение свободного назначения в Московская область, ... - Фото 1
    Помещение свободного назначения в Московская область, ... - Фото 2
    1119727-wf . Предлагается склад общей площадью 3 402 кв. м. в МО, городском округе Лосино-Петровский.Преимущества:25 км от МКАД, 8 км от Горьковского шоссе.Офисные помещения от 10 до 150 кв м ,оборудованные интернетом и телефонией.Подведены коммуникации...
    • 1/1 эт.
    6 123 600 Р
    Агент
    +7 (938) Показать номер
    Посмотреть контакты

    Не нашли подходящего объявления?

    Оставьте заявку, и наши риэлторы подберут псн в районе Подольска

    (0)