161 819 200 Р 2 000 600 $ или 1 732 800

Информация об помещении

1
Этаж

Состояние и оснащение

Количество этажей
2
Развернуть
Агент
+7 (986) 314-39-02
Начать чат с агентом

Склад в Московская область, Подольск Климовск мкр, ул. Коммунальная, ...

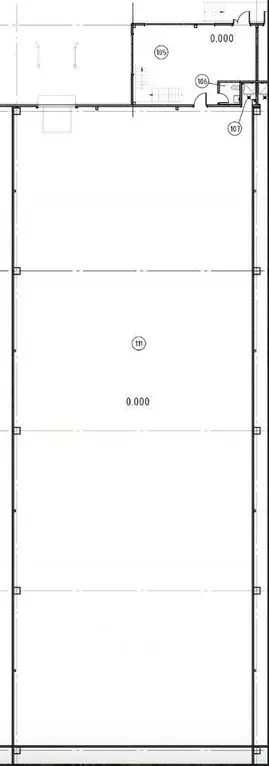
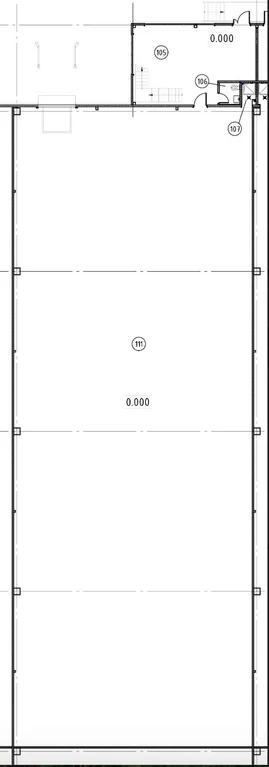
Продается новое готовое к заезду производственно-складское помещение вблизи МКАД в промышленном парке INDUSTRIAL CITY Коледино.Планировочное решение включает в себя пространство для производства, склад или логистику 901,44 кв.м, а также офисную часть 109,93 кв.м. Объект расположен в южном направлении с выездом на Симферопольское шоссе (М-2). Расстояние от МКАД — 24 км.Координаты: 55.373194, 37.575127Продажа осуществляется напрямую от собственника парка, что гарантирует отсутствие каких-либо комиссий и скрытых платежей Формат Base. Блок D, Бокс 14.ОСНОВНЫЕ ХАРАКТЕРИСТИКИ:- Класс: A- Температура: Сухой склад- Автоматическая спринклерная система пожаротушения- Высота: 8 м- Нагрузка на пол: 5 т/кв.м- Высококачественные бетонные полы с антипылевым покрытием и упрочняющим слоем- Сетка колонн: 12x24- Ворота: докового типаКОММУНИКАЦИИ:- Электричество: 25 кВт (возможно увеличение мощности)- Вентиляция: приточно-вытяжная- Водоснабжение, канализация- Индивидуальные приборы учетаИНФРАСТРУКТУРА:- Парковки для транспорта: для грузовых авто — 1 место, для легкового авто — 3 места- Доступ к производственно-складским помещениям 24/7- Охраняемая территория- Видеонаблюдение- Скоростной интернет и телефонияДОПОЛНИТЕЛЬНО:- Собственная профессиональная управляющая компания- Клининг- Консьерж-сервис- Мобильное приложение- Маркетплейс услуг- Кафе на территории- Зоны отдыха и спортивные площадкиГотовы предоставить подробную информацию и организовать просмотр

Читать полностью
    Позвонить Написать
    161 819 200 Р2 000 600 $ или 1 732 800
    Агент
    +7 (986) 314-39-02
    Начать чат с агентом
    Похожие предложения
    Готовое помещение ICPARK Коледино - Фото 1
    Готовое помещение ICPARK Коледино - Фото 2
    Готовое помещение ICPARK Коледино - Фото 3
    Готовое помещение ICPARK Коледино - Фото 4
    Готовое помещение ICPARK Коледино - Фото 5
    Готовое помещение ICPARK Коледино - Фото 6
    Готовое помещение ICPARK Коледино - Фото 7
    Готовое помещение ICPARK Коледино - Фото 8
    Готовое помещение ICPARK Коледино - Фото 9
    Готовое помещение ICPARK Коледино - Фото 10
    Готовое помещение ICPARK Коледино - Фото 11
    полезная площадь 969.1м²

    "Продается новое готовое к заезду производственно-складское помещение вблизи МКАД в промышленном парке INDUSTRIAL CITY Коледино. Планировочное решение включает в себя пространство для производства, склад или логистику 859,2 кв.м, а также офисную часть...
    • 969.1 м²
    • 1/2 эт.
    155 060 800 Р
    Агент
    +7 (495) Показать номер
    Посмотреть контакты
    Склад в Московская область, Подольск Климовск мкр, ул. Коммунальная, ... - Фото 1
    Склад в Московская область, Подольск Климовск мкр, ул. Коммунальная, ... - Фото 2
    Продается новое готовое к заезду производственно-складское помещение вблизи МКАД в промышленном парке INDUSTRIAL CITY Коледино. Планировочное решение включает в себя пространство для производства, склад или логистику 859,2 кв.м, а также офисную часть...
    • 1/2 эт.
    155 060 800 Р
    Агент
    +7 (986) Показать номер
    Посмотреть контакты
    Склад в Московская область, Подольск Климовск мкр, ул. Коммунальная, ... - Фото 1
    Склад в Московская область, Подольск Климовск мкр, ул. Коммунальная, ... - Фото 2
    ID: w13562На продажу предлагается склад класса A.Московская обл, г Подольск, деревня Коледино, тер Индустриальный парк Коледино, д 44, 1 этаж (Юг, 30 км от МКАД).Общая площадь 979.9 м.Доки: 1Полы - бетон с антипылью. Нагрузка на пол - 5 т/мВысота потолков...
    • 1/1 эт.
    156 779 200 Р
    Агент
    +7 (915) Показать номер
    Посмотреть контакты
    Склад в Московская область, Подольск Климовск мкр, ул. Коммунальная, ... - Фото 1
    Склад в Московская область, Подольск Климовск мкр, ул. Коммунальная, ... - Фото 2
    Предложение на продажу 61625.Продается помещение производственно-складского назначения общей площадью 980кв.м.. Высота потолков 8м. Нагрузка на пол 6т/кв.м.. Полы антипыль. Ворота в ноль . Ворота доковые. Все коммуникации. Интернет. Видеонаблюдение....
    • 1/2 эт.
    156 800 000 Р
    Агент
    +7 (932) Показать номер
    Посмотреть контакты
    Продажа склада, Видное, Ленинский район, ул. Донбасская - Фото 1
    Продажа склада, Видное, Ленинский район, ул. Донбасская - Фото 2
    Продажа склада, Видное, Ленинский район, ул. Донбасская - Фото 3
    общая площадь 977.8м², полезная площадь 977.8м²

    Арт. Производственно-складское помещение площадью- 977,78 м2 Производственная площадь - 872 м2 Высота потолков - 8м Полы- антипыль, нагрузка 5т/м2 Ворота доковые Офис с евроремонтом Все коммуникации- вода,свет, канализация. Парковка для грузовых и...
    • 977.8 м²
    • 1-й эт.
    156 444 800 Р
    PRO
    +7 (495) Показать номер
    Агентство
    ИП Захарова
    Посмотреть контакты

    Не нашли подходящего объявления?

    Оставьте заявку, и наши риэлторы подберут склад в районе Подольска

    (0)