270 000 000 Р 3 451 500 $ или 2 931 800

Информация об помещении

2
Этаж

Состояние и оснащение

Количество этажей
2
Развернуть
Агент
+7 (933) 943-40-43
Начать чат с агентом

Склад в Московская область, Подольск ул. Машиностроителей, 23 (3462 м)

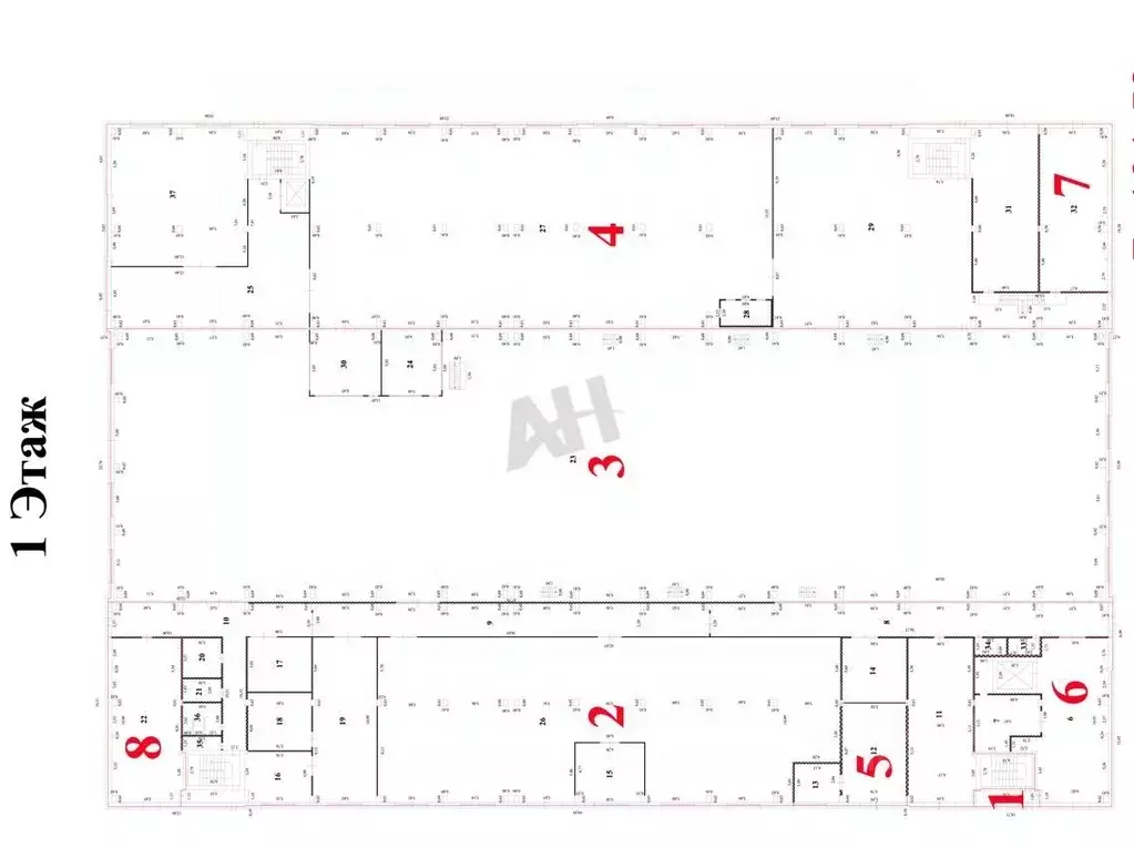
Производственно-складской комплекс 3462 масположен на земельном участке 0,5 га в собственности. Электрическая мощность 650 кВт. Центральное отопление, центральная канализация. Возможно подключение газа. Здание 1 - 2098,5 м2 из которых 1704,5 м2 - производственная часть и 394 м2 АБК. Стены - кирпич, пол - бетон, высота потолка в коньке 12,5 метров. В здании установлены 2 кран-балки грузоподъемностью 5 и 3 тонны. Здание 2 - склад ангарного типа 1363,5 м2 с высотой потолка до 8,5 метров. Между зданиями установлен козловой кран грузоподъемностью 10 тонн. Здание 2 (склад) сдан в аренду. МАП - .руб., индексация 8 в год. Здание 1 - в процессе согласования договора с арендатором, МАП - .руб. Территория охраняется. ВРИ участка: для промышленных целей. Объект расположен в 21 км от МКАД по Симферопольскому шоссе. Объект.

Читать полностью
    Позвонить Написать
    270 000 000 Р3 451 500 $ или 2 931 800
    Агент
    +7 (933) 943-40-43
    Начать чат с агентом
    Похожие предложения
    Склад в Московская область, Подольск Комсомольская ул., 1с38 (2661 м) - Фото 1
    Склад в Московская область, Подольск Комсомольская ул., 1с38 (2661 м) - Фото 2
    Продается складской комплекс, расположенный по адресу: Московская область, г. Подольск, ул. Комсомольская, д. 1, строен. 40а;40б;38а.Земельный участок 1.Кадастровый номер: 50:55:0030504:104;Категория земель: земли населенных пунктов;Виды разрешенного...
    • 1/1 эт.
    270 000 000 Р
    Агент
    +7 (985) Показать номер
    Посмотреть контакты
    Продажа склада, Долгопрудный, Новое ш. - Фото 1
    Продажа склада, Долгопрудный, Новое ш. - Фото 2
    Продажа склада, Долгопрудный, Новое ш. - Фото 3
    Продажа склада, Долгопрудный, Новое ш. - Фото 4
    Продажа склада, Долгопрудный, Новое ш. - Фото 5
    Продажа склада, Долгопрудный, Новое ш. - Фото 6
    Продажа склада, Долгопрудный, Новое ш. - Фото 7
    Продажа склада, Долгопрудный, Новое ш. - Фото 8
    Продажа склада, Долгопрудный, Новое ш. - Фото 9
    Продажа склада, Долгопрудный, Новое ш. - Фото 10
    Продажа склада, Долгопрудный, Новое ш. - Фото 11
    Продажа склада, Долгопрудный, Новое ш. - Фото 12
    Продажа склада, Долгопрудный, Новое ш. - Фото 13
    Продажа склада, Долгопрудный, Новое ш. - Фото 14
    Продажа склада, Долгопрудный, Новое ш. - Фото 15
    Продажа склада, Долгопрудный, Новое ш. - Фото 16
    Продажа склада, Долгопрудный, Новое ш. - Фото 17
    Продажа склада, Долгопрудный, Новое ш. - Фото 18
    Продажа склада, Долгопрудный, Новое ш. - Фото 19
    общая площадь 1450м², полезная площадь 1450м²

    Арт. Продается производственно-складское здание общей площадью 1450 кв.м на земельном участке площадью 0,6 Га в г. Долгопрудном. В здании возможна организация склада и\или производства (ВРИ для здания по проекту: Склад - 6.9, Производственная деятельность...
    • 1 450 м²
    • 1-й эт.
    260 000 000 Р
    +7 (495) Показать номер
    Агентство
    ИП Захарова
    Посмотреть контакты
    Продажа склада, Пушкинский район - Фото 1
    Продажа склада, Пушкинский район - Фото 2
    Продажа склада, Пушкинский район - Фото 3
    Продажа склада, Пушкинский район - Фото 4
    Продажа склада, Пушкинский район - Фото 5
    Продажа склада, Пушкинский район - Фото 6
    Продажа склада, Пушкинский район - Фото 7
    Продажа склада, Пушкинский район - Фото 8
    Продажа склада, Пушкинский район - Фото 9
    Продажа склада, Пушкинский район - Фото 10
    Продажа склада, Пушкинский район - Фото 11
    Продажа склада, Пушкинский район - Фото 12
    Продажа склада, Пушкинский район - Фото 13
    Продажа склада, Пушкинский район - Фото 14
    общая площадь 3095.3м², полезная площадь 3095.3м²

    Арт. Продается производственно- складское здание. Здание производственно - складского назначения общей площадью 3095.28 кв.м., расположенное в новом современном комплексе - технопарке. Здание класса В+. Здания комплекса выполнены в формате «Light industrial»...
    • 3 095.3 м²
    • 1-й эт.
    278 575 200 Р
    +7 (495) Показать номер
    Агентство
    ИП Захарова
    Посмотреть контакты
    Склад в Московская область, Кубинка Школьная ул. (3700 м) - Фото 1
    Склад в Московская область, Кубинка Школьная ул. (3700 м) - Фото 2
    ID: w8406Предлагаем на продажу имущественный комплекс класса B, площадью 3700 кв.м. , 42 км от МКАД.Здание 1352 кв м теплое здание, кран-балка на 3 т (108 кв м на антресоли офисное помещение), к нему есть холодная пристройка 560 кв м, кран-балка на 2...
    • 1/1 эт.
    270 000 000 Р
    Агент
    +7 (916) Показать номер
    Посмотреть контакты
    Склад в Московская область, Дмитровский муниципальный округ, д. ... - Фото 1
    Склад в Московская область, Дмитровский муниципальный округ, д. ... - Фото 2
    1090261 . Предлагается производственно-складское помещение класса А общей площадью 1494 кв. м в производственно-складском комплексе в промышленном парке ГИП КЛЮЧ.Преимущества:15 км от МКАД.На первой линии Ленинградского шоссе, за METRO и Аутлетом.Вечерняя...
    • 1/1 эт.
    279 000 000 Р
    Агент
    +7 (938) Показать номер
    Посмотреть контакты

    Не нашли подходящего объявления?

    Оставьте заявку, и наши риэлторы подберут склад в районе Подольска

    (0)