54 000 000 Р 704 600 $ или 596 100

Информация об помещении

1
Этаж

Состояние и оснащение

Количество этажей
1
Развернуть
Агент
+7 (938) 656-74-88
Начать чат с агентом

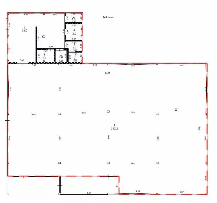
Помещение свободного назначения в Московская область, Подольск проезд ...

885622-gab . Предлагаем отдельно стоящее здание с сетевым арендатором Верный , площадью 430.8 кв. м. Без комиссии для покупателя.Преимущества объекта:-первая линия проезда Некрасова;-9 минут на автомобиле от станции МЦД Подольск и Силикатная ;-удобная транспортная доступность: 100 м до проспекта Ленина, 6 км до Домодедовского и Варшавского шоссе;-плотный жилой массив;-развитая инфраструктура района;-высокий автомобильный и пешеходный трафик;-отлично просматривается, находится в легком доступе для потенциальных клиентов;-гибкая планировка, позволяющая адаптировать пространство под различные нужды;-все коммуникации центральные;-возможность размещения вывески;-зона разгрузки/погрузки;-наземная парковка;-рядом остановка общественного транспорта;-ЗУ в собственности.Технические параметры объекта:-отдельный вход с улицы.-этажность: 1 этаж.-электрическая мощность: 150 кВт.-высота потолков: 3.2 м.Информация об арендаторе:-арендатор: Верный. Алкогольная лицензия получена.-прибыль:уб/мес.Свяжитесь с нами для получения дополнительной информации

Читать полностью
    Позвонить Написать
    54 000 000 Р704 600 $ или 596 100
    Агент
    +7 (938) 656-74-88
    Начать чат с агентом
    Похожие предложения
    Помещение свободного назначения в Московская область, Подольск проезд ... - Фото 1
    Помещение свободного назначения в Московская область, Подольск проезд ... - Фото 2
    885622-gab . Предлагаем отдельно стоящее здание с сетевым арендатором Верный , площадью 430.8 кв. м. Без комиссии для покупателя.Преимущества объекта:-первая линия проезда Некрасова;-9 минут на автомобиле от станции МЦД Подольск и Силикатная ;-удобная...
    • 1/1 эт.
    54 000 000 Р
    Агент
    +7 (938) Показать номер
    Посмотреть контакты
    Помещение свободного назначения в Московская область, Подольск проезд ... - Фото 1
    Помещение свободного назначения в Московская область, Подольск проезд ... - Фото 2
    885622-gab . Предлагаем отдельно стоящее здание с сетевым арендатором Верный , площадью 430.8 кв. м. Без комиссии для покупателя.Преимущества объекта:-первая линия проезда Некрасова;-9 минут на автомобиле от станции МЦД Подольск и Силикатная ;-удобная...
    • 1/1 эт.
    54 000 000 Р
    Агент
    +7 (938) Показать номер
    Посмотреть контакты
    Помещение свободного назначения в Московская область, Подольск ул. ... - Фото 1
    Помещение свободного назначения в Московская область, Подольск ул. ... - Фото 2
    АУКЦИОН. Объект реализуется через электронный аукцион споИмущество реализуется путем проведения торгов в форме аукциона в соответствии с Федеральным законом О несостоятельности (банкротстве) от 26.10.ФЗ. Здание, расположенное по адресу: Московская...
    • 1/3 эт.
    53 576 712 Р
    Агент
    +7 (916) Показать номер
    Посмотреть контакты
    Помещение свободного назначения в Московская область, Раменский ... - Фото 1
    Помещение свободного назначения в Московская область, Раменский ... - Фото 2
    974938-wf . Производственно-складской комплекс формата Light Industrial в д. Кулаково, Раменский р-н МО, вторая очередь. Первая линяя Новорязанского шоссе, отдельный съезд. Так как корректный адрес отсутствует на Яндекс.Карте, введен ориентировочный....
    • 1/1 эт.
    54 780 000 Р
    Агент
    +7 (938) Показать номер
    Посмотреть контакты
    Помещение свободного назначения в Московская область, Королев ... - Фото 1
    Помещение свободного назначения в Московская область, Королев ... - Фото 2
    1079105-wf . Предлагается блок общей площадью 355 кв. м. в современном проекте формата light industrial в г. Королёве.Преимущества:Расположен в центральной части города Королёва, рядом с жилыми кварталами и ТЦ Globus.Заезд с Калининградской улицы.Развитая...
    • 1/2 эт.
    53 250 000 Р
    Агент
    +7 (938) Показать номер
    Посмотреть контакты

    Не нашли подходящего объявления?

    Оставьте заявку, и наши риэлторы подберут псн в районе Подольска

    (0)