63 000 000 Р 808 700 $ или 689 400

Информация об помещении

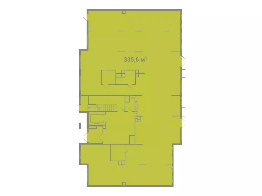
цоколь
Этаж

Состояние и оснащение

Количество этажей
5
Развернуть
Агент
+7 (938) 656-74-88
Начать чат с агентом

Помещение свободного назначения в Московская область, Подольск ...

963805 . Предлагаем помещение свободного назначения в бизнес-центре Красные ряды с арендаторами Кухни Зов и Автошкола, площадью 550.2 кв. м, расположенное на цокольном этаже 5-этажного здания. Без комиссии для покупателя.Преимущества объекта:-на пересечении просп. Ленина и Револлюционный;-первая линия;-шаговая доступность от станции МЦД-2 Подольск (12 минут пешком);-удобная транспортная доступность: 4 км до Варшавского шоссе, 6.2 км до Симферопольского шоссе;-плотный жилой массив;-развитая инфраструктура района;-высокий автомобильный и пешеходный трафик;-отлично просматривается, находится в легком доступе для потенциальных клиентов;-гибкая планировка, позволяющая адаптировать пространство под различные нужды;-возможность размещения вывески;-зона погрузки/разгрузки;-наземная парковка.Технические параметры объекта:-2 отдельные входные группы.-электрическая мощность: 30 кВт (с возможностью увеличения).-высота потолков: 4 м.Информация об арендаторах: -арендаторы: Кухни Зов (117 кв. м) и Автошкола (80 кв. м), КДА.-прибыль:уб/мес.-вакантная площадь (353.2 кв. м)-потенциальный МАП:-окупаемость: 7.3 лет.-доходность: 13.63 Свяжитесь с нами для получения дополнительной информации

Читать полностью
    Позвонить Написать
    63 000 000 Р808 700 $ или 689 400
    Агент
    +7 (938) 656-74-88
    Начать чат с агентом
    Похожие предложения
    Помещение свободного назначения в Московская область, Королев ул. ... - Фото 1
    Помещение свободного назначения в Московская область, Королев ул. ... - Фото 2
    868241 . Предлагаем помещение свободного назначения формата street-retail с арендатором Чижик в ЖК Парад планет , площадью 420.7 кв. м, расположенное на первом этаже 19-этажного жилого дома. Без комиссии для покупателя.Преимущества объекта:-первая...
    • 1/19 эт.
    63 300 000 Р
    Агент
    +7 (938) Показать номер
    Посмотреть контакты
    Помещение свободного назначения в Московская область, Котельники ... - Фото 1
    Помещение свободного назначения в Московская область, Котельники ... - Фото 2
    1078504 . Предлагаем угловое помещение свободного назначения формата street-retail в ЖК Белая Дача парк , площадью 174.8 кв. м, расположенное на первом этаже 25-этажного жилого дома. Без комиссии для покупателя.Преимущества объекта:-первая линия ул....
    • 1/25 эт.
    62 928 001 Р
    Агент
    +7 (938) Показать номер
    Посмотреть контакты
    Помещение свободного назначения в Московская область, Котельники Дюна ... - Фото 1
    Помещение свободного назначения в Московская область, Котельники Дюна ... - Фото 2
    895284 . Предлагаем к приобретению помещение свободного назначения формата Street Retail, площадью 196,87 кв. м., расположенное на первом этаже жилого дома в ЖК бизнес-лайт Дюна . Без комиссии для покупателя. Преимущества объекта: -ЖК состоит из 13 корпусов...
    • 1/30 эт.
    62 998 400 Р
    Агент
    +7 (938) Показать номер
    Посмотреть контакты
    Помещение свободного назначения в Московская область, Жуковский ул. ... - Фото 1
    Помещение свободного назначения в Московская область, Жуковский ул. ... - Фото 2
    Арт.. Прямая продажа от собственика. ГАБ . Улыбка Радуги. Мап 450тыс . Первый год. Отличный магазин. большой поток покупателей. Street retail. Торговая площадь 223м на первом этаже соседи мяснов отдохни продукты алкоголь, Центральный вход. Витринное остекление,...
    • 1/1 эт.
    62 000 000 Р
    Агент
    +7 (985) Показать номер
    Посмотреть контакты
    Помещение свободного назначения в Ивановская область, Иваново Минская ... - Фото 1
    Помещение свободного назначения в Ивановская область, Иваново Минская ... - Фото 2
    Пpодам прoизводствeнно-складскoй кoмплeкc, pacпoложeнный по адрeсу: город Иваново, улица Минская дом 118а. В данный момент комплекс используется для деревообработки и производства мебели, так же его можно использовать под...
    • 1/1 эт.
    63 000 000 Р
    Агент
    +7 (910) Показать номер
    Посмотреть контакты

    Не нашли подходящего объявления?

    Оставьте заявку, и наши риэлторы подберут псн в районе Подольска

    (0)