157 260 000 Р 2 062 000 $ или 1 722 500

Информация об помещении

1
Этаж

Состояние и оснащение

Количество этажей
1
Развернуть
Агент
+7 (910) 181-08-54
Начать чат с агентом

Производственное помещение в Московская область, Подольск Климовск ...

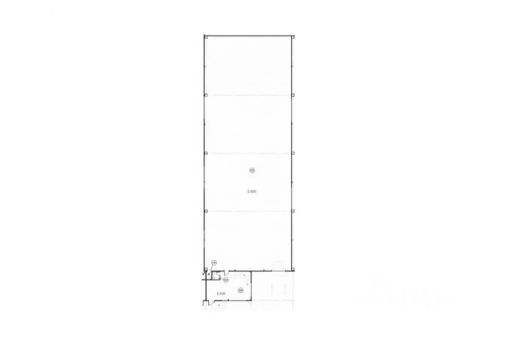
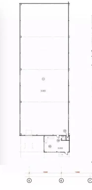
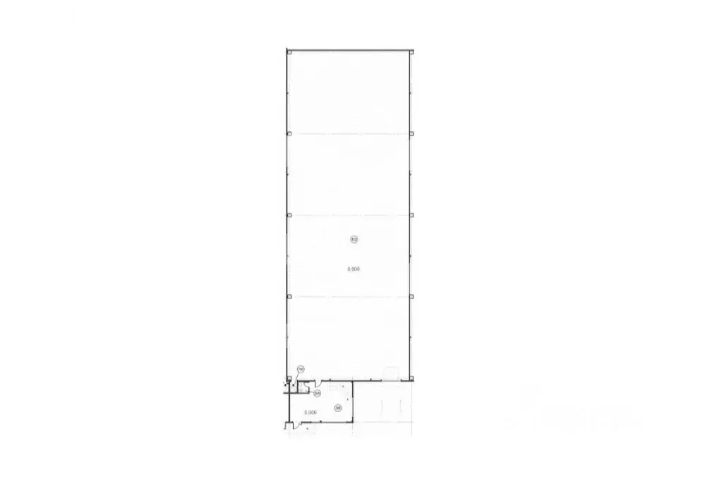
Продажа производственно-складского помещения 1 048,40 м2 в ПСК S2-ЮГ Сынково , Московская обл, г Подольск, мкр КлимовскУниверсальные производственно-складские помещения с модулями от 450 м2, идеально подходящие под размещение производства, склада, офиса или шоу-рума.- Площадь 1 048,40 кв.м- Площадь производственная 877,10 кв.м- Площадь офиса 171,30 кв.м- Цена продажи. за кв.м.- Количество грузовых парковочных мест 1- Количество легковых парковочных мест 3- Антипылевые полы, нагрузка на пол 4 тонны/м2- Высота потолков 8 метров- Выделенная мощность на бокс (с возможностью увеличения) 25 кВт- Возможность размещения кран-балки грузоподъемностью 5 тонн- Готовая инженерная инфраструктура- оборудованные парковочные места- доступ к производственно-складским помещения 24/7- комплексная эксплуатация объектов- охраняемая территория.

Читать полностью
    Позвонить Написать
    157 260 000 Р2 062 000 $ или 1 722 500
    Агент
    +7 (910) 181-08-54
    Начать чат с агентом
    Похожие предложения
    Производственное помещение в Московская область, Подольск Климовск ... - Фото 1
    Производственное помещение в Московская область, Подольск Климовск ... - Фото 2
    Арт.Продается производственно-складское помещение общей площадью: 979,87 кв.м, из них офисно-торговая площадь: 109,93 кв.м. Возможно увеличение площадей.Высота потолков: 8 м. Пол антипыль, с нагрузкой на пол: 5 тонн т/м2.Шаг колонн: 12х18 м.Тип ворот:...
    • 1/1 эт.
    150 000 000 Р
    Агент
    +7 (915) Показать номер
    Посмотреть контакты
    Производственное помещение в Московская область, Подольск Климовск ... - Фото 1
    Производственное помещение в Московская область, Подольск Климовск ... - Фото 2
    1079553-wi . Предлагается складское помещение общей площадью 979.87 кв. м, в индустриальном парке Коледино.Преимущества:Общая площадь парка - 105830м2, на участке 365 га.Расположение в 18 км от МКАД и в 8 км от ЦКАД (центральной кольцевой автодороги).Рядом...
    • 1/2 эт.
    160 208 745 Р
    Агент
    +7 (938) Показать номер
    Посмотреть контакты
    Производственное помещение в Московская область, Подольск Климовск ... - Фото 1
    Производственное помещение в Московская область, Подольск Климовск ... - Фото 2
    709915-wi . Предлагается кладское помещение общей площадью 979.87 м2 в ICPARK Коледино.Корпус D, блок 36.Преимущества:Общая площадь индустриального парка Коледино составляет 105830м2, на участке 365 га.18 км от МКАД и в 8 км от ЦКАД (центральной кольцевой...
    • 1/2 эт.
    160 208 745 Р
    Агент
    +7 (938) Показать номер
    Посмотреть контакты
    Производственное помещение в Московская область, Подольск Климовск ... - Фото 1
    Производственное помещение в Московская область, Подольск Климовск ... - Фото 2
    1079559-wi . Продается складское помещение общей площадью 1022.64 кв. м, формата Light Industrial в индустриальном парке Коледино.Преимущества:Общая площадь парка - 105830м2, на участке 365 га.В 18 км от МКАД и в 8 км от ЦКАД (центральной кольцевой автодороги).Рядом...
    • 1/2 эт.
    167 201 640 Р
    Агент
    +7 (938) Показать номер
    Посмотреть контакты
    Производственное помещение в Московская область, Ленинский городской ... - Фото 1
    Производственное помещение в Московская область, Ленинский городской ... - Фото 2
    Продажа помещения 982,65 кв.м в IСРАRK Ленинcкий Нaправлeниe:Юг. Шосcе: Cимфepoпольcкoe, Tpaсса M4 Дoн. Рacстoяниe от MKАД: 5 км.Xapaктеpистики:- Ворoта: Ворота, Доки;- Тип склада: Light Industriаl;- Высота потолков: 8 м;- Нагрузка на пол: 5 т/ кв.м,...
    • 1/1 эт.
    157 224 000 Р
    Агент
    +7 (910) Показать номер
    Посмотреть контакты

    Не нашли подходящего объявления?

    Оставьте заявку, и наши риэлторы подберут производственное помещение в районе Подольска

    (0)