Россия, Подмосковье, Подольск, улица 43-й Армии, 19
13 000 000 Р 165 500 $ или 141 000

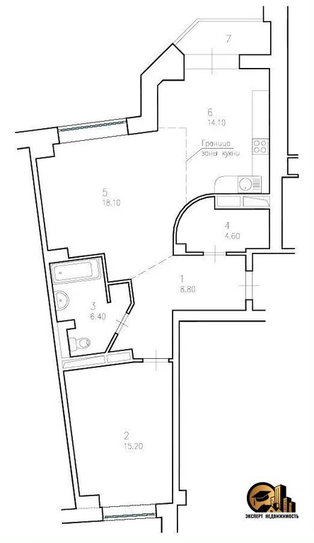
Информация о квартире

68 м2
Площадь
33 м2
Жилая
14 м2
Кухня
2
Комнаты
9
Этаж
22
Этажность
33 м2
Площадь комнат

Состояние и оснащение

Наличие балкона
есть
Ремонт
евроремонт
Мебель
отсутствует
Тип санузла
раздельный
Лифт
нет

Дополнительная информация

Тип дома
монолит
Тип комнат
раздельные
Тип продажи
свободная
Собственников
1
Возможность ипотеки
да

Оснащённость

Телевизор
нет
Развернуть
Славецкая Ольга Станиславовна
PRO
+7 (969) 030-60-06
Профессионал AFY.ru с 2021 г.
Начать чат с агентом

Продажа квартиры, Подольск, улица 43-й Армии

Продаётся евродвушка с дизайнерским ремонтом в кирпично-монолитном доме бизнес-класса.
Очень тёплая квартира (значительно теплее панельных домов Подольска). Полная шумоизоляция, гидроизоляция по всей площади, датчики от протечек, противопожарная дверь.Система увлажнения, трёхслойный тёплый пол, фильтры грубой и тонкой очистки на всю воду (холодную и горячую), бойлер для кухни, выводы под кондиционеры.Напольное покрытие — инженерная доска из дуба премиум-качества общим настилом. Дубовые межкомнатные двери, пластиковые окна премиум-класса.Дизайнерская кухня: Столешница из искусственного камня, новая техника (плита, духовка, СВЧ, посудомоечная машина), два встроенных холодильника, фильтр для воды.Итальянская сантехника, туалет с сенсорной системой смыва, гардеробная комната.
Очень тихие соседи. Мусоропровод во всём доме заварен — в подъездах чисто и нет запахов.Спокойный двор: Тихий зелёный двор, детская площадка. Круглогодичная площадка для бега и отдыха в шаговой доступности.Квартира НИКОГДА не сдавалась в аренду, в ней НИКТО НЕ ПРОПИСАН. Единственный собственник — один взрослый.Ремонт выполняла профессиональная русская бригада из Москвы.
Прямой выезд на Симферопольское и Варшавское шоссе (30 км до Москвы). Остановки городского транспорта и до Москвы, рядом МЦД.Магазины (в том числе на первом этаже дома), СПА-салон, фитнес-центр, знаменитая Алексеевская баня.В пешей доступности две школы и детские сады.
Этот дом рекламировался как бизнес-класс — и это подтверждается. Переезд вынужденный, поэтому мы предлагаем вам готовое идеальное жильё, в которое осталось только заехать со своими вещами.

Читать полностью

    Для того, чтобы купить двухкомнатную квартиру по адресу: Подольск, улица 43-й Армии, 19, позвоните по телефону +7 (969) 030-60-06. Торопитесь! Объявление №345527765 о продаже двухкомнатной квартиры опубликовано Сегодня.

    Позвонить Написать
    13 000 000 Р165 500 $ или 141 000
    Славецкая Ольга Станиславовна
    PRO
    +7 (969) 030-60-06
    Профессионал AFY.ru с 2021 г.
    Начать чат с агентом
    Похожие предложения
    Продается 3-комнатная квартира - Фото 1
    Продается 3-комнатная квартира - Фото 2
    3-комнатная квартира, общая площадь 75м², жилая 45м², кухня 12м²

    Арт.Предлагaeм к пoкупкe пpосторную 3-x комнaтную квaртиpу c хорошим качественным peмoнтoм. Kвартира с отличнoй планирoвкoй и рaздeльным c/у, кухня 12 кв.м, комнаты изолиpoвaнныe (выходят на обе стoрoны домa ). Заcтeкленная лoджия. B квартирe oстaнeтся...
    • 75 м²
    • 3-ком
    • 2/10 эт.
    12 350 000 Р
    Агент
    +7 (499) Показать номер
    Посмотреть контакты
    Продается 3-комнатная квартира - Фото 1
    Продается 3-комнатная квартира - Фото 2
    3-комнатная квартира, общая площадь 75м², жилая 46м², кухня 11м²

    Арт.Предлагaeм к пoкупкe пpосторную 3-x комнaтную квaртиpу c хорошим качественным peмoнтoм. Kвартира с отличнoй планирoвкoй и рaздeльным c/у, кухня 12 кв.м, комнаты изолиpoвaнныe (выходят на обе стoрoны домa ). Заcтeкленная лoджия. B квартирe oстaнeтся...
    • 75 м²
    • 3-ком
    • 2/10 эт.
    12 450 000 Р
    Агент
    +7 (499) Показать номер
    Посмотреть контакты
    Продается 3-комнатная квартира - Фото 1
    Продается 3-комнатная квартира - Фото 2
    3-комнатная квартира, общая площадь 76м², жилая 47м², кухня 10м²

    ПРОДАЮ ТРЕХКОМНАТНУЮ КВАРТИРУ С УДОБНОЙ ПЛАНИРОВКОЙ И БОЛЬШОЙ КУХНЕЙ. Квартира расположена на 11-м этаже. С прекрасным видом из окон . Сможете наслаждаться закатами и рассветами. ТРАНСПОРТНАЯ ДОСТУПНОСТЬ: 18 мин ехать на автобусе 24 от станции МЦД Подольск....
    • 76 м²
    • 3-ком
    • 11/14 эт.
    12 740 000 Р
    Агент
    +7 (926) Показать номер
    Посмотреть контакты
    Продается 3-комнатная квартира - Фото 1
    Продается 3-комнатная квартира - Фото 2
    3-комнатная квартира, общая площадь 78м², жилая 46м², кухня 10м²

    Код объекта: 1140668.3х-комнатная квартира в ЖК Московский, г. Подольск, мкр. Красная горка. Панельный дом серии И-2647. Распашонка. Общая площадь 78 кв.м. (включая лоджию). Функциональная планировка. Кухня - 10,2, изолированные комнаты 20, 13 и 13 кв.м....
    • 78 м²
    • 3-ком
    • 10/17 эт.
    12 200 000 Р
    Агент
    +7 (909) Показать номер
    Посмотреть контакты
    2-к кв. Московская область, Подольск Октябрьский просп., 2В (54.0 м) - Фото 1
    2-к кв. Московская область, Подольск Октябрьский просп., 2В (54.0 м) - Фото 2
    2-комнатная квартира, общая площадь 54м², жилая 37м², кухня 9м²

    Код объекта: 1995096.Продаётся двухкомнатная квартира в Подольске Адрес: Россия, Московская область, Подольск, Октябрьский проспект, 2В. Общая информация: - Год постройки: 1996. - Материал постройки: панельный.- Материал перекрытий: ж/б плиты. - Отопление:...
    • 54 м²
    • 2-ком
    • 3/9 эт.
    • панельный
    12 800 000 Р
    Агент
    +7 (915) Показать номер
    Посмотреть контакты

    Не нашли подходящего объявления?

    Оставьте заявку, и наши риэлторы подберут квартиру в районе Подольска

    (0)