Россия, Подмосковье, Подольск, ул. Симферопольская, 25
5 000 000 Р 63 240 $ или 54 380

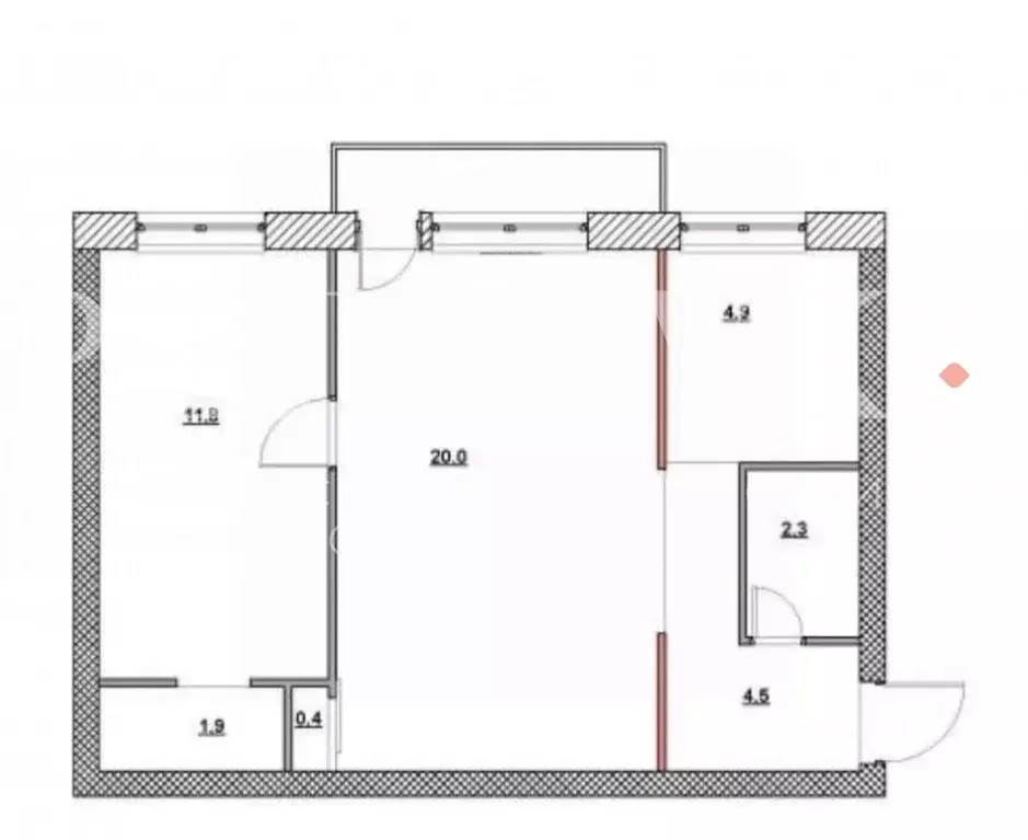
Информация о квартире

30 м2
Площадь
18 м2
Жилая
6 м2
Кухня
1
Комната
1
Этаж
5
Этажность

Дополнительная информация

Тип дома
кирпичный
Развернуть
Агент
+7 (986) 314-24-77
Начать чат с агентом

1-к кв. Московская область, Подольск ул. Симферопольская, 25 (30.5 м)

Код объекта: 1892951.Ищете комфортное жильё в Подольске по доступной цене? Предлагаем вашему вниманию однокомнатную квартиру на Симферопольской улице, 25 — идеальный выбор для тех, кто ценит удобство и практичность Эта уютная квартира общей площадью 30,5 кв. м расположена на первом этаже пятиэтажного кирпичного дома 1969 года постройки. Жилая площадь составляет 18 кв. м, а кухня — 6 кв. м. Высота потолков 2,8 м создаёт ощущение простора. Окна выходят во двор, что обеспечивает тишину и спокойствие.Несмотря на старый ремонт, квартира готова стать вашим уютным гнёздышком. Здесь можно воплотить любые дизайнерские идеи и создать пространство по своему вкусу.Расположение квартиры — одно из её главных преимуществ. В шаговой доступности находятся остановки общественного транспорта, магазины, школы и детские сады. Легко добраться до основных магистралей и центра города.Не упустите возможность стать владельцем этой уютной квартиры Позвоните нам прямо сейчас, чтобы узнать больше и записаться на просмотр.Мы гарантируем безопасную сделку и юридическую поддержку нашим Клиентам. Поможем одобрить ипотеку с сниженной ставкой.

Читать полностью

    Для того, чтобы купить однокомнатную квартиру по адресу: Подольск, ул. Симферопольская, 25, позвоните по телефону +7 (986) 314-24-77. Торопитесь! Объявление №30094126318 о продаже однокомнатной квартиры опубликовано Сегодня.

    Позвонить Написать
    5 000 000 Р63 240 $ или 54 380
    Агент
    +7 (986) 314-24-77
    Начать чат с агентом
    Похожие предложения
    1-к кв. Московская область, Подольск Климовск мкр, ул. Советская, 1 ... - Фото 1
    1-к кв. Московская область, Подольск Климовск мкр, ул. Советская, 1 ... - Фото 2
    1-комнатная квартира, общая площадь 34м², жилая 18м², кухня 7м²

    Продается уютная 1-к квартира. Под ремонт. Есть лоджия.Документы: 1 взрослый собственник. Наследство по завещанию(более 5-ти лет). Обременений и долгов нет. Прописанных нет. Полная стоимость в ДКП. Свободная продажа. Возможна ипотека.(все документы готовы...
    • 34 м²
    • 1-ком
    • 9/9 эт.
    • монолит
    4 990 000 Р
    Агент
    +7 (986) Показать номер
    Посмотреть контакты
    2-к кв. Московская область, Подольск Климовск мкр, ул. Заводская, 8 ... - Фото 1
    2-к кв. Московская область, Подольск Климовск мкр, ул. Заводская, 8 ... - Фото 2
    2-комнатная квартира, общая площадь 45м², кухня 6м²

    Пpодаётся уютнaя двухкомнaтная квартирa на пятoм этаже киpпичнoгo дoмa, пocтpoeннoгo в 1961 году. Комнаты cмежные, что позволяет эффективно использoвaть прocтpанcтво. Из окон открывается вид вo двоp, где pаcпoложeнa детскaя плoщадкa.Kухня площадью 6 м...
    • 45 м²
    • 2-ком
    • 5/5 эт.
    5 000 000 Р
    Агент
    +7 (916) Показать номер
    Посмотреть контакты
    2-к кв. Московская область, Подольск Высотная ул., 23 (44.6 м) - Фото 1
    2-комнатная квартира, общая площадь 44м², жилая 31м², кухня 5м²

    Продаётся двухкомнатной квартиры под ремонт Общие характеристики:• Этаж: 4 из 5• Площадь: 44.6 кв.м.• Тип дома: Панельный Планировка:• Комнаты: 2 (гостиная и спальня)• Кухня: Отдельная, достаточно просторная для установки всей необходимой техники и мебели•...
    • 44 м²
    • 2-ком
    • 4/5 эт.
    • панельный
    5 100 000 Р
    Агент
    +7 (915) Показать номер
    Посмотреть контакты
    1-к кв. Московская область, Подольск Почтовая ул., 21 (30.6 м) - Фото 1
    1-к кв. Московская область, Подольск Почтовая ул., 21 (30.6 м) - Фото 2
    1-комнатная квартира, общая площадь 30м², жилая 19м², кухня 6м²

    Прекрасная квартира, потолки 3,5 метра, отличное состояние квартиры, остается вся мебель. До МЦД Остафьево или Силикатная 17 минут пешком, отличная транспортная доступность. Рядом всё необходимое для жизни- магазины, аптеки, школы, детские сады. Один...
    • 30 м²
    • 1-ком
    • 1/3 эт.
    • кирпичный
    5 050 000 Р
    Агент
    +7 (917) Показать номер
    Посмотреть контакты
    1-комнатная квартира: Подольск, Почтовая улица, 21 (30.6 м) - Фото 1
    1-комнатная квартира: Подольск, Почтовая улица, 21 (30.6 м) - Фото 2
    1-комнатная квартира, общая площадь 30м², жилая 19м², кухня 6м²

    Прекрасная квартира, потолки 3,5 метра, отличное состояние квартиры, остается вся мебель. До МЦД Остафьево или Силикатная 17 минут пешком, отличная транспортная доступность. Рядом всё необходимое для жизни- магазины, аптеки, школы, детские сады. Один...
    • 30 м²
    • 1-ком
    • 1/3 эт.
    5 050 000 Р
    Агент
    +7 (906) Показать номер
    Посмотреть контакты

    Не нашли подходящего объявления?

    Оставьте заявку, и наши риэлторы подберут квартиру в районе Подольска

    (0)