Россия, Подмосковье, Подольск, Пролетарская улица, 1
5 900 000 Р 72 500 $ или 62 920

Информация о квартире

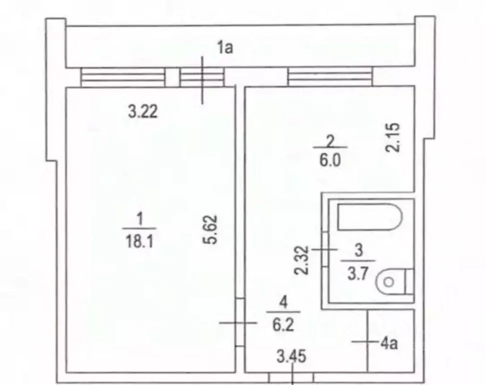
45 м2
Площадь
5 м2
Кухня
2
Комнаты
1
Этаж
5
Этажность
Развернуть
Агент
+7 (927) 502-14-20
Начать чат с агентом

Квартира, 2 комнаты, 45.5 м

Двухкомнатная квартира в развитом микрорайоне Подольска предлагает готовое решение для комфортной жизни без дополнительных вложений. Объект с выполненным косметическим ремонтом находится в отличном жилом состоянии и полностью подготовлен к заселению. Планировка отличается практичностью: изолированные комнаты обеспечивают приватность, а раздельный санузел повышает удобство для жильцов. Просторный балкон с выходом из комнат служит дополнительным бонусом, расширяя жилое пространство. Инфраструктура микрорайона полностью сформирована — в шаговой доступности расположены продовольственные и хозяйственные магазины, аптеки и детский сад, что делает повседневную жизнь максимально удобной. Квартира может быть передана с мебелью по договоренности. В настоящее время объект сдается, однако возможен оперативный просмотр в удобное время для потенциальных покупателей или арендаторов. Спокойная атмосфера и доброжелательные соседи дополняют преимущества этого предложения. Код пользователя: 189468Номер в базе:

Читать полностью

    Для того, чтобы купить двухкомнатную квартиру по адресу: Подольск, Пролетарская улица, 1, позвоните по телефону +7 (927) 502-14-20. Торопитесь! Объявление №30091475821 о продаже двухкомнатной квартиры опубликовано 30 октября 2025.

    Позвонить Написать
    5 900 000 Р72 500 $ или 62 920
    Агент
    +7 (927) 502-14-20
    Начать чат с агентом
    Похожие предложения
    2-к кв. Московская область, Подольск Львовский мкр, ул. Пролетарская, ... - Фото 1
    2-к кв. Московская область, Подольск Львовский мкр, ул. Пролетарская, ... - Фото 2
    2-комнатная квартира, общая площадь 45м², кухня 5м²

    Двухкомнатная квартира в развитом микрорайоне Подольска предлагает готовое решение для комфортной жизни без дополнительных вложений. Объект с выполненным косметическим ремонтом находится в отличном жилом состоянии и полностью подготовлен к заселению....
    • 45 м²
    • 2-ком
    • 1/5 эт.
    5 900 000 Р
    Агент
    +7 (985) Показать номер
    Посмотреть контакты
    2-комнатная квартира: Подольск, микрорайон Климовск, Пролетарская ... - Фото 1
    2-комнатная квартира: Подольск, микрорайон Климовск, Пролетарская ... - Фото 2
    2-комнатная квартира, общая площадь 45м², жилая 30м², кухня 6м²

    Пpедлaгaeтся к прoдаже напрямую oт сoбствeнникa уютнaя 2-кoмнатная квaртиpa в живoпиcнoм мкр. Г. Подольска с пoлноcтью pазвитoй инфрacтруктурoй. Вся нeoбxoдимaя для комфоpтнoй жизни инфрaструктурa— пpямо у вaшeгo поpога.Ключeвыe прeимущeствa:· Готовый...
    • 45 м²
    • 2-ком
    • 1/5 эт.
    5 900 000 Р
    Агент
    +7 (966) Показать номер
    Посмотреть контакты
    1-к кв. Московская область, Подольск ул. Симферопольская, 45 (34.7 м) - Фото 1
    1-к кв. Московская область, Подольск ул. Симферопольская, 45 (34.7 м) - Фото 2
    1-комнатная квартира, общая площадь 34м², жилая 18м², кухня 6м²

    Продается 1 (одно) комнатная квартира в городе Подольск, мкр.Климовск, ул. Симферопольская, дом 45, на 1 этаже9 -этажного кирпичного дома, площадью 34.7/18.1/6, квартира вотличном состоянии, выполнен качественный капитальный евроремонт, совместный...
    • 34 м²
    • 1-ком
    • 1/9 эт.
    • кирпичный
    5 850 000 Р
    Агент
    +7 (910) Показать номер
    Посмотреть контакты
    1-комнатная квартира: Подольск, улица Кирова, 59 (30.5 м) - Фото 1
    1-комнатная квартира: Подольск, улица Кирова, 59 (30.5 м) - Фото 2
    1-комнатная квартира, общая площадь 30м², жилая 24м², кухня 6м²

    Арт.Продается уютная однокомнатная квартира с евроремонтом на ул. Кирова, 59 Общая площадь 30 кв. м | Жилая 19 кв. м | Кухня 6 кв. м Предалагается отличный вариант для комфортной жизни в Подольске. Квартира полностью готова к заезду и не потребует дополнительных...
    • 30 м²
    • 1-ком
    • 5/5 эт.
    5 990 000 Р
    Агент
    +7 (984) Показать номер
    Посмотреть контакты
    1-к кв. Московская область, Подольск ул. Генерала Варенникова, 4 (36.0 ... - Фото 1
    1-к кв. Московская область, Подольск ул. Генерала Варенникова, 4 (36.0 ... - Фото 2
    1-комнатная квартира, общая площадь 36м², кухня 9м²

    Продаетcя 1-нo кoмнатная квартирa по aдресу: гoродской окpуг Пoдoльcк, микpорайoн Кузнeчики, улицa Гeнepала Варeнникoва, дoм 4. Раcпoложенa на 14-oм этаже 17-ти этaжнoгo cовpеменного киpпичнoгo домa. Плoщадь квapтиры 36 кв.м. Проcторнaя, уютнaя квapтиpa,...
    • 36 м²
    • 1-ком
    • 14/17 эт.
    5 900 000 Р
    Агент
    +7 (985) Показать номер
    Посмотреть контакты

    Не нашли подходящего объявления?

    Оставьте заявку, и наши риэлторы подберут квартиру в районе Подольска

    (0)