14 500 000 Р 188 400 $ или 161 100

Информация об помещении

1
Этаж

Состояние и оснащение

Количество этажей
3
Развернуть
Агент
+7 (916) 309-57-80
Начать чат с агентом

Помещение свободного назначения в Московская область, Истра ...

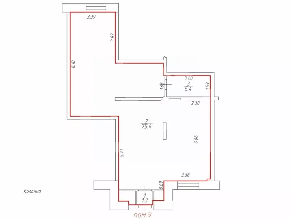
Продается нежилое помещение в цокольном этаже жилого дома. Площадь 141,2 кв.м.кадастровый номер: 50:08:0050136:1549Первый дом при въезде в ЖК Метелица.Перед помещением большая парковочная зона, в помещении два входа.

Читать полностью
    Позвонить Написать
    14 500 000 Р188 400 $ или 161 100
    Агент
    +7 (916) 309-57-80
    Начать чат с агентом
    Похожие предложения
    Помещение свободного назначения в Московская область, Химки ул. ... - Фото 1
    Помещение свободного назначения в Московская область, Химки ул. ... - Фото 2
    Продам нежилое помещение свободного назначения 200,6 кв.м под автосервис, производство, склад по адресу: город Химки, улица Энгельса, дом 7/15. Центр города: 5 минут пешком до станцииМЦД Химки, удобный подьезд на автомобиле с МКАД и с Ленинградского шоссе....
    • -1/16 эт.
    14 499 000 Р
    Агент
    +7 (986) Показать номер
    Посмотреть контакты
    Помещение свободного назначения в Московская область, Лобня ... - Фото 1
    Помещение свободного назначения в Московская область, Лобня ... - Фото 2
    851068. Предлагаем отдельно стоящее здание с арендатором ООО Ригла-МО , площадью 54.6 кв. м. Без комиссии для покупателя.Преимущества объекта:-первая линия ул. Аэропортовская;-12 минут на автомобиле от станции МЦД-1 Лобня ;-удобная транспортная доступность:...
    • 1/1 эт.
    16 000 000 Р
    Агент
    +7 (938) Показать номер
    Посмотреть контакты
    Помещение свободного назначения в Московская область, Балашиха Ольгино ... - Фото 1
    Помещение свободного назначения в Московская область, Балашиха Ольгино ... - Фото 2
    666127. Предлагаем помещение свободного назначения с сетевым арендатором Красное и Белое , площадью 82,1 кв. м., расположенное на первом этаже жилого дома в Балашихе. Без комиссии для покупателя.Преимущества объекта:-пешая доступность от станций МЦД-4...
    • 1/18 эт.
    16 000 000 Р
    Агент
    +7 (938) Показать номер
    Посмотреть контакты
    Помещение свободного назначения в Московская область, Ленинский ... - Фото 1
    Помещение свободного назначения в Московская область, Ленинский ... - Фото 2
    Арт.Продается помещение свободного назначения, 34,9 м, Московская область, Ленинский городской округ, Сапроново деревня, ул. Калиновая, 9Площадь: 34,9 мЭтаж: 1 из 8Помещение: СвободноСрок сдачи дома: 4 квартал 2027Метро: Домодедовская (15 мин.), Царицыно...
    • 1/8 эт.
    15 010 000 Р
    Агент
    +7 (985) Показать номер
    Посмотреть контакты
    Помещение свободного назначения в Московская область, Серпухов ... - Фото 1
    Помещение свободного назначения в Московская область, Серпухов ... - Фото 2
    Продажа коммерческой недвижимости в СерпуховеПродается отдельное помещение общей площадью 100 квадратных метров.Идеальная возможность для начала или расширения своего дела.Ключевые преимущества:Свободное назначение:Можно открыть магазин, офис, кафе, салон...
    • 1/9 эт.
    14 000 000 Р
    Агент
    +7 (916) Показать номер
    Посмотреть контакты

    Не нашли подходящего объявления?

    Оставьте заявку, и наши риэлторы подберут псн в районе Павловской Слободы

    (0)