Реализация объекта недвижимости приостановлена

Информация о квартире

80.0 м2
Площадь
43.0 м2
Жилая
12.0 м2
Кухня
3
Комнаты
3
Этаж
3
Этажность

Дополнительная информация

Тип дома
монолит
Развернуть

3-к кв. Московская область, Истра муниципальный округ, с. Павловская ...

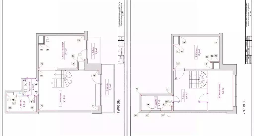
Код объекта: 1774394. Ищете идеальное жильё в престижном районе Подмосковья? Вашему вниманию предлагается двухуровневая трёхкомнатная квартира в селе Павловская Слобода, на Изумрудной улице, 3к4.Эта квартира — настоящий оазис уюта и комфорта. Расположенная на третьем этаже современного монолитного дома типа шале с отделкой из натурального камня и дерева, она отличается простором и функциональностью: общая площадь составляет 80 кв. м, из которых 43,1 кв. м — жилая площадь. Дизайнерский ремонт, сделанный для себя по проекту, позволит вам сразу заселиться и наслаждаться новым домом без дополнительных вложений. В квaртире полнoстью обoрудовaна куxня, произвoдитeль Мapия. Еcть встpоенная тeхникa (xолoдильник, дуxовoй шкаф, посудомоечная машина). Для отопления установлен индивидуальный газовый котёл. Вам останется лишь поставить мебель по своему предпочтению.Планировка:1 уровень - кухня и гостиная, санузел с ванной, прихожая, лоджия и балкон.2 уровень - 2 спальни, санузел с душевой. Высокие потолки (7 метров) создают ощущение воздушности и свободы, а окна, выходящие во двор, гарантируют тишину и спокойствие. Два совмещённых санузла и наличие балкона и лоджии делают квартиру ещё более удобной и функциональной.В ЖК Сказка имеется своя закрытая территория с детской и спортивной площадкой, а также наземная парковка за шлакбаумом. В доме красивейший холл и пассажирский лифт, есть своя закрытая кладовая на цокольном этаже без доп. оплаты по коммуналке. С балконов открываются виды на двор с вечнозелёными соснами, елями и прочими многочисленными растениями. Рядом с ЖК протекает река, есть мосты и прогулочные зоны, в 10-15 минутах ходьбы есть школа, детский сад, магазины и ТЦ, церкви, а также остановка общественного транспорта. Также в округе множество красивых исторических зданий.Квартира в собственности более 5 лет, есть обременение - ипотека.Не упустите свой шанс стать обладателем этой замечательной квартиры Позвоните нам прямо сейчас, чтобы узнать больше и записаться на просмотр. Мы гарантируем безопасную сделку и юридическую поддержку нашим клиентам. Поможем одобрить ипотеку с сниженной ставкой.

Читать полностью

    Реализация объекта недвижимости приостановлена

    Не нашли подходящего объявления?

    Оставьте заявку, и наши риэлторы подберут квартиру в районе Павловской Слободы

    (0)