49 990 000 Р 656 400 $ или 553 800

Информация об помещении

3
Этаж

Состояние и оснащение

Количество этажей
3
Развернуть
Агент
+7 (985) 482-19-45
Начать чат с агентом

Помещение свободного назначения в Московская область, Орехово-Зуево ...

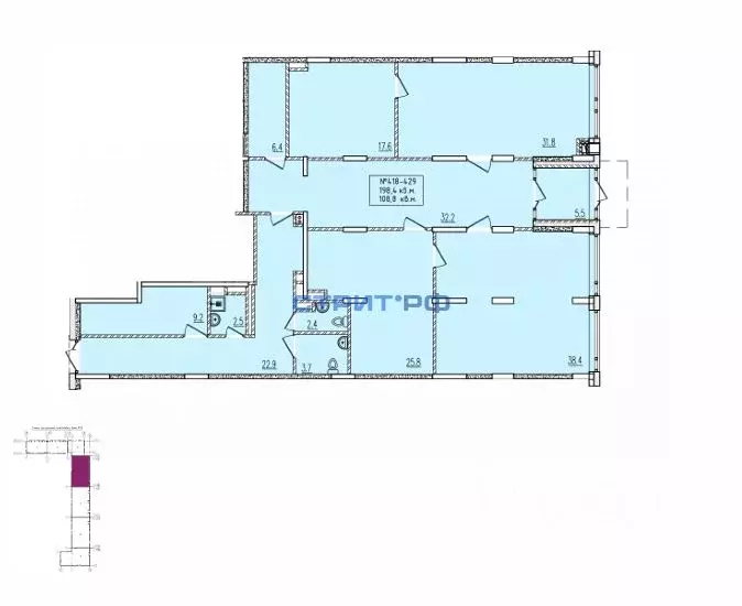
Продам помещение с полным оснащением 1264.6 м.Собственник продает универсальное помещение общей площадью 1264,6 м — готовое решение для вашего бизнеса Объект полностью укомплектован современными инженерными системами, что позволит вам начать работу практически сразу после покупки.Планировка: 1-й - 3-й этаж: 44,4 м — лестница. 3-й этаж: 1222,2 м (10,1 м + 1212,1 м) — основное просторное помещение. В помещении два отдельный входа/выхода. Ключевое преимущество — полная готовность В помещении за последние годы проведено масштабное техническое переоснащение. Все системы новые или недавно обслужены:Электроснабжение: Три независимые электросистемы (Электросистема 1, 2, 3). Мощности достаточно для любого оборудования. Последняя система смонтирована в 2023 году.Вентиляция и кондиционирование: Современная система установлена в 2024 г. (новая ). Отопление: Современная система, запущена в 2022 году.Безопасность: Система порошкового пожаротушения (смонтирована в 2023 г.). Система видеонаблюдения (с 2021 г.).Все системы имеют акты ввода в эксплуатацию. Ваши выгоды: Экономия времени и денег: Не нужно вкладываться в дорогостоящий монтаж коммуникаций. Снижение рисков: Все системы легализованы и приняты надзорными органами. Быстрый старт: Минимальные затраты на запуск вашего проекта. Чистые права: Помещения в собственности с 2020 года. Идеально для: Производства Крупного склада (оптовая торговля, логистика) Фудкорта или пищевого цеха Спортивного клуба или шоу-румаИ прочее.Цена указана за весь объект. Готовы к конструктивным переговорам с серьезными покупателями.Не упустите уникальное предложение на рынке Свяжитесь прямо сейчас, чтобы договориться о просмотре.

Читать полностью
    Позвонить Написать
    49 990 000 Р656 400 $ или 553 800
    Агент
    +7 (985) 482-19-45
    Начать чат с агентом
    Похожие предложения
    Помещение свободного назначения в Московская область, Красногорск ул. ... - Фото 1
    Помещение свободного назначения в Московская область, Красногорск ул. ... - Фото 2
    Лот 998629 Предложение от Собственника Продаётся помещение свободного назначения 68,4 м, ЖК Sky Sputnik О помещении:Площадь — 68,4 м.Первый этаж стилобата, формат стрит-ритейл.Расположено в центре торговой галереи внутри квартала.Свободная планировка,...
    • 1/34 эт.
    50 000 000 Р
    Агент
    +7 (986) Показать номер
    Посмотреть контакты
    Помещение свободного назначения в Московская область, Люберцы Городок ... - Фото 1
    Помещение свободного назначения в Московская область, Люберцы Городок ... - Фото 2
    Арт.Престижное коммерческое предложение Вашему вниманию предлагается современный двухуровневый нежилой комплекс общей площадью 378 квадратных метров с уникальной возможностью расширения до 660 квадратных метров при минимальных вложениях. Это идеальное...
    • 1/2 эт.
    49 980 000 Р
    Агент
    +7 (910) Показать номер
    Посмотреть контакты
    Помещение свободного назначения в Московская область, Дмитров ... - Фото 1
    Помещение свободного назначения в Московская область, Дмитров ... - Фото 2
    Арт.Продается земельный участок с зданием под реконструкцию 682.6 кв.м. Расположено по адресу: Московская область, г.Дмитров, ул. Московская, д.29Участок земли населенных пунктов с широким перечнем ВРИ. Есть возможность заведения всех центральных коммуникаций....
    • 1/4 эт.
    50 000 000 Р
    Агент
    +7 (916) Показать номер
    Посмотреть контакты
    Помещение свободного назначения в Московская область, Котельники Белая ... - Фото 1
    Помещение свободного назначения в Московская область, Котельники Белая ... - Фото 2
    881463-gab . Предлагаем помещение свободного назначения формата Street Retail с сетевым арендатором ВкусВилл, площадью 158 кв. м., расположенное на первом этаже жилого дома в ЖК Кузьминский лес . Угловой блок. Без комиссии для покупателя.Преимущества...
    • 1/25 эт.
    49 900 000 Р
    Агент
    +7 (938) Показать номер
    Посмотреть контакты
    Помещение свободного назначения в Московская область, Мытищи городской ... - Фото 1
    Помещение свободного назначения в Московская область, Мытищи городской ... - Фото 2
    Арт.Помещение свободного назначения в ЖК Пироговская Ривьера МО, г. Мытищи, ул. Ильинская, д.8О помещении:Общая площадь 197,3 м2Вход с улицыВитринное остеклениеО локации:Современный ЖКГустонаселенный массивИнтенсивный пешеходный трафикСобственная инфраструктура30...
    • 1/9 эт.
    49 325 000 Р
    Агент
    +7 (986) Показать номер
    Посмотреть контакты

    Не нашли подходящего объявления?

    Оставьте заявку, и наши риэлторы подберут псн в районе Орехово-Зуево

    (0)