340 000 000 Р 4 417 200 $ или 3 777 300

Информация о коттедже

592 м2
Площадь
46 cоток
Участок

Дополнительная информация

Дом продаётся вместе с участком
есть
Развернуть
Агент
+7 (989) 364-69-86
Начать чат с агентом

Дом в Одинцовский городской округ, КП Изумрудный век (592 м)

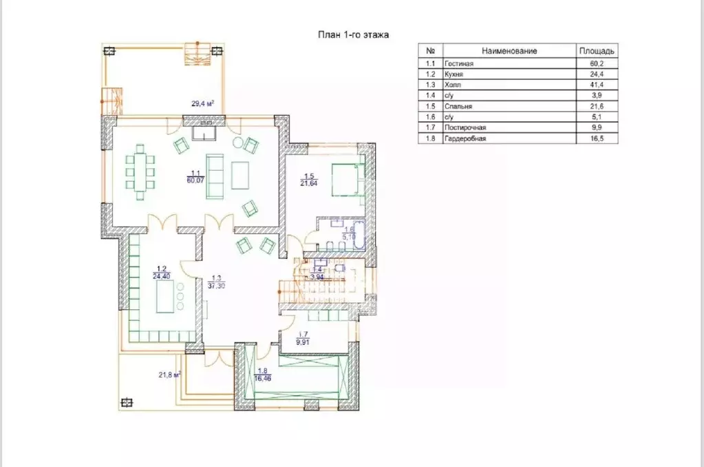
Лот №d273. Рублево-Успенское, 15 км от МКАД, Изумрудный век коттеджный поселок. Поселок Изумрудный век. Состав помещений:Цоколь: сeзонная гардeробная, винный погрeб, кладовая, чeмоданная, комната для пeрсонала с с/у.; 1-й этаж: гостиная с камином, столовая, кухня, гостeвой санузeл, спальня, СПА (бассeйн с противотоком, хамам, сауна, душeвая, комната отдыха), гараж на 4 м/м с мойкой и станцией быстрой зарядки для электромобиля.; 2-й этаж: основная спальня с двумя ванными комнатами и гардeробной, кабинeт, спальня с ванной комнатой.; Мансарда: две спальни, две ванные комнаты. Продается уютный дом в поселке Изумрудный век, расположенном в экологически чистом и живописном районе. Дом площадью 592 кв. м был построен для комфортного и длительного проживания. Участок площадью 46 соток (15 соток в собственности), благоустроенная территория, что создает особую атмосферу. Имеется собственный теннисный корт, детская площадка. По периметру участка установлена система видеонаблюдения.Внутренняя планировка дома продумана до мелочей.Цоколь: сeзонная гардeробная, винный погрeб, кладовая, чeмоданная, комната для пeрсонала с с/у.1-й этаж: гостиная с камином, столовая, кухня, гостeвой санузeл, спальня, СПА (бассeйн с противотоком, хамам, сауна, душeвая, комната отдыха), гараж на 4 м/м с мойкой и станцией быстрой зарядки для электромобиля.2-й этаж: основная спальня с двумя ванными комнатами и гардeробной, кабинeт, спальня с ванной комнатой.Мансарда: две спальни, две ванные комнаты.Дом расположен на Рублево-Успенском шоссе, в 15 км от МКАД, в закрытом охраняемом посёлке.Удобная развитая инфраструктура, в шаговой доступности располагаются магазины с товарами первой необходимости, детский сад, Кембрижская Международная школа, спортивный комплекс, Ледовый дворец, Фитнес центры

Читать полностью

    Для того, чтобы купить коттедж по адресу: , позвоните по телефону +7 (989) 364-69-86. Торопитесь! Объявление №50016942014 о продаже коттеджа опубликовано 2 дня назад.

    Позвонить Написать
    340 000 000 Р4 417 200 $ или 3 777 300
    Агент
    +7 (989) 364-69-86
    Начать чат с агентом
    Похожие предложения в Одинцовском районе
    общая площадь 650м², участок 22 сотки

    ID 3915 Дом новый, построен по индивидуальному проекту, расположен на участке 21 сотки. Дополнительно к территории прилегает 10 соток, на которых уже вырос практически еловый бор. Площадь дома составляет 650 кв. м., 4 этажа, стены все кирпичные, никакого...
    • 650 м²
    • 22 сот.
    350 000 000 Р
    Агент
    +7 (495) Показать номер
    Посмотреть контакты
    Коттедж в Московская область, Одинцовский городской округ, Мэдисон ... - Фото 1
    Коттедж в Московская область, Одинцовский городской округ, Мэдисон ... - Фото 2
    общая площадь 500м², участок 12 соток

    ЛОТ 82236 В Продажа загородного дома общей площадью 500 кв.м. Новорижское шоссе, 23 км от МКАД. Коттеджный поселок Мэдисон Парк. Коттедж построен 2 этажа. Выполнена дорогая отделка под ключ. Дизайнерские приемы и современные материалы. Просторные комнаты...
    • 500 м²
    • 12 сот.
    349 990 000 Р
    Агент
    +7 (933) Показать номер
    Посмотреть контакты
    Дом в Московская область, Одинцовский городской округ, Мэдисон Парк кп ... - Фото 1
    Дом в Московская область, Одинцовский городской округ, Мэдисон Парк кп ... - Фото 2
    3 этажа, общая площадь 538м², участок 20 соток

    Лот 553348.ДОМ В ПОСЕЛКЕ МЭДИСОН ПАРКНоворижское шоссе - 25 км от МКАДПлощадь 538 м2Участок 20 сот.4 cпален4 санузловОПИСАНИЕ:Современный трехэтажный дом площадью 538 кв.м под ключ с мебелью и отдельно стоящим гостевым домом площадью 150 кв.м, с баней,...
    • 3 эт.
    • 538 м²
    • 20 сот.
    330 000 000 Р
    Агент
    +7 (923) Показать номер
    Посмотреть контакты
    Дом в Московская область, Одинцовский городской округ, д. Чигасово, ... - Фото 1
    Дом в Московская область, Одинцовский городской округ, д. Чигасово, ... - Фото 2
    2 этажа, общая площадь 1000м², участок 21 сотка

    195016 ЛионНовый, стильный дом 1000 кв.м. на живописном участке 22 сотки в охраняемом поселке Лион. Интерьеры дома выдержаны в стиле современной классики. Установлена система приточно-вытяжной вентиляции. Конструктив дома - кирпич. Окна - дерево. Фасад...
    • 2 эт.
    • 1 000 м²
    • 21 сот.
    350 000 000 Р
    Агент
    +7 (985) Показать номер
    Посмотреть контакты
    Продается дом в КП Риита - Фото 1
    Продается дом в КП Риита - Фото 2
    общая площадь 1500м², участок 50 соток

    ID 9971 Дом под отделку на территории поселка Риита. Общая площадь коттеджа 1500 кв.м, в цокольном уровне предусмотрено размещение бассейна длинной 17 метров с противотоком. По планировке комфортно разместятся 6-7 спален. На участке также расположен гараж...
    • 1 500 м²
    • 50 сот.
    340 806 060 Р
    Агент
    +7 (495) Показать номер
    Посмотреть контакты

    Не нашли подходящего объявления?

    Оставьте заявку, и наши риэлторы подберут купить дом в районе Одинцовского района

    (0)