11 200 000 Р 144 900 $ или 122 700

Информация о коттедже

154 м2
Площадь
1
Этажность
6 cоток
Участок

Дополнительная информация

Дом продаётся вместе с участком
есть
Развернуть
Агент
+7 (985) 893-82-07
Начать чат с агентом

Коттедж в Московская область, Одинцовский городской округ, КП Западная ...

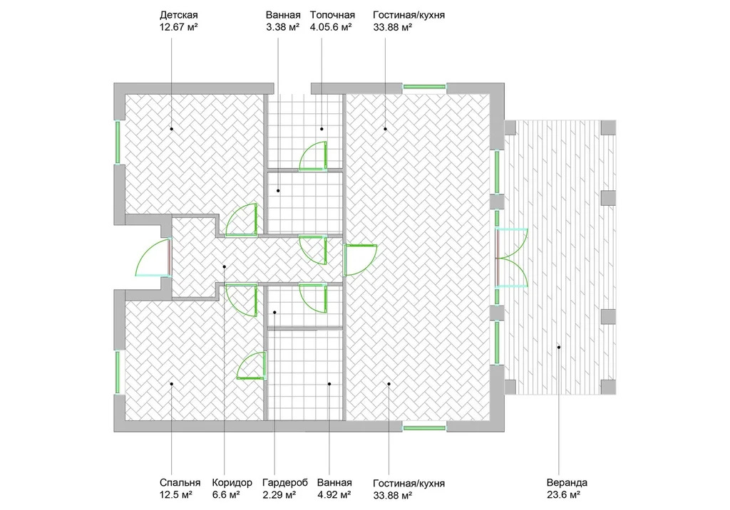
ОТЛИЧНЫЙ ВАРИАНТ для круглогодичного проживания МЕСТО+ЦЕНА+КАЧЕСТВО Продается одноэтажный коттедж из газобетонных блоков площадью 154 м2 с отличной планировкой (3 спальни, кухня-гостиная, 2 санузла, прихожая, котельная, терраса) со всеми необходимыми функционирующими коммуникациями (эл-во 25 КВт., теплый пол, электрокотел, колодец, септик) в стадии отделки - под чистовую, расположенный в активно развивающемся поселке, окруженном заповедным лесным массивом в окрестностях г. Звенигорода, которые за живописные холмы и природные красоты называют Русской Швейцарией . Земельный участок площадью 6,2 сотки правильной формы имеет категорию: земли населенных пунктов, вид разрешенного использования: для индивидуального жилищного строительства, что позволяет пользоваться сельским тарифом на электроэнергию, въезд в поселок через автоматический шлагбаум. В непосредственной близости находятся самые интересные достопримечательности города — Саввино-Сторожевский монастырь; величественный Храм Вознесения Господня; собор Успения Богородицы, сохранивший древние росписи Андрея Рублева, а также развитая инфраструктура города...Свободная продажа, оперативный показ.

Читать полностью

    Для того, чтобы купить 1-этажный коттедж по адресу: , позвоните по телефону +7 (985) 893-82-07. Торопитесь! Объявление №50016818537 о продаже одноэтажного коттеджа опубликовано Вчера.

    Позвонить Написать
    11 200 000 Р144 900 $ или 122 700
    Агент
    +7 (985) 893-82-07
    Начать чат с агентом
    Похожие предложения
    Дом в Московская область, Одинцовский городской округ, Энтузиаст СНТ ... - Фото 1
    Дом в Московская область, Одинцовский городской округ, Энтузиаст СНТ ... - Фото 2
    2 этажа, общая площадь 135м², участок 7 соток

    Продается двухэтажный дом из бруса 2012 года постройки. На первом этаже кухня, 2 спальни, гостинная, гардеробная, санузел. На втором этаже спальня. На участке баня, крытый бассейн, гараж, хоз.постройки, колодец, мангал. Все коммуникации: газ, вода, септик....
    • 2 эт.
    • 135 м²
    • 7 сот.
    12 000 000 Р
    Агент
    +7 (980) Показать номер
    Посмотреть контакты
    Продается дом в КП ЛапинО2 - Фото 1
    Продается дом в КП ЛапинО2 - Фото 2
    общая площадь 135м², участок 7 соток

    Продается двухэтажный дом из бруса 2012 года постройки. На первом этаже кухня, 2 спальни, гостинная, гардеробная, санузел. На втором этаже спальня. На участке баня, крытый бассейн, гараж, хоз.постройки, колодец, мангал. Все коммуникации: газ, вода, септик....
    • 135 м²
    • 7 сот.
    12 000 000 Р
    Агент
    +7 (903) Показать номер
    Посмотреть контакты
    Дом в Московская область, Голицыно Одинцовский городской округ, ... - Фото 1
    Дом в Московская область, Голицыно Одинцовский городской округ, ... - Фото 2
    1 этаж, общая площадь 76м², участок 747 соток

    id:989. Вашему вниманию дом с земельным участок по адресу : Московская область, г.о. Одинцовский, г Голицыно, пр-кт Свердловский 78О доме Дом из бревна год постройки 1920 год Есть готовый дизайн проект нового дома который мы готовы предоставить бесплатно...
    • 1 эт.
    • 76 м²
    • 747 сот.
    11 000 000 Р
    Агент
    +7 (923) Показать номер
    Посмотреть контакты
    Продается новый дом 107.3 м2| Семейная ипотека | Участок 6 соток - Фото 1
    Продается новый дом 107.3 м2| Семейная ипотека | Участок 6 соток - Фото 2
    Продается новый дом 107.3 м2| Семейная ипотека | Участок 6 соток - Фото 3
    Продается новый дом 107.3 м2| Семейная ипотека | Участок 6 соток - Фото 4
    Продается новый дом 107.3 м2| Семейная ипотека | Участок 6 соток - Фото 5
    Продается новый дом 107.3 м2| Семейная ипотека | Участок 6 соток - Фото 6
    блочный дом, без отделки, 1 этаж, общая площадь 107.3м², кол-во комнат 4, год постройки 2024, участок 6 соток

    Продается новый дом 107.3 м2 в охраняемом коттеджном поселке. Семейная ипотека. Участок 6 соток. Прямая продажа от застройщика! Успейте купить готовый дом в зеленой зоне с развитой инфраструктурой. Локация и поселок: Охраняемый коттеджный поселок в экологически...
    • 1 эт.
    • 107.3 м²
    • 6 сот.
    • 4-ком
    10 800 000 Р
    Агент
    +7 (958) Показать номер
    Посмотреть контакты
    Дом в Московская область, Одинцовский городской округ, Солнечная ... - Фото 1
    Дом в Московская область, Одинцовский городской округ, Солнечная ... - Фото 2
    4 этажа, общая площадь 476м², участок 12 соток

    Новый дом под чистовую отделку в КП СОЛНЕЧНАЯ ПОЛЯНА в д Волково, недалеко от Звенигорода. Место с панорамными видами,на небольшом склоне холма,в 10 минутах хотьбы от берега Москвы -реки с лучшей экологией подмосковной Швейцарии Звенигорода...
    • 4 эт.
    • 476 м²
    • 12 сот.
    11 500 000 Р
    Агент
    +7 (916) Показать номер
    Посмотреть контакты

    Не нашли подходящего объявления?

    Оставьте заявку, и наши риэлторы подберут купить дом в районе Одинцовского района

    (0)