283 399 550 Р 3 589 100 $ или 3 115 300

Информация о коттедже

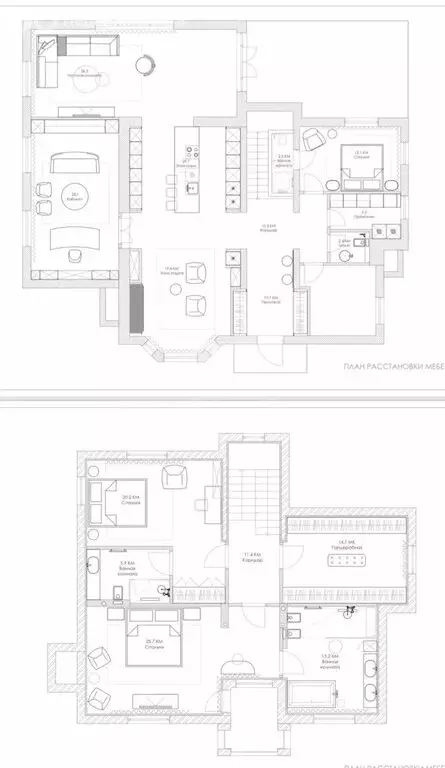
640 м2
Площадь
24 cоток
Участок

Дополнительная информация

Дом продаётся вместе с участком
есть
Развернуть
Агент
+7 (495) 104-55-69
Начать чат с агентом

Продается дом в дп Новодарьино РАН

ID 2563 ЭКСКЛЮЗИВНОЕ ПРЕДЛОЖЕНИЕ В продаже уютный и светлый коттедж в закрытом коттеджном поселке. Трехэтажный дом площадью 640 кв.м расположился на просторном зеленом участке, в окружении лесного массива. Дом готов для воплощения любых интерьерных решений будущего владельца Возможно организовать 5-6 спален, большие общие жилые пространства. На участке отдельно стоящий гараж на две машины. Уникальное стародачное место расположено в густом хвойном лесу. Всего в 17 км от города Удобная транспортная развязка, прекрасная внешняя инфраструктура, охраняемый поселок, прекрасная экологическая обстановка

Читать полностью

    Для того, чтобы купить коттедж по адресу: , позвоните по телефону +7 (495) 104-55-69. Торопитесь! Объявление №50016590930 о продаже коттеджа опубликовано Сегодня.

    Позвонить Написать
    283 399 550 Р3 589 100 $ или 3 115 300
    Агент
    +7 (495) 104-55-69
    Начать чат с агентом
    Похожие предложения в Одинцовском районе
    Дом в Московская область, Одинцовский городской округ, Горки-2 СНТ, ... - Фото 1
    Дом в Московская область, Одинцовский городской округ, Горки-2 СНТ, ... - Фото 2
    3 этажа, общая площадь 1100м², участок 28 соток

    177044 СолословоНовый, современный дом, расположенный на лесном участке.Красивый лесной участок, с пологим спуском к реке. Звоните сейчас, чтобы узнать подробную информацию и записаться на показ Экосистема Kalinka единое пространство...
    • 3 эт.
    • 1 100 м²
    • 28 сот.
    276 220 700 Р
    Агент
    +7 (923) Показать номер
    Посмотреть контакты
    Дом в Московская область, Одинцовский городской округ, д. Таганьково, ... - Фото 1
    Дом в Московская область, Одинцовский городской округ, д. Таганьково, ... - Фото 2
    2 этажа, общая площадь 357м², участок 12 соток

    161256 НиколиноДом в европейском стиле площадью 357 м на уютном участке 12 соток с лесными деревьями. Фасад дома облицован бордовым клинкерным кирпичом, украшен колоннами и фигурной ковкой. В отделке интерьера использованы мрамор, натуральное дерево,...
    • 2 эт.
    • 357 м²
    • 12 сот.
    290 000 000 Р
    Агент
    +7 (916) Показать номер
    Посмотреть контакты
    Дом в Московская область, Звенигород Одинцовский городской округ, ДСК ... - Фото 1
    Дом в Московская область, Звенигород Одинцовский городской округ, ДСК ... - Фото 2
    2 этажа, общая площадь 600м², участок 40 соток

    Номер в базе: J12496. Дом располагается на просторном ухоженном участке с корабельными соснами, построен с учётом современных тенденций в архитектуре и дизайне, что обеспечивает его владельцам максимальный комфорт и удобство. Просторные комнаты, большие...
    • 2 эт.
    • 600 м²
    • 40 сот.
    290 000 000 Р
    Агент
    +7 (915) Показать номер
    Посмотреть контакты
    Дом в Таганьково, КП Николино (357 м) - Фото 1
    Дом в Таганьково, КП Николино (357 м) - Фото 2
    2 этажа, общая площадь 357м²

    №161256Дом в европейском стиле площадью 357 м на уютном участке 12 соток с лесными деревьями. Фасад дома облицован бордовым клинкерным кирпичом, украшен колоннами и фигурной ковкой. В отделке интерьера использованы мрамор, натуральное дерево, оникс. Резиденция...
    • 2 эт.
    • 357 м²
    290 000 000 Р
    Агент
    +7 (495) Показать номер
    Посмотреть контакты
    Дом в Московская область, Одинцовский городской округ, Бузаево кп 20 ... - Фото 1
    Дом в Московская область, Одинцовский городской округ, Бузаево кп 20 ... - Фото 2
    2 этажа, общая площадь 600м², участок 30 соток

    Уникальное предложение на рынке элитной загородной недвижимости Представляем Вашему вниманию уютный дом 600 кв.м., расположенный в благоустроенном КП Бузаево всего в 17 км от МКАД по Рублево-Успенскому шоссе - это направление считается самым престижным...
    • 2 эт.
    • 600 м²
    • 30 сот.
    290 000 000 Р
    Агент
    +7 (923) Показать номер
    Посмотреть контакты

    Не нашли подходящего объявления?

    Оставьте заявку, и наши риэлторы подберут купить дом в районе Одинцовского района

    (0)