Реализация объекта недвижимости приостановлена

Информация о квартире

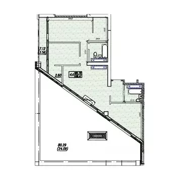
105.0 м2
Площадь
21.0 м2
Кухня
3
Комнаты
7
Этаж
9
Этажность

Дополнительная информация

Тип дома
монолит
Развернуть

3-к кв. Московская область, Одинцовский городской округ, Заречье пгт ...

Продается трехкомнатная квартира в девятиэтажном монолитном доме жилого комплекса Резиденции Сколково . Общая площадь квартиры - 105,1 кв. м, этаж 7 из 9. Срок сдачи - 2 квартал 2027 года. Новая резиденция 2.2 состоит из 6 секций:- 5 секция с отделкой White Box с возможностью повышения до дизайнерской за дополнительную плату- Остальные секции - без отделкиЖК Резиденции Сколково - это современный проект бизнес-класса, расположенный в престижном районе Сколково, у западной границы Москвы. ТРАНСПОРТНАЯ ДОСТУПНОСТЬ: - 0 км от МКАД - 10 минут на личном авто до метро Озёрная Солнцевской линии- 15 минут на личном авто до Москва-Сити по Кутузовскому проспекту - 20 минут на личном авто до центра по проспекту Генерала Дорохова- 24 минут на личном авто до центра по Мичуринскому проспектуОСОБЕННОСТИ РЕЗИДЕНЦИИ 2.2: - панорамное остекление- французские балконы- сквозные входные группы с безбарьерным входом- стильная мягкая зона ожидания- колясочные во входных группах на 1 этажах- входная группа 1 этажа каждой секции оснащена санузлом- паркинг на -1 этажах- по 2 лифта: 1 пассажирский, 1 грузопассажирскийПРИВАТНОСТЬ: Огороженная, закрытая территория, круглосуточное видеонаблюдение, контроль доступа во внутренний двор. БЛАГОУСТРОЙСТВО И ИНФРАСТРУКТУРА: Масштабное озеленение в концепции двора-парка и множество площадок отдыха для взрослых и детей. В 5 минутах ходьбы расположен Мещерский лесопарк. В жилом комплексе уже построены и работают 2 муниципальных детских сада с бассейном, школа на этапе строительства. В непосредственной близости - частные и муниципальные детские сады и школы, кафе и рестораны, продуктовые магазины, салоны красоты и другие готовые объекты городской инфраструктуры.*В 3D туре представлена отделка Фрунзуская классика. Business Plus

Читать полностью

    Реализация объекта недвижимости приостановлена

    Не нашли подходящего объявления?

    Оставьте заявку, и наши риэлторы подберут квартиру в новостройке в районе Заречья

    (0)