40 000 000 Р 519 700 $ или 444 400

Информация об помещении

1
Этаж

Состояние и оснащение

Количество этажей
17
Развернуть
Агент
+7 (985) 579-74-33
Начать чат с агентом

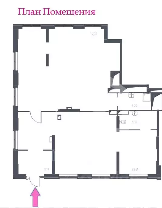
Помещение свободного назначения в Московская область, Одинцово ул. ...

Продажа помещения свободного назначения в мкр Новая Трехгорка, Одинцово. 15-20 минут пешком через парк от МЦД Сколково. Рядом с домом остановка общественного транспорта. Первая линия домов, активный авто и пешеходный трафик.1 этаж жилого дома, два отдельных входа с первой линии и доп. вход со стороны лесопарка. Помещение кабинетно-зальной планировки, несколько мокрых точек, высота потолка 2,8м. Имеются арендаторы.

Читать полностью
    Позвонить Написать
    40 000 000 Р519 700 $ или 444 400
    Агент
    +7 (985) 579-74-33
    Начать чат с агентом
    Похожие предложения
    Прямая продажа от застройщика - Фото 1
    Прямая продажа от застройщика - Фото 2
    Прямая продажа от застройщика - Фото 3
    Прямая продажа от застройщика - Фото 4
    Прямая продажа от застройщика - Фото 5
    Прямая продажа от застройщика - Фото 6
    Прямая продажа от застройщика - Фото 7
    Прямая продажа от застройщика - Фото 8
    Прямая продажа от застройщика - Фото 9
    Прямая продажа от застройщика - Фото 10
    Прямая продажа от застройщика - Фото 11
    Прямая продажа от застройщика - Фото 12
    Прямая продажа от застройщика - Фото 13
    Прямая продажа от застройщика - Фото 14
    Прямая продажа от застройщика - Фото 15
    Прямая продажа от застройщика - Фото 16
    Прямая продажа от застройщика - Фото 17
    полезная площадь 203.8м²

    Площадь от 104,8 кв. м до 308,6 м2, корпус 2, первый этаж, 1 вход с улицы, 1 вход со двора. Центральное местоположение, рядом с ТЦ, к помещению есть свободный подъезд и напротив входа есть стихийная парковка. Высота потолков 5,4 м, выделенная мощность...
    • 203.8 м²
    • 1/9 эт.
    40 800 000 Р
    Агент
    +7 (495) Показать номер
    Посмотреть контакты
    Помещение свободного назначения в Московская область, Красногорск ... - Фото 1
    Помещение свободного назначения в Московская область, Красногорск ... - Фото 2
    Жилой Комплекс Серебрица (д.3) класса BПлощадь: 186,1 м2Стоимость за 1 м2: 215 000,. включая НДССтоимость площади:,. включая НДССистема налогообложения: НДСГотовность: готово к въездуЭтаж: 1Наличие с/у: , ВнутриСтатус: свободенВысота потолков, h: 2.95мОтдельный...
    • 1/12 эт.
    40 011 500 Р
    Агент
    +7 (911) Показать номер
    Посмотреть контакты
    Помещение свободного назначения в Московская область, Мытищи ул. ... - Фото 1
    Помещение свободного назначения в Московская область, Мытищи ул. ... - Фото 2
    985794. Предлагаем помещение свободного назначения с арендатором Wildberries в ЖК Яуза Парк , площадью 81.7 кв. м, расположенное на первом этаже 16-этажного жилого дома. Без комиссии для покупателя.Преимущества объекта:-ЖК состоит из 12 корпусов переменной...
    • 1/16 эт.
    39 600 000 Р
    Агент
    +7 (938) Показать номер
    Посмотреть контакты
    Помещение свободного назначения в Московская область, Люберцы ... - Фото 1
    Помещение свободного назначения в Московская область, Люберцы ... - Фото 2
    896916. Предлагаем помещение свободного назначения с арендатором Семейный клуб Слон в ЖК Томилино Парк , площадью 159.2 кв. м, расположенное на первом этаже 17-этажного жилого дома. Без комиссии для покупателя.Преимущества объекта:-ЖК состоит из 25-ти...
    • 1/17 эт.
    40 000 000 Р
    Агент
    +7 (938) Показать номер
    Посмотреть контакты
    Помещение свободного назначения в Московская область, Хотьково ... - Фото 1
    Помещение свободного назначения в Московская область, Хотьково ... - Фото 2
    Арт.Продается высокодоходный коммерческий Обьект с арендаторами, по адресу: Московская обл, Сергиево Посадский г.о, г. Хотьково, ул. Октябрьская, 7Б Уникальное предложение на рынке Мы продаем не просто недвижимость, а готовый бизнес со стабильным пассивным...
    • 1/5 эт.
    39 780 000 Р
    Агент
    +7 (923) Показать номер
    Посмотреть контакты

    Не нашли подходящего объявления?

    Оставьте заявку, и наши риэлторы подберут псн в районе Одинцово

    (0)