35 000 000 Р 432 700 $ или 374 800

Информация об помещении

1
Этаж

Состояние и оснащение

Количество этажей
25
Развернуть
Агент
+7 (936) 706-35-83
Начать чат с агентом

Помещение свободного назначения в Московская область, Одинцово ...

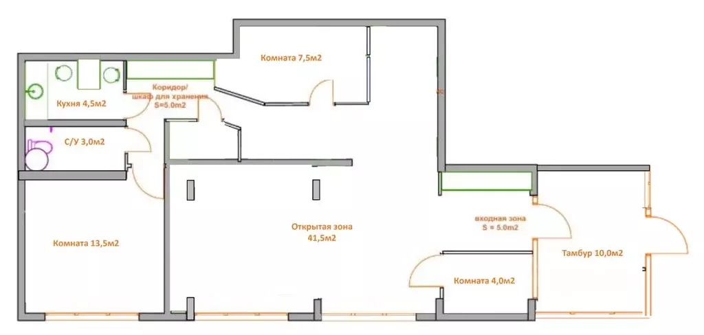
Помещение свободного назначения 125,8 м, ЖК Союзный (г. Одинцово)Дом сдан, идет активное заселение. Отличный вариант для офиса, салона красоты, медицинского кабинета или небольшого магазина.Характеристики помещения:Свободная планировка — легко адаптировать под ваш проектБез отделки3 мокрые точкиОтдельный вход с улицыВысокие потолкиБольшие окна, хорошее естественное освещение Преимущества:Высокий пешеходный и автомобильный трафик — рядом жилые дома, остановки и транспортные потоки.Минимум конкурентов в радиусе 1 км — есть возможность занять востребованную нишу.Жилой массив вокруг обеспечивает постоянный поток потенциальных клиентов.Средний бюджет семьи в районе — платежеспособная аудитория.Закрытые точки в окружении — дополнительный ресурс для привлечения покупателей. Локация и инфраструктура: ЖК Союзныйасположен в 8 км от МКАД, 15 минут пешком до станции МЦД-1 Одинцово . Удобный выезд на Минское и Можайское шоссе, рядом автобусные остановки с маршрутами до метро Киевская , Парк Победы и Юго-Западная . Внутри комплекса — торговый центр, детский сад (ввод в 2025 г.), паркинги, детские и спортивные площадки. В шаговой доступности — школы, ТЦ, кинотеатр Юность , Ледовый дворец, сквер Союзный и Глазынинский пруд. Район считается одним из самых экологичных в Подмосковье.Надежный застройщик — ГК Вектор . Дом сдан.

Читать полностью
    Позвонить Написать
    35 000 000 Р432 700 $ или 374 800
    Агент
    +7 (936) 706-35-83
    Начать чат с агентом
    Похожие предложения
    Помещение свободного назначения (575 м) - Фото 1
    Помещение свободного назначения (575 м) - Фото 2
    Лот №969842 Предложение от Собственника Напишите нам в Ватсап, чтобы получить ПОДРОБНУЮ ПРЕЗЕНТАЦИЮ С ПЛАНИРОВКОЙ И ФОТОГРАФИЯМИ Продается помещение свободного назначения общей площадью 574,6 кв.м, расположенное в цоколе многоярусного паркинга г.Люберцы...
    • 1/5 эт.
    36 000 000 Р
    Агент
    +7 (495) Показать номер
    Посмотреть контакты
    Коммерческие помещения, 434,6 кв. м - Фото 1
    Коммерческие помещения, 434,6 кв. м - Фото 2
    Коммерческие помещения, 434,6 кв. м - Фото 3
    Коммерческие помещения, 434,6 кв. м - Фото 4
    Коммерческие помещения, 434,6 кв. м - Фото 5
    Коммерческие помещения, 434,6 кв. м - Фото 6
    Коммерческие помещения, 434,6 кв. м - Фото 7
    Коммерческие помещения, 434,6 кв. м - Фото 8
    полезная площадь 434.6м²

    Объект реализуется на торгах в электронной форме. Предлагается к приобретению имущественный комплекс, включающий в себя нежилые помещения общей площадью 434,6 кв. м и земельный участок площадью 325 кв. м, расположенный по адресу: Московская область, г.о....
    • 434.6 м²
    • 1/2 эт.
    35 500 000 Р
    Агент
    +7 (495) Показать номер
    Посмотреть контакты
    Помещение свободного назначения в Московская область, Пушкино ... - Фото 1
    Помещение свободного назначения в Московская область, Пушкино ... - Фото 2
    В продаже от DOGMA Корпус . Срок сдачи: 1 кв. 2026, общей площадью94.67 кв.м., на 1 этаже. На территории квартала появятся пешеходныебульвары с местами для отдыха, детские и спортивные площадки, свой собственный лес для прогулок. Будет построено пять...
    • 1/15 эт.
    35 974 600 Р
    Агент
    +7 (985) Показать номер
    Посмотреть контакты
    Помещение свободного назначения в Московская область, Мытищи просп. ... - Фото 1
    Помещение свободного назначения в Московская область, Мытищи просп. ... - Фото 2
    Продается коммерческое помещение свободного назначения с качественным ремонтом, готово под ведение бизнеса или аренду, общая площадь 94,0 м2. Отдельная входная группа, приточно-вытяжная вентиляция + кондиционирование, 3 изолированных кабинета и открытая...
    • 1/17 эт.
    34 000 000 Р
    Агент
    +7 (915) Показать номер
    Посмотреть контакты
    Помещение свободного назначения в Московская область, Истра ... - Фото 1
    Помещение свободного назначения в Московская область, Истра ... - Фото 2
    АУКЦИОН. Объект реализуется на торгах в электронной форме.Предлагается к приобретению имущественный комплекс, включающий в себя нежилые помещения общей площадью 434,6 кв. м и земельный участок площадью 325 кв. м, расположенный по адресу: Московская область,...
    • 1/2 эт.
    35 500 000 Р
    Агент
    +7 (923) Показать номер
    Посмотреть контакты

    Не нашли подходящего объявления?

    Оставьте заявку, и наши риэлторы подберут псн в районе Одинцово

    (0)