3 881 100 Р 48 680 $ или 41 480

Информация об помещении

1
Этаж

Состояние и оснащение

Количество этажей
1
Развернуть
Агент
+7 (915) 266-41-29
Начать чат с агентом

Склад в Московская область, Богородский городской округ, Обухово пгт, ...

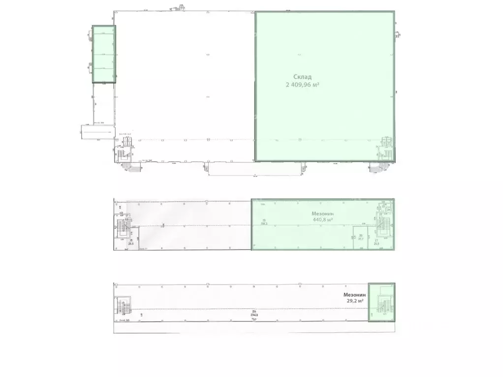
Складское помещение 3 881.1 кв. м в Атлант-Парк .Направление: Восток. Шоссе: Горьковское. Расстояние от МКАД: 25 км. Характеристики:- Класс: A; - Ограничения по электроэнергии: 20 МВт; - Ворота: Доки; - Тип склада: Производственное помещение, Сухой склад; - Высота потолков: 12.5 м; - Нагрузка на пол: 8 т/ кв.м; - Система пожаротушения: Порошковая, Спринклерная; - Тип пола: С антипылевым покрытием; - Наличие газа: Да; - Пожарная сигнализация: Да; - Уровень пола: 1.2 м; - Шаг колонн: 12x24 м. Арендная ставка:/кв. м в год. Финансовые условия: - В стоимость включено: OPEX, НДС; - Оплачивается отдельно: Коммунальные услуги; - Налог: Включая НДС. Без комиссии и скрытых платежей для арендатора.Готовы оперативно организовать просмотр в удобное время, предоставить PDF-презентацию и план. Точное местоположение объекта можно найти по данным координатам: 55.825222,38.246559 ID = c_1782075

Читать полностью
    Позвонить Написать
    3 881 100 Р48 680 $ или 41 480
    Агент
    +7 (915) 266-41-29
    Начать чат с агентом
    Похожие предложения
    Склад в Московская область, Богородский городской округ, Обухово пгт ... - Фото 1
    Склад в Московская область, Богородский городской округ, Обухово пгт ... - Фото 2
    Склад А класса площадью 3400м2Офис 374м2 , деление от 1500м2Характеристики:• Высота потолков: 12 м• Нагрузка 8т ( полы антипыль)• Ворота: докшелтеры и доклевеллеры 4• Электричество 100 кВт• Система пожаротушения: порошковая• Центральная коммуникация Охраняемая...
    • 1/2 эт.
    3 825 000 Р
    Агент
    +7 (985) Показать номер
    Посмотреть контакты
    Склад в Московская область, Богородский городской округ, имени ... - Фото 1
    Склад в Московская область, Богородский городской округ, имени ... - Фото 2
    Уникальный номер помещения.Аренда помещения от собственника (без комиссии);Арендные каникулы, скидки и индивидуальные улучшения - все обсуждается;Помещение находится на огороженной и охраняемой территории;Транспортная доступность: Носовихинское ш.Удаленность...
    • 1/1 эт.
    3 888 000 Р
    Агент
    +7 (980) Показать номер
    Посмотреть контакты
    Склад в Московская область, Ногинск Богородский городской округ, ул. ... - Фото 1
    Склад в Московская область, Ногинск Богородский городской округ, ул. ... - Фото 2
    Арт.Предлагается в аренду производственно-складское помещение в современном здании класса А, общей площадью- 2880кв.м. Размер склада (36м х 72м) - 2592 кв.м. и мезонин площадью - 288 кв.м Основные характеристики: Высота потолка до низа ферм: 12 м ....
    • 1/2 эт.
    3 840 000 Р
    Агент
    +7 (915) Показать номер
    Посмотреть контакты
    Склад в Московская область, Сергиев Посад Московское ш., 9 (2000 м) - Фото 1
    Склад в Московская область, Сергиев Посад Московское ш., 9 (2000 м) - Фото 2
    Уникальный номер помещения.Аренда помещения от собственника (без комиссии);Арендные каникулы, скидки и индивидуальные улучшения - все обсуждается;Помещение находится на огороженной и охраняемой территории;Транспортная доступность: Ярославское (М-8) ш.Удаленность...
    • 1/2 эт.
    4 000 000 Р
    Агент
    +7 (980) Показать номер
    Посмотреть контакты
    Склад в Московская область, Щелково Заречная ул., 153к5 (2880 м) - Фото 1
    Склад в Московская область, Щелково Заречная ул., 153к5 (2880 м) - Фото 2
    Складское помещение 2 880.0 кв. м в Технопарк Щелково . Объект скоро освободится. Успейте забронировать на выгодных условиях. Готовность ко въезду уточняется по запросу. Направление: Восток. Шоссе: Фряновское, Щелковское. Расстояние от МКАД: 18 км. ...
    • 1/2 эт.
    3 838 987 Р
    Агент
    +7 (915) Показать номер
    Посмотреть контакты

    Не нашли подходящего объявления?

    Оставьте заявку, и наши риэлторы подберут склад в районе Обухово

    (0)