Реализация объекта недвижимости приостановлена

Информация об помещении

1
Этаж

Состояние и оснащение

Количество этажей
1
Развернуть

Склад в Московская область, Ногинск Богородский городской округ, ул. ...

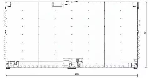
Отапливаемый склад в аренду от собственника без комиссии. Класс А. Объявление актуально. Охраняемая территория. 45 км от МКАД. Никаких скрытых платежей. Открыты к диалогу по условиям аренды. ID объекта 3650. Добавьте в избранное, чтобы не потерять Площадь: 22 248 кв. мСклад: 19 440 кв. мМезонин: 2 808 кв. м45 км от МКАД по Горьковскому шоссе.Технические характеристики:Нагрузка на пол: 8 т/кв. мКоличество ворот: 15 шт. (Докового типа)Температурный режим: Отапливаемый складМощность: 300 кВтВысота потолка: 12 мПол: Бетон-АнтипыльГотов к арендеОптоволоконные коммуникации связиПропускная системаОхранная и пожарная сигнализацииКоммерческие условия:Арендная ставка:/кв. м/год с НДСЭксплуатационные расходы: Включены ID объекта - 3650

Читать полностью

    Реализация объекта недвижимости приостановлена

    Не нашли подходящего объявления?

    Оставьте заявку, и наши риэлторы подберут склад в районе Ногинска

    (0)