50 000 Р 647 $ или 548

Информация об помещении

2
Этаж

Состояние и оснащение

Количество этажей
3
Развернуть
Агент
+7 (967) 843-75-34
Начать чат с агентом

Помещение свободного назначения в Московская область, Ногинск ...

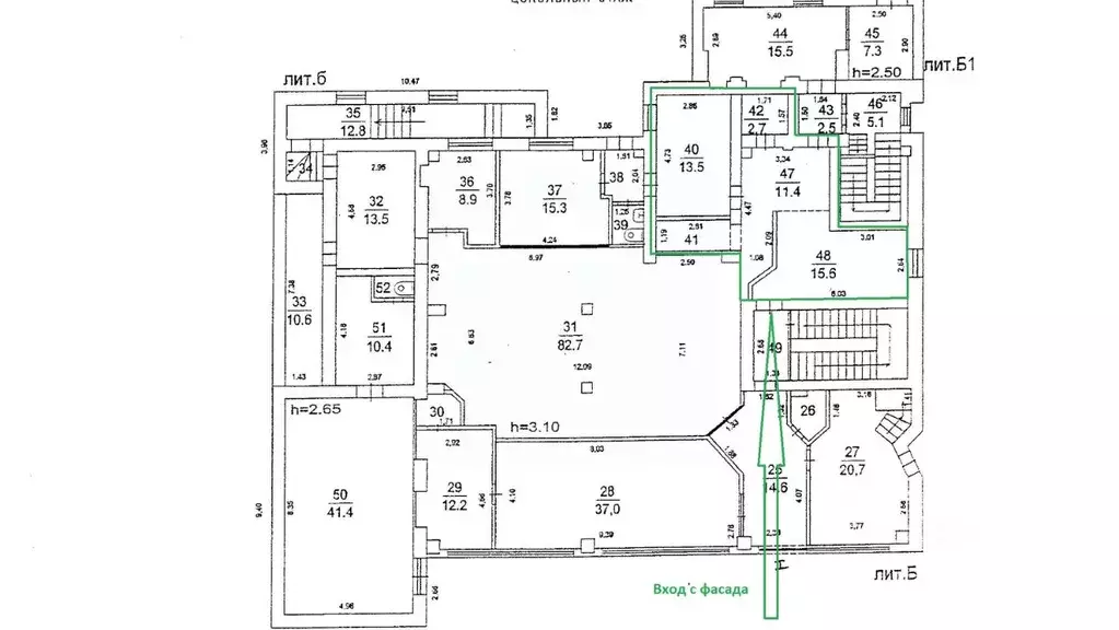
Собственник. Супер предложение в ТЦ на бетонке внутри плотно заселенного жилого массива. 50 кв.м., 2 эт.. Самый плотно населенный район Ногинска, ул. Декабристов д. 1А. Центр города, рядом центральный рынок, Макдональдс, расположено на Московском малом кольце (Бетонка), автобусные остановки и пешеходный переход. Великолепная визуализация и возможности для рекламы, площадь под вывеску с выделением места на фасаде для КАЖДОГО АРЕНДАТОРА. Зальная планировка, отдельный блок с ремонтом, есть все коммуникации, достаточная эл. мощность, потолки 3,1 м., много окон, вход со двора. Подойдет практически любой вид деятельности, под магазин, банк, офис продаж, шоу-рум, услуги и т.д. УСН, коммуналка отдельно. Бесплатная ПАРКОВКА у здания. В ТЦ сидит кондитерская, разливное пиво, Канцпарк, салон красоты, юридическая консультация, ателье, магазин стройматериалов. Хороший трафик, напротив бульвар, где постоянно гуляют жители, особенно мамочки с детьми, через дом расположен Макдональдс. Расскажу и все по объекту и покажу, все вопросы в т.ч. ставка, каникулы и т.д. оперативно и предметно решаем в процессе переговоров, готовы договариваться, звоните. Если Вам важны честные стабильные долгосрочные отношения с арендодателями - это к нам

Читать полностью
    Позвонить Написать
    50 000 Р647 $ или 548
    Агент
    +7 (967) 843-75-34
    Начать чат с агентом
    Похожие предложения
    Помещение свободного назначения (76.4 м) - Фото 1
    Арт.Предлагается в аренду помещение, общей площадью 77 квадратных метров, которое состоит из большого просторного кабинета расположенное по адресу: г. Ногинск, ул пл Ленина, д. 2 А Помещение находится на цокольном этаже ОСНОВНЫЕ ПРЕИМУЩЕСТВА: Удобное...
    • 1/1 эт.
    50 000 Р
    Агент
    +7 (906) Показать номер
    Посмотреть контакты
    Помещение свободного назначения в Московская область, Ногинск ... - Фото 1
    Помещение свободного назначения в Московская область, Ногинск ... - Фото 2
    От собственника Без комиссии Характеристики:- 1 линия- Общая входная группа- Общая парковка- Доступ 24/7- ХВС/ГВС- Общий санузел- Центральное отопление- Хороший ремонт- Кабинетная планировка- Отдельно стоящее здание- С окнами- Коммунальные услуги оплачиваются...
    • -1/1 эт.
    50 500 Р
    Агент
    +7 (915) Показать номер
    Посмотреть контакты
    Помещение свободного назначения в Московская область, Старая Купавна ... - Фото 1
    Помещение свободного назначения в Московская область, Старая Купавна ... - Фото 2
    От Собственника Без Комиссии Сдается в аренду помещение свободного назначения.Площадь от 100 кв.мЦена аренды первые 3 месяца поуб/кв.м, далее поуб/кв.мТакже предоставляем арендные каникулы Высота потолка 3,2 метра.Подвал с высотой потолка 2,4 метра.Помещение...
    • 1/3 эт.
    50 000 Р
    Агент
    +7 (915) Показать номер
    Посмотреть контакты
    Помещение свободного назначения в Московская область, Щелково пл. ... - Фото 1
    Помещение свободного назначения в Московская область, Щелково пл. ... - Фото 2
    Характеристики локации: Линия домов: первая;Кол-во жителей (зона 5 мп): 5507 чел;Парковка: стихийная, 5 м/м; Технические характеристики:Тип здания: отдельно стоящее здание, помещение ОСЗ;Уровень: первый этаж;Высота потолка, h= 3.1 м;Оконная группа: окна...
    • 1/4 эт.
    50 000 Р
    Агент
    +7 (985) Показать номер
    Посмотреть контакты
    Помещение свободного назначения в Московская область, Мытищи ул. ... - Фото 1
    Помещение свободного назначения в Московская область, Мытищи ул. ... - Фото 2
    Это не просто земля. Это единственная в Москве готовая платформа для создания полноценного автосалона под открытым небом на территории действующего авторынка с многомиллионной аудиторией. Идеально для продаж новых и подержанных легковых, грузовых автомобилей,...
    • 1/1 эт.
    50 000 Р
    Агент
    +7 (916) Показать номер
    Посмотреть контакты

    Не нашли подходящего объявления?

    Оставьте заявку, и наши риэлторы подберут псн в районе Ногинска

    (0)