138 192 700 Р 1 829 700 $ или 1 565 300

Информация об помещении

1
Этаж

Состояние и оснащение

Количество этажей
1
Развернуть
Агент
+7 (938) 656-74-88
Начать чат с агентом

Помещение свободного назначения в Московская область, Ногинск ...

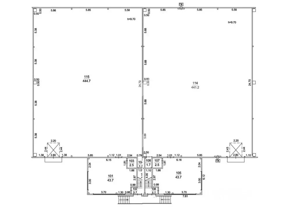
985085. Предлагается производственно-складской комплекс формата BTS общей площадью 1454.66 кв. м. вблизи г Ногинск. Преимущества:Расположение индустриального парка открывает доступ к человек трудоспособного населения. Ближайшие города Ногинск, Электросталь, Павловский Посад. Рядом развязка ЦКАД. Доступ к комплексу осуществляется прямым съездом с трассы М7 Горьковского шоссе, в 8 км от выезда на трассу М12 Москва-Казань. Доступ ко всем программам Московской области по поддержке резидентов индустриального парка. 40 видов ВРИ, в том числе отдельный кластер под пищевую промышленность. Льготные тарифы на услуги. Возможность подключения по пониженному тарифу на электроэнергию.Параметры здания:Подъемно-поворотные ворота - 3 шт.Фундамент - монолитная железо-бетонная плита.Стены: сэндвич-панели по металлическому каркасу.Магистральное газоснабжение.Вода - собственная скважина.Канализация - автономная.Технические характеристики:.Общая площадь: 1454.66 кв. м.Габариты здания в осях - 60х24 м.Высота здания - 10,7 м.Высота помещения до низа ферм - 8 м.Электрическая мощность: 110 - 300 кВт по 2-ой категории (возможность увеличения до 5 МВт).Есть возможность деления объекта на 864 кв. м и 576 кв. м.Так как корректный адрес отсутствует на Яндекс.Картах, введен ориентировочный.

Читать полностью
    Позвонить Написать
    138 192 700 Р1 829 700 $ или 1 565 300
    Агент
    +7 (938) 656-74-88
    Начать чат с агентом
    Похожие предложения
    Помещение свободного назначения в Московская область, Ногинск ... - Фото 1
    Помещение свободного назначения в Московская область, Ногинск ... - Фото 2
    985085. Предлагается производственно-складской комплекс формата BTS общей площадью 1454.66 кв. м. вблизи г Ногинск. Преимущества:Расположение индустриального парка открывает доступ к человек трудоспособного населения. Ближайшие города Ногинск, Электросталь,...
    • 1/1 эт.
    138 192 700 Р
    Агент
    +7 (938) Показать номер
    Посмотреть контакты
    Помещение свободного назначения в Московская область, Домодедово ... - Фото 1
    Помещение свободного назначения в Московская область, Домодедово ... - Фото 2
    Готовый бизнес для Вас Коммерческое помещение в центре города Домодедово ПАО Ростелеком предлагает к продаже нежилое помещение общей площадью 480,1 кв.м, расположенное по адресу: Московская область, г. Домодедово, Каширское шоссе, д. 62. Основные...
    • 1/1 эт.
    136 760 000 Р
    Агент
    +7 (918) Показать номер
    Посмотреть контакты
    Помещение свободного назначения в Московская область, Подольск ... - Фото 1
    Помещение свободного назначения в Московская область, Подольск ... - Фото 2
    Номер объекта: 542372. Продается новое готовое к заезду производственно-складское помещение вблизи Мкад в промышленном парке Industrial City — Icpark Коледино.Планировочное решение включает в себя пространство для производства, склад или логистику 901,44...
    • 1/1 эт.
    136 783 647 Р
    Агент
    +7 (916) Показать номер
    Посмотреть контакты
    Помещение свободного назначения в Московская область, Солнечногорск ... - Фото 1
    Помещение свободного назначения в Московская область, Солнечногорск ... - Фото 2
    1133465. Складское помещение общей площадью 1100 кв. м. в индустриальном парке Есипово-2. Корпус В.Преимущества:Комплекс складских помещений категории Лайт Индастриал.32 км от МКАД по Ленинградскому шоссе, вблизи трассы А-107 и ЦКАД.Развитая транспортная...
    • 1/2 эт.
    146 300 000 Р
    Агент
    +7 (938) Показать номер
    Посмотреть контакты
    Помещение свободного назначения в Московская область, Подольск ... - Фото 1
    Помещение свободного назначения в Московская область, Подольск ... - Фото 2
    1131377. Предлагается склад общей площадью 1 378 кв. м. в Климовске. 1 этаж ОСЗ.Преимущества:6 км до ЦКАД, 8 км до Симферопольского шоссе.Удобный асфальтированный подъезд.Огороженная территория.Парковка для всех видов транспорта.КПП, охрана.Утепленный...
    • 1/1 эт.
    130 000 000 Р
    Агент
    +7 (938) Показать номер
    Посмотреть контакты

    Не нашли подходящего объявления?

    Оставьте заявку, и наши риэлторы подберут псн в районе Ногинска

    (0)