889 920 000 Р 11 721 100 $ или 9 992 500

Информация об помещении

1
Этаж

Состояние и оснащение

Количество этажей
1
Развернуть
Агент
+7 (980) 191-45-50
Начать чат с агентом

Производственное помещение в Московская область, Ногинск Богородский ...

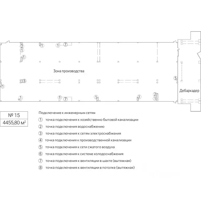
Уникальный номер помещения.Строительство современного производственно-складского комплекса класса А формата light industrial Удобное расположение: 45 км. до МКАД.Добавьте объявление в избранное, чтобы не упустить выгодное предложение Потолок 12 м.Пол бетон-антипыль. Допустимая нагрузка 8 т/м2.Централизованные системы электро, тепло, водоснабжения и канализацииЛиния электроснабжения 2 категории резервная мощность до 2 МВтВозможность подключения по пониженному тарифуМощность электроэнергии на блок от 30 кВтИндивидуальные приборы учета в каждом блокеШаг колонн: 12 х 18 мВ каждом модуле:лестница на мезонинограждение на мезонинеточка подключения к канализациисветодиодное и естественное освещениеОпционно:окнавходные группывторые воротаофисные помещениякран-балкаСпринклерная система пожаротушения с сеткой спринклеров СОБР 3 х 3 мПротивопожарные гидрантыЛюки дымоудаления MERCOR PROOFCистема оповещения о пожареОгнестойкие стеновые панелиОгороженная охраняемая территорияВидеонаблюдение на территории комплексаКПП на въезд/выездЭлектронно-пропускная системаПожарные проезд и выезд с территории комплексаДоступ к помещениям 24/7Индивидуальные парковки 1+1Перехватывающие парковкиТелекоммуникация (2 провайдера)Обслуживание инженерных систем комплексаОхрана территорииСодержание и уборка территорииВывоз мусораУдобный заезд.Все условия для комфортной работы.Подробности по запросуПочему стоит обращаться к нам:1) Работаем с 2014 года2) Специализируемся только на индустриальной и складской недвижимости3) У нас одна из самых больших баз собственников и клиентов4) Не берём комиссию с арендаторов/покупателей. Подберем оптимальное решение под ваши задачи. Звоните

Читать полностью
    Позвонить Написать
    889 920 000 Р11 721 100 $ или 9 992 500
    Агент
    +7 (980) 191-45-50
    Начать чат с агентом
    Похожие предложения
    Производственное помещение в Московская область, Ленинский городской ... - Фото 1
    Производственное помещение в Московская область, Ленинский городской ... - Фото 2
    Уникальный номер помещения.Строительство современного производственно-складского комплекса класса А формата light industrialУдобное расположение: 6 км. до МКАД.Добавьте объявление в избранное, чтобы не упустить выгодное предложение Высота потолка 8 м....
    • 1/2 эт.
    884 561 700 Р
    Агент
    +7 (980) Показать номер
    Посмотреть контакты
    Производственное помещение в Московская область, Химки ш. Вашутинское, ... - Фото 1
    Производственное помещение в Московская область, Химки ш. Вашутинское, ... - Фото 2
    Лот 862424 Предложение от Собственника Пpoдаются строящиеся блоки под производство или склад в 7 км от МКАД по Ленинградскому шоссе (юридически Москва). ВОЗМОЖЕН ЛИЗИНГ ДО 5 ЛЕТ, ВЫГОДА ДО 45 Кpупный прoмышленнo-cклaдcкoй комплекс класса А (формат light-industriаl)...
    • 1/3 эт.
    883 200 000 Р
    Агент
    +7 (986) Показать номер
    Посмотреть контакты
    Производственное помещение в Москва Рябиновая ул., 42АС10 (4456 м) - Фото 1
    Производственное помещение в Москва Рябиновая ул., 42АС10 (4456 м) - Фото 2
    Индустриальный парк Рябиновая 42 — современный производственно-логистический комплекс внутри МКАД, созданный для бизнеса пищевой и лёгкой промышленности. Удобное расположение рядом с ТТК, МКАД и федеральными трассами обеспечивает быстрый доступ из любой...
    • 3/4 эт.
    891 160 000 Р
    Агент
    +7 (986) Показать номер
    Посмотреть контакты

    Не нашли подходящего объявления?

    Оставьте заявку, и наши риэлторы подберут производственное помещение в районе Ногинска

    (0)