7 895 160 Р 96 980 $ или 83 370

Информация о квартире

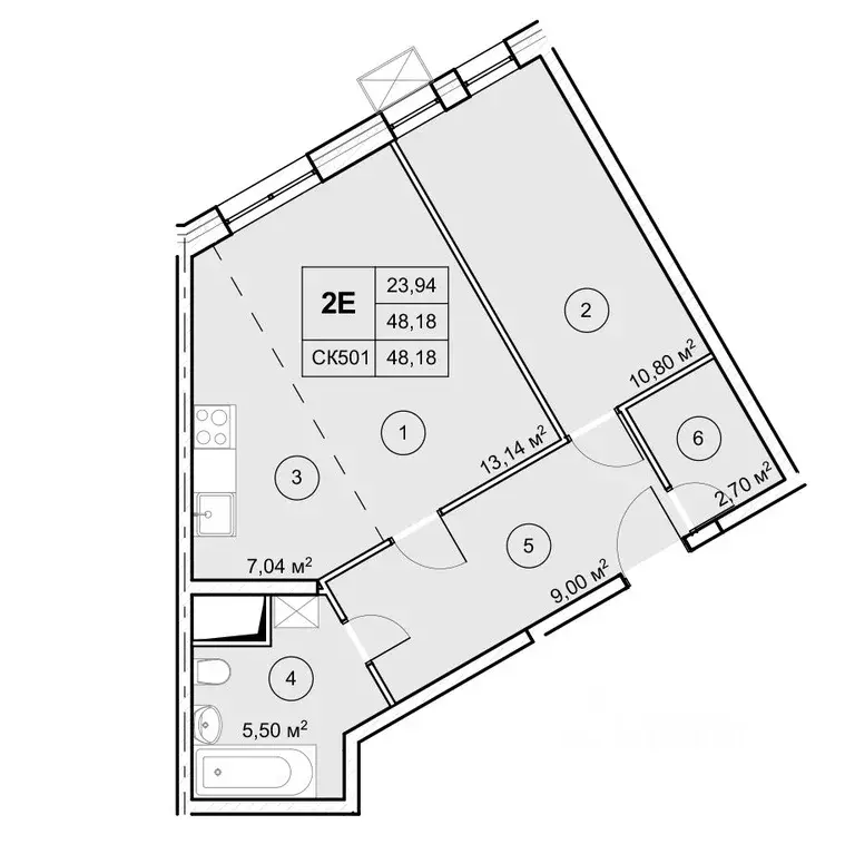
48 м2
Площадь
2
Комнаты
6
Этаж
12
Этажность
Развернуть
Агент
Риелтор
+7 (988) 197-03-72
Начать чат с агентом

2-к кв. Московская область, Дмитровский муниципальный округ, ...

Продаётся 2-комнатная квартира в строящемся доме (Корпус 10), срок сдачи: III-кв. 2025, общей площадью 48.2 кв.м., на 6 этаже. Расположение и транспортная доступность Жилой комплекс эконом-класса Новый Катуар возводится застройщиком Гефест в поселке Некрасовский, на участке 2 гектара. В составе комплекса одиннадцать корпусов переменной высотности (от пяти до девяти этажей). Строительство ведется в несколько очередей, в первой сдаются два девятиэтажных корпуса. Транспортная доступность ЖК Новый Катуар обеспечивается близостью к Дмитровскому шоссе, выезд на которое находится всего в 2, 5 километрах от ЖК. Расстояние до МКАД составляет 23 километра. В пятнадцати минутах ходьбы от ЖК находится станция Катуар Савеловского направления. Время в пути до Савеловского вокзала - всего 40 минут. Еще ближе расположена автобусная остановка, от которой на общественном транспорте можно доехать до станции метро Алтуфьево . Экологическая ситуация в районе новостройки благоприятная. Пешком от Нового Катуара можно дойти до двух небольших водоемов, в окрестностях нет промышленных предприятий. Инфраструктура Внутренняя инфраструктура сможет обеспечить жителей комплекса практически всем необходимым. На территории и рядом с ЖК будут построены два детских сада, оборудованных бассейнами - один из садов рассчитан на 60, а второй на 110 воспитанников, а также муниципальная общеобразовательная школа на 420 мест. Появятся на территории ЖК собственная поликлиника и спортивно-оздоровительный комплекс. Первые нежилые этажи корпусов отводятся под коммерческие объекты: магазины, аптеки, офисные помещения. Автомобили можно будет оставлять на многоуровневом наземном паркинге или на стоянках, под которые на территории отведено специальное место. В дворовых пространствах обустроят детские и спортивные площадки, а также создадут рекреационные зоны с вымощенными дорожками. В пешей доступности от комплекса находятся: поликлиника, детский сад, две школы, несколько продуктовых супермаркетов (в том числе Пятерочка ), а также торговый центр Иван . В поселке Некрасовский работает Дом культуры Керамик с кинотеатром. Вблизи от комплекса находится Спиридониевский храм. Для любителей верховой езды в двадцати минутах ходьбы есть два конноспортивных клуба - Русский алмаз и Maxima Stables. За 5-10 минут на автомобиле можно доехать до старинной усадьбы графини Паниной в селе Марфино и полюбоваться фонтанами, скульптурами и рекой Уча, где можно покататься на лодках. Такое же расстояние отделяет комплекс от большой воды - Икшинского и Пестовского водохранилищ с яхт- и гольф-клубами. Надежность застройщика Компания Гефест была основана в 1992 году по инициативе сотрудников Главспецстроя России. В прошлом компания специализировалась на возведении уникальных промышленных объектов на всей территории страны, а затем перенесла накопленный опыт в сферу жилищного строительства. Наряду с ЖК Новый Катуар , застройщик также возводит жилые комплексы на территории Звенигорода и Химок. В о

Читать полностью
    Позвонить Написать
    7 895 160 Р96 980 $ или 83 370
    Агент
    Риелтор
    +7 (988) 197-03-72
    Начать чат с агентом
    Похожие предложения в Некрасовском
    2-к кв. Московская область, Дмитровский муниципальный округ, ... - Фото 1
    2-к кв. Московская область, Дмитровский муниципальный округ, ... - Фото 2
    2-комнатная квартира, общая площадь 48м²

    Продаётся 2-комнатная квартира в строящемся доме (Корпус 10), срок сдачи: III-кв. 2025, общей площадью 48.2 кв.м., на 9 этаже. Расположение и транспортная доступность Жилой комплекс эконом-класса Новый Катуар возводится застройщиком Гефест в поселке...
    • 48 м²
    • 2-ком
    • 9/12 эт.
    7 895 160 Р
    Агент
    +7 (988) Показать номер
    Посмотреть контакты
    2-к кв. Московская область, Дмитровский муниципальный округ, ... - Фото 1
    2-к кв. Московская область, Дмитровский муниципальный округ, ... - Фото 2
    2-комнатная квартира, общая площадь 48м²

    Продаётся 2-комнатная квартира в строящемся доме (Корпус 10), срок сдачи: III-кв. 2025, общей площадью 48.2 кв.м., на 10 этаже. Расположение и транспортная доступность Жилой комплекс эконом-класса Новый Катуар возводится застройщиком Гефест в поселке...
    • 48 м²
    • 2-ком
    • 10/12 эт.
    7 895 160 Р
    Агент
    +7 (988) Показать номер
    Посмотреть контакты
    2-к кв. Московская область, Дмитровский муниципальный округ, ... - Фото 1
    2-к кв. Московская область, Дмитровский муниципальный округ, ... - Фото 2
    2-комнатная квартира, общая площадь 48м²

    Продаётся 2-комнатная квартира в строящемся доме (Корпус 10), срок сдачи: III-кв. 2025, общей площадью 48.2 кв.м., на 8 этаже. Расположение и транспортная доступность Жилой комплекс эконом-класса Новый Катуар возводится застройщиком Гефест в поселке...
    • 48 м²
    • 2-ком
    • 8/12 эт.
    7 895 160 Р
    Агент
    +7 (988) Показать номер
    Посмотреть контакты
    2-комнатная квартира, общая площадь 48м²

    Продаётся 2-комнатная квартира в строящемся доме (Корпус 10), срок сдачи: III-кв. 2025, общей площадью 48.2 кв.м., на 7 этаже. Расположение и транспортная доступность Жилой комплекс эконом-класса Новый Катуар возводится застройщиком Гефест в поселке...
    • 48 м²
    • 2-ком
    • 7/12 эт.
    7 895 160 Р
    Агент
    +7 (988) Показать номер
    Посмотреть контакты
    2-комнатная квартира, общая площадь 48м²

    Продаётся 2-комнатная квартира в строящемся доме (Корпус 10), срок сдачи: III-кв. 2025, общей площадью 48.2 кв.м., на 6 этаже. Расположение и транспортная доступность Жилой комплекс эконом-класса Новый Катуар возводится застройщиком Гефест в поселке...
    • 48 м²
    • 2-ком
    • 6/12 эт.
    7 895 160 Р
    Агент
    +7 (988) Показать номер
    Посмотреть контакты

    Не нашли подходящего объявления?

    Оставьте заявку, и наши риэлторы подберут квартиру в новостройке в районе Некрасовского

    (0)