14 000 000 Р 176 900 $ или 152 400

Информация о коттедже

160 м2
Площадь
2
Этажность
8 cоток
Участок

Дополнительная информация

Дом продаётся вместе с участком
есть
Развернуть
Агент
+7 (965) 310-44-13
Начать чат с агентом

Дом в Наро-Фоминский городской округ, дачный посёлок Парус (160 м)

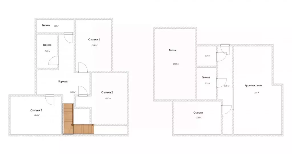
ВАШЕМУ ВНИМАНИЮ ПРЕДСТАВЛЯЕТСЯ ВАРИАНТ ДЛЯ ПОКУПКИ ДОМА В КП ПАРУС Подходит под ипотеку и материнский капитал Возможна прописка после оформления. Характеристики объекта:Площадь дома: 160 кв.м.;Четыре комнаты (13,27+16,93+16,45+15,54 кв.м.)Кухня-гостиная 32,4 кв.м.2 сан/узла в доме;Материал дома: блочный;Материал крыши: мягкая кровля;Материал фундамента: монолитная плита;Облицовка: короед + термодоска;Дом подходит под круглогодичное проживание. Коммуникации:Электричество 15 кВт;Канализация: автономный септик;Отопление: электро-котёл;Водопровод: колодец. Об участке:Площадь участка: 8,7 соток;Сделано межевание участка;Участок правильной прямоугольной формы;Охраняемая территория;Статус участка: ДНП;Участок огорожен.На территории участка есть гараж. Кадастровый номер участка: 50:26:0080610:1377 Членские взносы:уб/сотка в месяц. Транспортная доступность:Автобусная остановка находится всего в 15 минутах ходьбы от участка (общественный транспорт представлен рейсовыми автобусами, которые ходят регулярно, каждые 20-35 минут).Ближайший крупный населенный пункт — город Наро-Фоминск. До поселка легко добраться по основным автомагистралям: Киевскому и Минскому шоссе, что делает путь на автомобиле комфортным и быстрым.До станции метро Саларьево (Сокольническая ветка Московского метро) курсируют рейсовые автобусы и маршрутные такси (маршрут №309). Время в пути до метро составляет приблизительно 45-60 минут, что позволяет жителям поселка без труда добираться до Москвы. Инфраструктура:Внутри поселка предусмотрены детская площадка и освещение.Рядом с КПП находится магазин товаров повседневного спроса и административное здание.В 5 км от КП Парус расположено крупное село Таширово, где есть несколько сетевых магазинов, аптека, детский сад и начальная школа. Инфраструктура в Наро-Фоминске:Торговые центры и магазины: в городе есть несколько торговых центров ( Оранжевое Небо , Серпантин , ТЦ Шелковик , Воскресенский пассаж и Заречье ). Помимо этого, имеются строительные рынки и сетевые магазины.Образовательные учреждения: В Наро-Фоминске расположены школы и детские сады, а также профессиональные училища.Медицинские учреждения: К услугам жителей городская поликлиника, детские медицинские центры и аптеки.Спортивные и досуговые объекты: Доступны спортивные центры и фитнес-клубы, а также Наро-Фоминский историко-краеведческий музей.Бытовые услуги: В городе можно найти отделения банков, почту, салоны красоты и другие сервисы. Таким образом, проживание в КП Парус сочетает в себе преимущества жизни на природе с легким доступом ко всем удобствам современной городской жизни, обеспечивая комфорт и полноценный быт. Остались вопросы? Работаем для Вас без выходных Звоните и мы все Вам расскажем 0506 Арт.

Читать полностью

    Для того, чтобы купить 2-этажный коттедж по адресу: , позвоните по телефону +7 (965) 310-44-13. Торопитесь! Объявление №50016837869 о продаже двухэтажного коттеджа опубликовано 2 дня назад.

    Позвонить Написать
    14 000 000 Р176 900 $ или 152 400
    Агент
    +7 (965) 310-44-13
    Начать чат с агентом
    Похожие предложения в Наро-Фоминском районе
    Продается дом в д. Глаголево - Фото 1
    Продается дом в д. Глаголево - Фото 2
    общая площадь 200м², участок 7 соток

    В продаже новый современный дом площадью 210 кв м с террасой на участке 7 соток. Дом находится на тупиковой улице в деревне Глаголево -стародачное место с престижными коттеджными поселками и солидными соседями. Дом построен в 2024 г из газоблока Bonolit...
    • 200 м²
    • 7 сот.
    14 700 000 Р
    Агент
    +7 (916) Показать номер
    Посмотреть контакты
    Продается дом в д. Глаголево - Фото 1
    Продается дом в д. Глаголево - Фото 2
    общая площадь 200м², участок 7 соток

    В продаже новый современный дом площадью 210 кв м с террасой на участке 7 соток. Дом находится на тупиковой улице в деревне Глаголево -стародачное место с престижными коттеджными поселками и солидными соседями. Дом построен в 2024 г из газоблока Bonolit...
    • 200 м²
    • 7 сот.
    14 700 000 Р
    Агент
    +7 (916) Показать номер
    Посмотреть контакты
    Продается дом в д. Глаголево - Фото 1
    Продается дом в д. Глаголево - Фото 2
    общая площадь 200м², участок 7 соток

    В продаже новый современный дом площадью 210 кв м с террасой на участке 7 соток. Дом находится на тупиковой улице в деревне Глаголево -стародачное место с престижными коттеджными поселками и солидными соседями. Дом построен в 2024 г из газоблока Bonolit...
    • 200 м²
    • 7 сот.
    14 700 000 Р
    Агент
    +7 (916) Показать номер
    Посмотреть контакты
    Дом в Московская область, Наро-Фоминский городской округ, Афинеево ... - Фото 1
    Дом в Московская область, Наро-Фоминский городской округ, Афинеево ... - Фото 2
    1 этаж, общая площадь 79м², участок 7 соток

    Под семейную и другие льготные ипотеки дом подходит ПРОДАЕТСЯ ДОМ 79 кв.м Участок - 7 сот Ваш загородный рай всего в 25 км от Москвы Дом 79 м на 7 сот. земли в живописном поселке Афинеево Парк Забудьте о городской суете Представьте: Вы просыпаетесь...
    • 1 эт.
    • 79 м²
    • 7 сот.
    14 990 000 Р
    Агент
    +7 (923) Показать номер
    Посмотреть контакты
    Дом в Московская область, Наро-Фоминский городской округ, Парус дп  ... - Фото 1
    Дом в Московская область, Наро-Фоминский городской округ, Парус дп  ... - Фото 2
    2 этажа, общая площадь 160м², участок 8 соток

    ВАШЕМУ ВНИМАНИЮ ПРЕДСТАВЛЯЕТСЯ ВАРИАНТ ДЛЯ ПОКУПКИ ДОМА В КП ПАРУС Подходит под ипотеку и материнский капитал Возможна прописка после оформления.Характеристики объекта:Площадь дома: 160 кв.м.;Четыре комнаты (13,27+16,93+16,45+15,54 кв.м.)Кухня-гостиная...
    • 2 эт.
    • 160 м²
    • 8 сот.
    14 000 000 Р
    Агент
    +7 (933) Показать номер
    Посмотреть контакты

    Не нашли подходящего объявления?

    Оставьте заявку, и наши риэлторы подберут купить дом в районе Наро-Фоминского района

    (0)