Реализация объекта недвижимости приостановлена

Информация о квартире

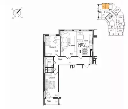
89.0 м2
Площадь
3
Комнаты
17
Этаж
17
Этажность
Развернуть

3-к кв. Московская область, Наро-Фоминск ул. Новикова, 20/1 (89.2 м)

Продаётся 3-комнатная квартира в сданном доме (Новикова, 20/1 (Секция 3)), срок сдачи: III-кв. 2024, общей площадью 89.2 кв.м., на 17 этаже. Жилой комплекс Школьный - современный комплекс комфорт-класса в одном из самых комфортных районов города Наро-Фоминска. Из окон на верхних открываются потрясающие панорамные виды на реку Нара и зеленые массивы. Проектом предусмотрено размещение детской игровой площадки, спортивной площадки, размещение мест для отдыха. С торца нового дома, на первом этаже размещается территория детского сада с прогулочными площадками и теневыми навесами. Ландшафтное озеленение предполагает высадку кустарников, газона, хвойных и лиственных

Читать полностью

    Реализация объекта недвижимости приостановлена

    Не нашли подходящего объявления?

    Оставьте заявку, и наши риэлторы подберут квартиру в новостройке в районе Наро-Фоминска

    (0)