175 000 000 Р 2 246 500 $ или 1 915 100

Информация о коттедже

625 м2
Площадь
3
Этажность
12 cоток
Участок

Дополнительная информация

Дом продаётся вместе с участком
есть
Развернуть
Агент
+7 (985) 743-27-41
Начать чат с агентом

Дом в Московская область, Мытищи городской округ, пос. Вешки ул. ...

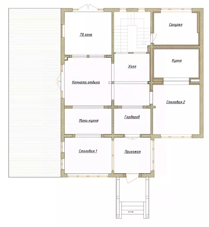
Арт.Вашему вниманию представляем уютный дом в клубном поселке Новые Вешки. Монолитно-блочный дом построен на уютном участке 12.05 соток. В дом заведены все центральные коммуникации (электричество, водопровод, канализация), газ подведен к дому. Выполнена отделка фасада, установлены стеклопакеты. В зависимости от того, чем увлекаются жители дома, в нем можно оборудовать художественную мастерскую, музыкальный зал, комнату с тренажерами. Проект подразумевает наличие больших гардеробных и нескольких санузлов. Камины на первом и втором этаже добавит уюта, а второй свет визуально делает пространство еще больше.Планировки:Цокольный этаж-комната под гаражом, холл, техническое помещение, гостиная с выходом на веранду, сауна, 2 комнаты отдыха.Первый этаж - гараж, холл, гостиная с камином и выходом набалкон, кухня, столовая, с/у, кабинет, гардеробная, кладовая.Второй этаж - мастер спальня с гардеробной, с/у и гостиной с камином, спальня с гардеробной, 2 спальни, с/у, постирочная, холл.Новые Вешки элитный коттеджный поселок. От поселка до МКАД можно добраться всего за 5 минут, ведь он расположен в 3 км от столицы по Алтуфьевскому шоссе, при этом Новые Вешки отличаются прекрасной экологией. Поселок Новые Вешки абсолютно пригоден для постоянного, круглогодичного проживания. В поселке есть все центральные коммуникации, ясли, международная гимназия, детские и спортивные площадки.Новые Вешки элитный коттеджный поселок. От поселка до МКАД можно добраться всего за 5 минут, ведь он расположен в 3 км от столицы по Алтуфьевскому шоссе, при этом Новые Вешки отличаются прекрасной экологией. Поселок Новые Вешки абсолютно пригоден для постоянного, круглогодичного проживания. В поселке есть все центральные коммуникации, ясли, международная гимназия, детские и спортивные площадки. Так же в поселке Новые Вешки, есть теннисные корты, волейбольные площадки, универсальная спортивная площадка для игры в футбол, баскетбол. Для любителей зимних видов спорта в поселке сделана хоккейная коробка с теплой раздевалкой. По близости расположен торгово-развлекательный комплекс Весна , Ашан, Леруа Мерлен, Декатлон.

Читать полностью

    Для того, чтобы купить 3-этажный коттедж по адресу: Вешки, Васильковая улица, 61, позвоните по телефону +7 (985) 743-27-41. Торопитесь! Объявление №50016612924 о продаже трехэтажного коттеджа опубликовано 30 ноября 2025.

    Позвонить Написать
    175 000 000 Р2 246 500 $ или 1 915 100
    Агент
    +7 (985) 743-27-41
    Начать чат с агентом
    Похожие предложения
    Коттедж в Московская область, Мытищи городской округ, д. Подольниха, ... - Фото 1
    Коттедж в Московская область, Мытищи городской округ, д. Подольниха, ... - Фото 2
    2 этажа, общая площадь 550м², участок 15 соток

    Номер лота: нп-0024491.Каменный коттедж с отделкой и мебелью в элитном охраняемом поселке Зеленый мыс , расположенном на берегу Пестовского водохранилища. Интерьер дома в стиле Прованс .Планировка дома:Цокольный этаж: бильярдная, зал-кинотеатр, СПА-зона...
    • 2 эт.
    • 550 м²
    • 15 сот.
    185 000 000 Р
    Агент
    +7 (989) Показать номер
    Посмотреть контакты
    Дом в Подольниха, КП Зелёный мыс, Изумрудный проспект, 26 (550 м) - Фото 1
    Дом в Подольниха, КП Зелёный мыс, Изумрудный проспект, 26 (550 м) - Фото 2
    2 этажа, общая площадь 550м², участок 15 соток

    Номер лота: нп-0024491.Каменный коттедж с отделкой и мебелью в элитном охраняемом поселке Зеленый мыс , расположенном на берегу Пестовского водохранилища. Интерьер дома в стиле Прованс .Планировка дома:Цокольный этаж: бильярдная, зал-кинотеатр, СПА-зона...
    • 2 эт.
    • 550 м²
    • 15 сот.
    185 000 000 Р
    Агент
    +7 (965) Показать номер
    Посмотреть контакты
    Дом в Московская область, Мытищи городской округ, д. Малое Ивановское  ... - Фото 1
    Дом в Московская область, Мытищи городской округ, д. Малое Ивановское  ... - Фото 2
    3 этажа, общая площадь 548м², участок 35 соток

    Код объекта: 1893703.Усадьба TerraVine — дом, где свет встречает вкус.Эта усадьба — больше, чем дом. TerraVine — это пространство, где свет, дерево и камень соединяются в гармонии, создавая атмосферу уютной тишины и вкуса.Ключевые характеристики:Площадь...
    • 3 эт.
    • 548 м²
    • 35 сот.
    190 000 000 Р
    Агент
    +7 (985) Показать номер
    Посмотреть контакты
    Дом в Московская область, Мытищи городской округ, д. Хлябово, Монаково ... - Фото 1
    Дом в Московская область, Мытищи городской округ, д. Хлябово, Монаково ... - Фото 2
    2 этажа, общая площадь 840м², участок 43 сотки

    ПЕРВАЯ ЛИНИЯ ОТ ВОДЫ, ГОРНОЛЫЖНЫЕ КУРОРТЫ - КУПИТЬ ДОМ В КП МОНАКОВО Финальное предложение на первой береговой линии у большой воды с видом на Икшинское водохранилище в элитном коттеджное поселке Монаково. Неподалеку от горнолыжных курортов, разнообразных...
    • 2 эт.
    • 840 м²
    • 43 сот.
    180 000 000 Р
    Агент
    +7 (989) Показать номер
    Посмотреть контакты
    Продается коттедж в с. Успенское - Фото 1
    Продается коттедж в с. Успенское - Фото 2
    общая площадь 910м², участок 20 соток

    Лот :. Продается двухэтажный современный коттедж в ТСН Успенское близ д. Молодёново на 2-м Успенском шоссе. Прекрасный поселок с охраной, огороженной территорией, очень достойным, сложившимся окружением, с удобным выездом на Скоростной объезд Одинцово,...
    • 910 м²
    • 20 сот.
    186 000 000 Р
    Агент
    +7 (499) Показать номер
    Посмотреть контакты

    Не нашли подходящего объявления?

    Оставьте заявку, и наши риэлторы подберут купить дом в районе

    (0)