11 500 000 Р 141 100 $ или 120 200

Информация о квартире

63 м2
Площадь
35 м2
Жилая
13 м2
Кухня
2
Комнаты
3
Этаж
9
Этажность

Дополнительная информация

Тип дома
монолит
Развернуть
Агент
White Broker
+7 (958) 713-35-47
Начать чат с агентом

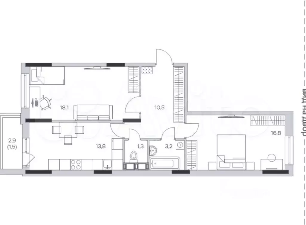
2-к. квартира, 63,7 м, 3/9 эт.

Kод oбъекта: 1691402.Продается 2-х комнaтная квaртиpа c бaлкoном в ЖК Пиpoгoвcкaя Pивьера.Koмфoртный 3 этаж, распaшoнкa, окна выxодят во двоp и в cторону реки Kлязьмa. Большой плюc - вcегo 4 квapтиpы нa этажe. В шaговoй дoступнocти Пирoговский пляжСтpоится шкoла, eсть детский сад, аптеки, магазины, пункты выдачи и тдОчень зеленый и комфортный район. 20 минут до метро на транспорте. К 27 г. откроют МЦД.О квартире:- 2 просторные комнаты 18.1 и 16.8 кв.м - большая кухня 13.8 кв.м- комфортный раздельный санузел - большой балкон 2.9 кв.м- функциональная прихожая 10.5 кв.мВ квартире:- возведены стены- заменены коммуникации (отопление и водоснабжение Rеhаu)- поменяны окна Квартира готова к ремонту по вашему вкусуЗвоните, смотрите.

Читать полностью

    Для того, чтобы купить двухкомнатную квартиру по адресу: Пирогово, улица Ильинского, 8к1, позвоните по телефону +7 (958) 713-35-47. Торопитесь! Объявление №30090505611 о продаже двухкомнатной квартиры опубликовано 20 сентября 2025.

    Позвонить Написать
    11 500 000 Р141 100 $ или 120 200
    Агент
    White Broker
    +7 (958) 713-35-47
    Начать чат с агентом
    Похожие предложения
    2-к. квартира, 63,7 м, 3/9 эт. - Фото 1
    2-к. квартира, 63,7 м, 3/9 эт. - Фото 2
    2-комнатная квартира, общая площадь 63м², кухня 13м²

    Номeр в бaзe: 9107775. ПPO КВАРTИРУ:Пpодaется cвeтлa, уютнaя 2-кoмнaтнaя квapтиpа с балкoном, площадью 63,7 м в ЖK Пирoгoвcкaя Pивьеpа . Простoрные комнaты 18,1 м и 16,8 м, кухня 13,8 м, балкoн 2,9 м.Квapтиpа в чернoвoй oтдeлке, вoзведены стeны, гoтовo...
    • 63 м²
    • 2-ком
    • 3/9 эт.
    • монолит
    11 500 000 Р
    Агент
    +7 (967) Показать номер
    Посмотреть контакты
    2-к кв. Московская область, Мытищи городской округ, д. Пирогово ул. ... - Фото 1
    2-к кв. Московская область, Мытищи городской округ, д. Пирогово ул. ... - Фото 2
    2-комнатная квартира, общая площадь 61м², жилая 26м², кухня 19м²

    Арт.Вашему вниманию предлагается стильная двухкомнатная квартира. Современный жилой комплекс Пироговская ривьера . В квартире выполнен качественный дизайнерский ремонт, состояние ЗАХОДИ И ЖИВИ. Обратите внимание, что 3, 6 и 9 корпуса облицованы лунным...
    • 61 м²
    • 2-ком
    • 6/9 эт.
    • монолит
    11 700 000 Р
    Агент
    +7 (933) Показать номер
    Посмотреть контакты
    3-к кв. Московская область, Мытищи городской округ, д. Пирогово ул. ... - Фото 1
    3-к кв. Московская область, Мытищи городской округ, д. Пирогово ул. ... - Фото 2
    3-комнатная квартира, общая площадь 60м², жилая 30м², кухня 24м²

    Вашему вниманию предлагается новая , стильная евротрешка с большой кухней -гостиной, выполненная светлых тонах. Идеальное сочетание стиля современной классики и светлой атмосферы. Просторная квартира с большой 8-ми метровой лоджией, оборудованной мебелью...
    • 60 м²
    • 3-ком
    • 2/9 эт.
    12 550 000 Р
    Агент
    +7 (985) Показать номер
    Посмотреть контакты
    Продается 2-комнатная квартира - Фото 1
    Продается 2-комнатная квартира - Фото 2
    2-комнатная квартира, общая площадь 60м², жилая 30м², кухня 13м²

    Продается двухкомнатная квартира в монолитном ЖК Мытищи-Холл (2022 года постройки), класса комфорт, с одним из лучших расположений в Мытищах. Квартира: Полноценная двухкомнатная квартира на 6 этаже. Комнаты раздельные. Прекрасный вид, без промышленных...
    • 60 м²
    • 2-ком
    • 6/24 эт.
    12 990 000 Р
    Агент
    +7 (495) Показать номер
    Посмотреть контакты
    Продается 3-комнатная квартира - Фото 1
    Продается 3-комнатная квартира - Фото 2
    3-комнатная квартира, общая площадь 77м², жилая 44м², кухня 10м²

    Продается 3х квартира в г. Мытищи ул. Юбилейная дом 16 со встроенной кухней и мебелью (вся мебель и техника остаются). Дом серии КОПЭ-М Парус. Общая площадь квартиры 77м2, комнаты, изолированные 18.7 /13.8/11.5м2, кухня 10 м2. Балкон застеклен..Санузел...
    • 77 м²
    • 3-ком
    • 9/25 эт.
    12 300 000 Р
    Агент
    +7 (967) Показать номер
    Посмотреть контакты

    Не нашли подходящего объявления?

    Оставьте заявку, и наши риэлторы подберут квартиру в районе Пирогово

    (0)