27 000 000 Р 341 700 $ или 298 100

Информация о коттедже

300 м2
Площадь
2
Этажность
13 cоток
Участок

Дополнительная информация

Дом продаётся вместе с участком
есть
Развернуть
Агент
+7 (966) 128-39-72
Начать чат с агентом

Дом в Аббакумово, Рогачёвское шоссе, 7А (300 м)

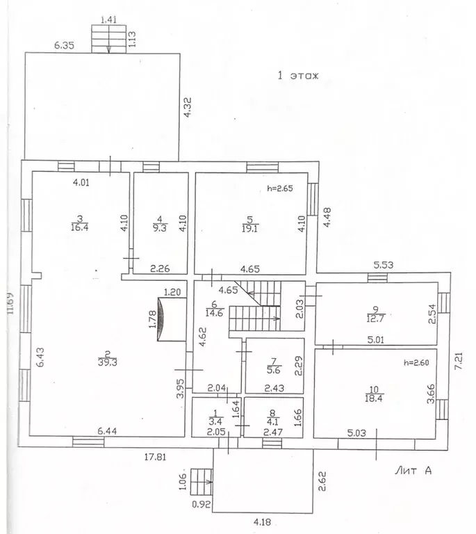
Огромная гостиная, угловой участок Смотрите видео Московская обл., Мытищинский район, дер. Аббакумово, Рогачевское шоссе, дом 7А.Продается готовый двухэтажный жилой дом площадью 300 кв. м.Стены первого этажа в 2 кирпича с утеплением. Второй этаж сделан из крупного бревна диаметром до 32 см. Требуются незначительные доработки.В доме 5 спален и 2 больших санузла.·1 этаж: прихожая с гардеробной, большая гостевая спальня, санузел с мозаичной душевой, и огромная кухня – столовая – гостиная площадью 57 м2 с окнами на 3 стороны света, с камином и с выходом в лаунж - веранду с зоной барбекю. Здесь много света и воздуха. Кроме того, на первом этаже есть постирочная, топочная и гараж.·2 этаж: холл, большой раздельный санузел с ванной комнатой, 4 спальни, из них две спальни площадью по 17 м2 и две по 23.5 м2. В холле предусмотрено место для гардеробной комнаты. В хозяйской спальне есть выход на большой видовой балкон.В доме современный ремонт. Под красивым керамогранитом теплые водяные полы. Вентиляционные короба облицованы шпонированными панелями. В лаунж – зоне дизайнерская плитка в восточном стиле. Камин в гостиной из голландского кирпича. Дом продается с встроенными мебелью и техникой.Земельный участок площадью 13,5 соток огорожен, освоен. Для благоустройства участка на его территорию было завезено много песка. Рельеф с небольшим наклоном в сторону ручья – вода на участке не задерживается. Соседний участки только с одной стороны.КОММУНИКАЦИИ: Электричество 15 кВт (фактически больше), магистральный газ, американская газовая отопительная система, водопровод из своей глубокой скважины с системой многоступенчатой фильтрации, канализация – септик, высокоскоростной интернет, видеонаблюдение. ИНФРАСТРУКТУРА и МЕСТО: Круглогодичный асфальтированный подъезд прямо с Рогачевского шоссе. Рядом есть торговый центр, фитнесс, несколько продуктовых магазинов. Городская инфраструктура всего в 3 км в г. Лобне. ТРАНСПОРТ: автобусная остановка «Аббакумовоасположена вс

Читать полностью

    Для того, чтобы купить 2-этажный коттедж по адресу: Аббакумово, Рогачёвское шоссе, 7А, позвоните по телефону +7 (966) 128-39-72. Торопитесь! Объявление №50016584645 о продаже двухэтажного коттеджа опубликовано 18 ноября 2025.

    Позвонить Написать
    27 000 000 Р341 700 $ или 298 100
    Агент
    +7 (966) 128-39-72
    Начать чат с агентом
    Похожие предложения
    Продается дом в КП Бригантина - Фото 1
    Продается дом в КП Бригантина - Фото 2
    общая площадь 190м², участок 10 соток

    Арт.Продается дом в коттеджном поселке Бригантина на Дмитровском шоссе (11 км от МКАД). Участок 10 соток. В поселке 33 дома, граничит с лесом. Дом состоит из двух этажей и гаража. Сделан качественный ремонт, все что есть в доме, останется будущим собственникам...
    • 190 м²
    • 10 сот.
    27 000 000 Р
    Агент
    +7 (495) Показать номер
    Посмотреть контакты
    Продажа дома, Сорокино, Мытищинский район, Прибрежная улица - Фото 1
    Продажа дома, Сорокино, Мытищинский район, Прибрежная улица - Фото 2
    Продажа дома, Сорокино, Мытищинский район, Прибрежная улица - Фото 3
    Продажа дома, Сорокино, Мытищинский район, Прибрежная улица - Фото 4
    Продажа дома, Сорокино, Мытищинский район, Прибрежная улица - Фото 5
    Продажа дома, Сорокино, Мытищинский район, Прибрежная улица - Фото 6
    Продажа дома, Сорокино, Мытищинский район, Прибрежная улица - Фото 7
    Продажа дома, Сорокино, Мытищинский район, Прибрежная улица - Фото 8
    Продажа дома, Сорокино, Мытищинский район, Прибрежная улица - Фото 9
    Продажа дома, Сорокино, Мытищинский район, Прибрежная улица - Фото 10
    Продажа дома, Сорокино, Мытищинский район, Прибрежная улица - Фото 11
    Продажа дома, Сорокино, Мытищинский район, Прибрежная улица - Фото 12
    Продажа дома, Сорокино, Мытищинский район, Прибрежная улица - Фото 13
    Продажа дома, Сорокино, Мытищинский район, Прибрежная улица - Фото 14
    Продажа дома, Сорокино, Мытищинский район, Прибрежная улица - Фото 15
    Продажа дома, Сорокино, Мытищинский район, Прибрежная улица - Фото 16
    Продажа дома, Сорокино, Мытищинский район, Прибрежная улица - Фото 17
    Продажа дома, Сорокино, Мытищинский район, Прибрежная улица - Фото 18
    Продажа дома, Сорокино, Мытищинский район, Прибрежная улица - Фото 19
    Продажа дома, Сорокино, Мытищинский район, Прибрежная улица - Фото 20
    блочный дом, 2 этажа, общая площадь 477.5м², жилая 300м², кухня 40м², кол-во комнат 10, год постройки 2011, участок 10 соток

    Код объекта: 625210.Для клиентов ТСН НЕДВИЖИМОСТЬ предлагаем СУБСИДИРОВАННУЮ ипотеку на покупку этой квартиры по СТАВКЕ от 11,75% вместо базовой 22,5%!Отличное предложение! АКЦИЯ: «Дарим неделю в Турции»!Купи недвижимость - отдохни в Турции! При покупке...
    • 2 эт.
    • 477.5 м²
    • 10 сот.
    • 10-ком
    27 399 000 Р
    Агент
    +7 (925) Показать номер
    Агентство
    ТСН Владис
    Посмотреть контакты
    Коттедж в Московская область, Мытищи городской округ, д. Семкино ул. ... - Фото 1
    Коттедж в Московская область, Мытищи городской округ, д. Семкино ул. ... - Фото 2
    3 этажа, общая площадь 380м², участок 9 соток

    Лот 69156. Семкино. Дом в охраняемом коттеджном поселке Клязьминский парк . Кирпичный дом, внешне оштукатурен и покрашен, площадью 380 кв.м. под отделку.У дома - мягкая кровля, окна - двойные стеклопакеты. В доме предусмотрено уютная гостиная, совмещенная...
    • 3 эт.
    • 380 м²
    • 9 сот.
    26 900 000 Р
    Агент
    +7 (923) Показать номер
    Посмотреть контакты
    Дом в Московская область, Мытищи городской округ, д. Большая Черная ... - Фото 1
    Дом в Московская область, Мытищи городской округ, д. Большая Черная ... - Фото 2
    2 этажа, общая площадь 130м², участок 12 соток

    Продаю Уютный 2 этажный дом 20 км от МКАД. Технология строительства фахверк. Дом полностью готов к проживанию возможна покупка с мебелью и техникой. Отопление электрическое при желании газ по границе есть ту на подключение к газу получены. В доме установлена...
    • 2 эт.
    • 130 м²
    • 12 сот.
    26 900 000 Р
    Агент
    +7 (980) Показать номер
    Посмотреть контакты
    Продается дом в пгт Поварово - Фото 1
    Продается дом в пгт Поварово - Фото 2
    общая площадь 380м², участок 12 соток

    Код объекта: 1573126. Продается 3-х этажный дом 380 кв.м., по документам, по факту 690 кв.м., полностью готов к проживанию: цокольный этаж + 3 этажа + мансарда, на участке 12 соток ИЖС в 19 км от Зеленограда, направление Ленинградское шоссе, 50 км. от...
    • 380 м²
    • 12 сот.
    27 000 000 Р
    Агент
    +7 (495) Показать номер
    Посмотреть контакты

    Не нашли подходящего объявления?

    Оставьте заявку, и наши риэлторы подберут купить дом в районе Аббакумово

    (0)