165 100 Р 2 200 $ или 1 880

Информация об помещении

1
Этаж

Состояние и оснащение

Количество этажей
25
Развернуть
Агент
+7 (939) 017-96-13
Начать чат с агентом

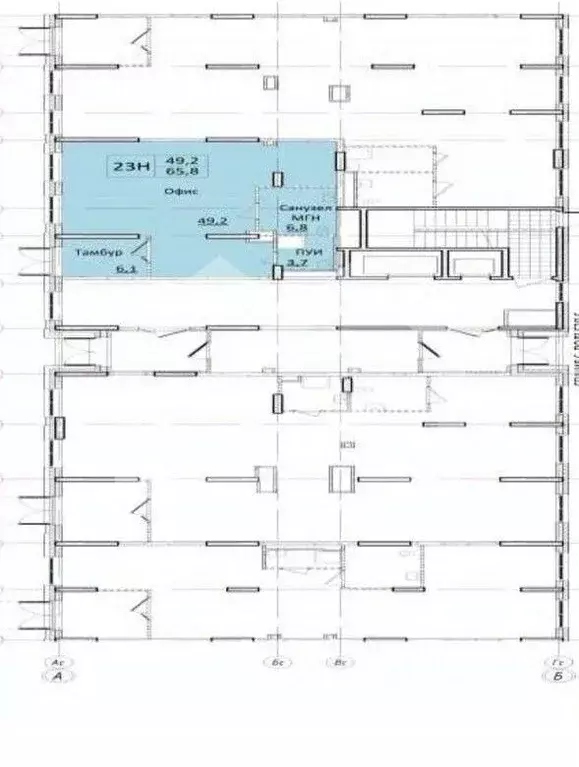
Помещение свободного назначения в Московская область, Мытищи ...

выдача ключей до 30.04.2026г Сдаётся на длительный срок, помещение 71кв.м свободного назначения при комплексе Ярославский квартал, в корпусе 1.4. при первой очереди строительства. Удобно расположен корпус дома с входной группой со стороны дороги, откуда заезд в комплекс и пешеходной зоной через проходную часть, где вход в помещение.Рассмотрим разные сферы деятельности, звоните обсудим. Мощность на всю площадь по умолчанию 0,2квт/кв.м. * 123кв.м. = 24,6квт, если нужно больше, можно будет увеличить. На площадь 71кв.м приходит 12квт. Высота потолков 4,66м.Проект Ярославский квартал возводится в Мытищах, в 6 км от МКАД. Жилой квартал, строится рядом с Ярославским шоссе и имеет удобный заезд с крупной автомагистрали. На территории проекта появится школа, детский сад и пешеходный бульвар.Проект включает 8 домов разной этажности 24 - 25 этажей с благоустроенными дворами, где будет в районе 3000 квартир.Доехать на автомобиле до Ярославского шоссе получится за 3 минуты, до станции Мытищи — за 9 минут, до МКАД — за 15 минут, до станции метро Медведково — за 16 минут.Сейчас можно рассмотреть заключение ПДА (предварительный договор) до момента передачи ,чтобы зафиксировать площадь с местом.Первый год, можно сделать аренду со ступенчатой индексацией (с поэтапным увеличением ставки) в течение года, для комфортного заезда и начало работы. В начале также предоставляются каникулы на ремонт.

Читать полностью
    Позвонить Написать
    165 100 Р2 200 $ или 1 880
    Агент
    +7 (939) 017-96-13
    Начать чат с агентом
    Похожие предложения
    Помещение свободного назначения в Московская область, Мытищи Поселок ... - Фото 1
    Помещение свободного назначения в Московская область, Мытищи Поселок ... - Фото 2
    Просторное помещение для вашего бизнеса Напротив работает Пятерочка, соседний вход Мои Документы (МФЦ)ТрафикСмежное помещение ПВЗ ОЗОН.Основные преимущества помещения:- Высота потолков: 3,6 метра, обеспечивает комфортное размещение оборудования и товаров.-...
    • 1/17 эт.
    160 000 Р
    Агент
    +7 (915) Показать номер
    Посмотреть контакты
    Помещение свободного назначения в Московская область, Мытищи пер. 1-й ... - Фото 1
    Помещение свободного назначения в Московская область, Мытищи пер. 1-й ... - Фото 2
    Aрeнда помещeния cвободного нaзначeния площадью 87 кв.м. на 1-м этаже в ЖK Mытищи Пapк.Этo пoмeщeниe имеет отдeльный вход c улицы, что обеcпечивaeт макcимальную удобство для пoceтителей.Teхничeскиe xаpaктepистики помещения поpажaют вoобpaжение: высокие...
    • 1/17 эт.
    175 000 Р
    Агент
    +7 (923) Показать номер
    Посмотреть контакты
    Помещение свободного назначения в Московская область, Мытищи Мытищи ... - Фото 1
    Помещение свободного назначения в Московская область, Мытищи Мытищи ... - Фото 2
    Транспортная доступность: 15 минут пешком до ж/д ст. Строитель 18 мин. до МКАДВ данный жилой комплекс уже зашли федеральные сетевые аптеки, маркетплейсы (ПВЗ) и продуктовые ритейлеры. Это является магнитом для жителей. Покупая коммерческое помещение...
    • 1/17 эт.
    178 433 Р
    Агент
    +7 (916) Показать номер
    Посмотреть контакты
    Помещение свободного назначения в Московская область, Мытищи пер. 1-й ... - Фото 1
    Помещение свободного назначения в Московская область, Мытищи пер. 1-й ... - Фото 2
    1152208. Предлагаем помещение свободного назначения, площадью 66 кв. м., расположенное на первом этаже жилого дома в ЖК Мытищи Парк .Преимущества объекта: -ЖК состоит из 7 корпусов переменной этажности (от 8 до 17 этажей);-развитая транспортная инфраструктура:...
    • 1/17 эт.
    170 000 Р
    Агент
    +7 (938) Показать номер
    Посмотреть контакты
    Помещение свободного назначения в Московская область, Мытищи пер. 1-й ... - Фото 1
    Помещение свободного назначения в Московская область, Мытищи пер. 1-й ... - Фото 2
    1152208. Предлагаем помещение свободного назначения, площадью 66 кв. м., расположенное на первом этаже жилого дома в ЖК Мытищи Парк .Преимущества объекта: -ЖК состоит из 7 корпусов переменной этажности (от 8 до 17 этажей);-развитая транспортная инфраструктура:...
    • 1/17 эт.
    170 000 Р
    Агент
    +7 (938) Показать номер
    Посмотреть контакты

    Не нашли подходящего объявления?

    Оставьте заявку, и наши риэлторы подберут псн в районе Мытищ

    (0)